- HOME
- 中古マンションをエリアから探す
- 越谷市
- 新越谷
- ベルドゥムール新越谷温泉
中古マンション
ベルドゥムール新越谷温泉
情報更新日:2026/04/09 次回更新予定日:2026/04/23
価 格2,999万円
所在地埼玉県越谷市新越谷1丁目[周辺地図]
交 通東武伊勢崎線「新越谷」駅徒歩13分





室内リフォーム済みです。
生活施設の整った物件です。小中学校、スーパー、コンビニ等、徒歩10分圏内にございます。
越谷湯元温泉を浴室にて利用頂けます。(1住戸1日180Lまで)
室内いつでもご見学頂けます。お気軽にお問合せ下さい。
リフォーム内容
・システムキッチン(浄水器、食洗機付き)
・浴室(浴室ミラー、シャワー水栓、換気乾燥機付き)
・トイレ(温水洗浄便座一体型便器)
・フローリング貼(LDK、洋室全室、廊下)
・フロアタイル貼(玄関、洗面室、トイレ)
・クロス張替(壁、天井)
・ハウスクリーニング済
生活施設の整った物件です。小中学校、スーパー、コンビニ等、徒歩10分圏内にございます。
越谷湯元温泉を浴室にて利用頂けます。(1住戸1日180Lまで)
室内いつでもご見学頂けます。お気軽にお問合せ下さい。
リフォーム内容
・システムキッチン(浄水器、食洗機付き)
・浴室(浴室ミラー、シャワー水栓、換気乾燥機付き)
・トイレ(温水洗浄便座一体型便器)
・フローリング貼(LDK、洋室全室、廊下)
・フロアタイル貼(玄関、洗面室、トイレ)
・クロス張替(壁、天井)
・ハウスクリーニング済
担当スタッフより

- 坂田 麻美
- 室内リフォーム済みです。
生活施設の整った物件です。小中学校、スーパー、コンビニ等、徒歩10分圏内にございます。
越谷湯元温泉を浴室にて利用頂けます。(1住戸1日180Lまで)
室内いつでもご見学頂けます。お気軽にお問合せ下さい。
物件詳細情報
物件No.31021172866
| 所在地 | 埼玉県越谷市新越谷1丁目 | ||
|---|---|---|---|
| 交通 | 東武伊勢崎線「新越谷」駅徒歩13分 武蔵野線「南越谷」駅徒歩14分 東武伊勢崎線「越谷」駅徒歩23分 |
||
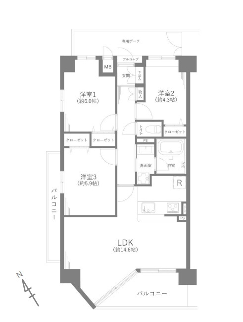
| 間取 | 3LDK (LDK14.6帖、洋室6帖、洋室5.9帖、洋室4.3帖) | ||
| 専有面積 | 69.74m² (壁芯) | ||
| バルコニー面積 | 11.04m² 南向き | ||
| 販売戸数 | 1戸 | 総戸数 | 全48戸 |
| 構造・規模 | 鉄筋コンクリート造 8階建て 2階部分 |
築年・入居 | 2000年9月築 |
| 現況 | 空室 | 引渡時期 | 相談 |
| 権利種類 | 所有権 | 管理費 | 12,800円/月 |
| 修繕積立金 | 10,575円/月 | 管理形態 | 日勤 全部委託 |
| 管理会社 | 朝日管理会社 | 駐車場 | 敷地内にあり 料金:8,000 ~ 9,000円/月 |
| 駐輪場料金 | 200円/月 | バイク置場料金 | 500円〜1,000円/月 |
| ペット | 可 | 温泉積立金 | 1,500円/月 |
| 温泉使用料 | 3,143円/月 | 小学校区 | 越谷市立南越谷小学校(650m) |
| 中学校区 | 越谷市立富士中学校(300m) | 取引態様 | 媒介 |
| リフォーム |
|
||
こだわり項目
角部屋全居室収納食器洗浄機浄水器システムキッチン温水洗浄便座浴室乾燥機室内洗濯機置き場駐輪場バイク置場小学校800m以内スーパー400m以内
- ※価格は物件の代金総額を表示しており、消費税が課税される場合は税込み価格です。(1,000円未満は切り上げ。)
税率は引き渡し時期により異なりますので、各物件の詳細につきましてはお問い合わせください。 - ※敷地権利が借地権のものは価格に権利金を含みます。
- ※制作中に内容が変更される場合もありますので、あらかじめご了承ください。
- ※購入の前には物件内容や契約条件についてご自身で十分な確認をしていただくようにお願いいたします。
- ※完成予想図はいずれも外構、植栽、外観等実際のものとは多少異なることがあります。
- ※CG合成の画像の場合、実際とは多少異なる場合があります。
周辺地図
周辺施設一覧
- ショッピングセンター
- スーパー
- コンビニ
- ドラッグストア
- ホームセンター
- 飲食店
- その他店舗
- 商店街
- 大学
- 専門学校
- 高校・高専
- 中学校
- 小学校
- 保育園
- 幼稚園
- 公民館・児童館
- 病院
- 郵便局
- 役所
- 図書館
- 金融機関
- 警察・消防
- 趣味・娯楽施設
- 公園・運動施設
- 周辺の街並み
- 駅
- その他
お問い合せ先
- 株式会社エステート白馬 越谷店
- お電話でのお問い合わせは
0120-315-586「ホームページを見た」とお問い合わせください - 埼玉県越谷市大字袋山1361-16 1F
- 営業時間:9:00~18:00
- 定休日:年中無休
- 免許番号:国土交通大臣免許(6)第5817号
- HOME
- 中古マンションをエリアから探す
- 越谷市
- 新越谷
- ベルドゥムール新越谷温泉
























