- HOME
- 一戸建てをエリアから探す
- 三郷市
- 鷹野
- 三郷市鷹野11期 全1棟
三郷市鷹野11期 全1棟
情報更新日:2026/04/16 次回更新予定日:2026/04/30
価 格3,490万円(税込)
所在地埼玉県三郷市鷹野5丁目[周辺地図]
交 通つくばエクスプレス「三郷中央」駅バス15分 停歩6分





敷地はゆとりの約40坪を確保し、並列2台駐車可能なカースペースも完備しています。
LDKは家族が自然と集まる心地よい空間設計に加え、WICやサービスクロークなど収納力も充実。
ワイドバルコニーや各居室のゆとりある広さにより、日々の暮らしに余白と快適さをもたらします。
さらにZEH水準の高い住宅性能により、断熱性・省エネ性にも優れ、長く安心して住み続けられる住まい。
立地・広さ・性能すべてが揃った、ワンランク上の分譲住宅です。
「エステート白馬が選ばれる5つのポイント」
1.提携FPへの無料個別相談サービス
社外の中立的なファイナンシャルプランナーと無料相談できます。
ローン返済計画・教育・老後の資金等も含めてシミュレーションをご提案。
2.物件情報が豊富
越谷市を中心にたくさんの情報をご用意。
インターネット広告前の物件も多数取り揃えております。
3.リフォーム、注文建築
越谷店はショールームとなっており、リフォーム、注文建築部門の相談スペースです。
一級建築士をはじめとした専門スタッフがおりますのでご見学と合わせて、リフォームや注文建築についてご相談可。
4.年中無休(年末年始除く)で営業
営業時間 9:30~19:00 この時間はお電話でのお問合わせがスムーズです
5.お子様連れでおこしください
キッズスペース、授乳室、オムツ替えベッドをご用意しております。
すべての画像
洗練された素材感と心地よい広がりが調和する、上質な暮らしを予感させる空間。
家族が自然に集りそうな広さが魅力のLDK。
完成物件だから、引っ越したあとの配置や動線も分かりやすい。
対面キッチンがご家族の温かい時間を演出。
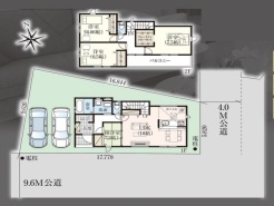
間取り
落ち着いた木調の天井が、柔らかな空間を演出するキッチン。
リビング空間にこだわりたい方に、見ていただきたい住宅です。 温もりと洗練が調和する、心地よい暮らしの空間
温かみのある素材と洗練されたデザインが調和する、心地よい空間。
壁の設えと小さな窓が、落ち着きある空間を演出します。
洗練されたデザインが、毎日の身支度を心地よい時間に変えます。
清潔感あふれる空間が、穏やかな日常を彩ります
清潔感あふれる空間に、安らぎのひとときが広がります。
バルコニーからはたっぷりと太陽の光が舞い込みます。
広々とした空間に、お気に入りのものを飾りたくなる。
窓から広がる空と、清々しい風を感じる心地よい空間
温もりある光が床に広がる、穏やかな空間。
採光窓から広がる、心地よい自然光に包まれた空間。
何かとものがあふれやすいリビングに、ちょっと一工夫。うれしい収納空間。 奥行きを感じさせる空間に、洗練されたデザインが調和する住まい。
心地よい光が、木目調の床に温かな陰影を落とす空間
柔らかな木漏れ日が穏やかな空間を彩ります。
畳の心地よさと、窓から穏やかな光が招く空間
温かな光に満ちた、心地よい空間です。
白を基調とした空間に、柔らかな木目調の床が温もりを添えています。
清潔感あふれる空間が、暮らしに心地よさを与えてくれます。
担当スタッフより

- 森 智那
- 本物件は、角地ならではの開放感と日当たりの良さが大きな魅力です。
実際に現地をご覧いただくと、周囲との距離感や空の抜け感など、写真以上の良さを感じていただけると思います。
また、敷地の広さに加え駐車スペースもゆとりがあり、ご家族でのお車利用にも安心です。
間取り・性能・立地のバランスが非常に良く、長く快適にお住まいいただける一邸です。
ぜひ一度、現地でこの開放感と住み心地をご体感ください。
ご見学にあわせて無料の外部FP相談をご利用頂けます。マイホーム購入だけでなく、老後の資金計画・お子様の教育資金等のライフシュミレーションを考慮した上で、無理のない返済計画をご提案いたします。
物件詳細情報
物件No.31021567009
| 所在地 | 埼玉県三郷市鷹野5丁目 | ||
|---|---|---|---|
| 交通 | つくばエクスプレス「三郷中央」駅バス15分 バス停「寄巻橋東」停歩6分 つくばエクスプレス「三郷中央」駅徒歩40分 つくばエクスプレス「八潮」駅徒歩41分 |
||
| 間取 | 4LDK (LDK16帖、和室3帖、洋室7.5帖、洋室6.5帖、洋室6.06帖) | ||
| 土地面積 | 132.51m² | ||
| 建物面積 | 99.78m² 実測 | ||
| 販売戸数 | 1戸 | 総戸数 | 全1戸 |
| 構造・規模 | 木造 2階建て | 築年・入居 | 2025年12月 |
| バルコニー | 南向き | 建物現況 | 建築中 |
| 建築確認番号 | 第HPA-25-10049-1号 | 駐車スペース | 2台(カースペース:並列) |
| 引渡時期 | 相談 | 国土法届出 | 不要 |
| 地目 | 宅地 | 用途地域 | 第一種住居地域 |
| 建ぺい率 | 50% | 容積率 | 100% |
| 都市計画 | 市街化区域 | 権利種類 | 所有権 |
| 接道 | 南側9.6M公道に接道 東側4M公道に接道 |
小学校区 | 三郷市立鷹野小学校(640m) |
| 中学校区 | 三郷市立前川中学校(900m) | 取引態様 | 媒介 |
| 設備 | 公営水道、本下水、個別LPG | ||
| 省エネ性能表示 | エネルギー消費性能:★★★ 断熱性能:5段階 |
||
こだわり項目
- ※価格は物件の代金総額を表示しており、消費税が課税される場合は税込み価格です。(1,000円未満は切り上げ。)
税率は引き渡し時期により異なりますので、各物件の詳細につきましてはお問い合わせください。 - ※敷地権利が借地権のものは価格に権利金を含みます。
- ※制作中に内容が変更される場合もありますので、あらかじめご了承ください。
- ※購入の前には物件内容や契約条件についてご自身で十分な確認をしていただくようにお願いいたします。
- ※完成予想図はいずれも外構、植栽、外観等実際のものとは多少異なることがあります。
- ※CG合成の画像の場合、実際とは多少異なる場合があります。
周辺地図
周辺施設一覧
- ショッピングセンター
- スーパー
- コンビニ
- ドラッグストア
- ホームセンター
- 飲食店
- その他店舗
- 商店街
- 大学
- 専門学校
- 高校・高専
- 中学校
- 小学校
- 保育園
- 幼稚園
- 公民館・児童館
- 病院
- 郵便局
- 役所
- 図書館
- 金融機関
- 警察・消防
- 趣味・娯楽施設
- 公園・運動施設
- 周辺の街並み
- 駅
- その他
お問い合せ先
- 株式会社エステート白馬 越谷店
- お電話でのお問い合わせは
0120-315-586「ホームページを見た」とお問い合わせください - 埼玉県越谷市大字袋山1361-16 1F
- 営業時間:9:00~18:00
- 定休日:年中無休
- 免許番号:国土交通大臣免許(6)第5817号
- HOME
- 一戸建てをエリアから探す
- 三郷市
- 鷹野
- 三郷市鷹野11期 全1棟






























