- HOME
- 一戸建てをエリアから探す
- 練馬区
- 大泉学園町
- 練馬区大泉学園町5丁目 中古戸建
中古住宅

練馬区大泉学園町5丁目 中古戸建
情報更新日:2026/04/11 次回更新予定日:2026/04/25
価 格5,000万円
所在地東京都練馬区大泉学園町5丁目[周辺地図]
交 通西武池袋線「大泉学園」駅バス11分 停歩3分





6m×5m道路に面した開放的な角地の家。2014年築、全室南向きで陽当たりの良いレイアウト、生活施設の整った住環境、周辺は閑静な住宅地です。
- すべて(14)
- 外観・パース(13)
- 内観(0)
- 間取・区画(1)
- その他(0)
- 動画
物件詳細情報
物件No.31021654836
| 所在地 | 東京都練馬区大泉学園町5丁目 | ||
|---|---|---|---|
| 交通 | 西武池袋線「大泉学園」駅バス11分 バス停「富士見橋」停歩3分 西武池袋線「保谷」駅徒歩36分 |
||
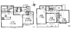
| 間取 | 4LDK (LDK16帖、洋室7.5帖、洋室6.5帖、洋室5.25帖) | ||
| 土地面積 | 113.72m² 公簿 | ||
| 建物面積 | 95.43m² 実測 | ||
| 構造・規模 | 木造 2階建て | 築年月 | 2014年7月築 |
| バルコニー | 南向き | 国土法届出 | 不要 |
| 地目 | 宅地 | 用途地域 | 第一種低層住居専用地域 |
| 建ぺい率 | 50% | 容積率 | 100% |
| 都市計画 | 市街化区域 | 現況 | 居住中 |
| 引渡時期 | 相談 | 権利種類 | 所有権 |
| 接道 | 東側6M公道に接道 北側5M公道に接道 |
小学校区 | 練馬区立大泉西小学校(600m) |
| 中学校区 | 練馬区立大泉西中学校(1180m) | 取引態様 | 媒介 |
| 設備 | 公営水道、本下水、都市ガス | ||
こだわり項目
角地整形地閑静な住宅地LDK15帖以上浄水器システムキッチンカウンターキッチン3口以上コンロトイレ2ヶ所温水洗浄便座シャワー付洗面台浴室1坪以上浴室に窓オートバスTVモニタ付インターホン小学校800m以内公園800m以内
- ※価格は物件の代金総額を表示しており、消費税が課税される場合は税込み価格です。(1,000円未満は切り上げ。)
税率は引き渡し時期により異なりますので、各物件の詳細につきましてはお問い合わせください。 - ※敷地権利が借地権のものは価格に権利金を含みます。
- ※制作中に内容が変更される場合もありますので、あらかじめご了承ください。
- ※購入の前には物件内容や契約条件についてご自身で十分な確認をしていただくようにお願いいたします。
- ※完成予想図はいずれも外構、植栽、外観等実際のものとは多少異なることがあります。
- ※CG合成の画像の場合、実際とは多少異なる場合があります。
周辺地図
周辺施設一覧
- ショッピングセンター
- スーパー
- コンビニ
- ドラッグストア
- ホームセンター
- 飲食店
- その他店舗
- 商店街
- 大学
- 専門学校
- 高校・高専
- 中学校
- 小学校
- 保育園
- 幼稚園
- 公民館・児童館
- 病院
- 郵便局
- 役所
- 図書館
- 金融機関
- 警察・消防
- 趣味・娯楽施設
- 公園・運動施設
- 周辺の街並み
- 駅
- その他
お問い合せ先
- 株式会社エステート白馬 中野店
- お電話でのお問い合わせは
0120-512-325「ホームページを見た」とお問い合わせください - 東京都中野区新井2-1-19 パックマートビル4F
- 営業時間:9:30~19:00
- 定休日:年中無休
- 免許番号:国土交通大臣免許(6)第5817号
- HOME
- 一戸建てをエリアから探す
- 練馬区
- 大泉学園町
- 練馬区大泉学園町5丁目 中古戸建










