- HOME
- 一戸建てをエリアから探す
- 越谷市
- 宮本町
- 越谷市宮本町15期 全1棟
越谷市宮本町15期 全1棟
情報更新日:2026/05/02 次回更新予定日:2026/05/16
価 格4,199万円(税込)
所在地埼玉県越谷市宮本町4丁目[周辺地図]
交 通東武伊勢崎線「越谷」駅徒歩18分






1.提携FPへの無料個別相談サービス
社外の中立的なファイナンシャルプランナーと無料相談できます。
ローン返済計画・教育・老後の資金等も含めてシミュレーションをご提案。
2.物件情報が豊富
越谷市を中心にたくさんの情報をご用意。
インターネット広告前の物件も多数取り揃えております。
3.リフォーム、注文建築
越谷店はショールームとなっており、リフォーム、注文建築部門の相談スペースです。
一級建築士をはじめとした専門スタッフがおりますのでご見学と合わせて、リフォームや注文建築についてご相談可。
4.年中無休(年末年始除く)で営業
営業時間 9:30~19:00 この時間はお電話でのお問合わせがスムーズです
5.お子様連れでおこしください
キッズスペース、授乳室、オムツ替えベッドをご用意しております。
すべての画像
キッチンの性能が上がれば、いつものお料理も楽しくなりますね。
いつでもご案内いたします。大空間のリビングが魅力の新築戸建が完成しました。是非、ご見学ください。
完成物件だから、引っ越したあとの配置や動線も分かりやすい。
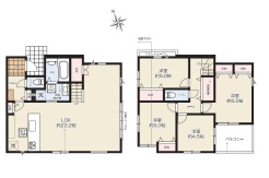
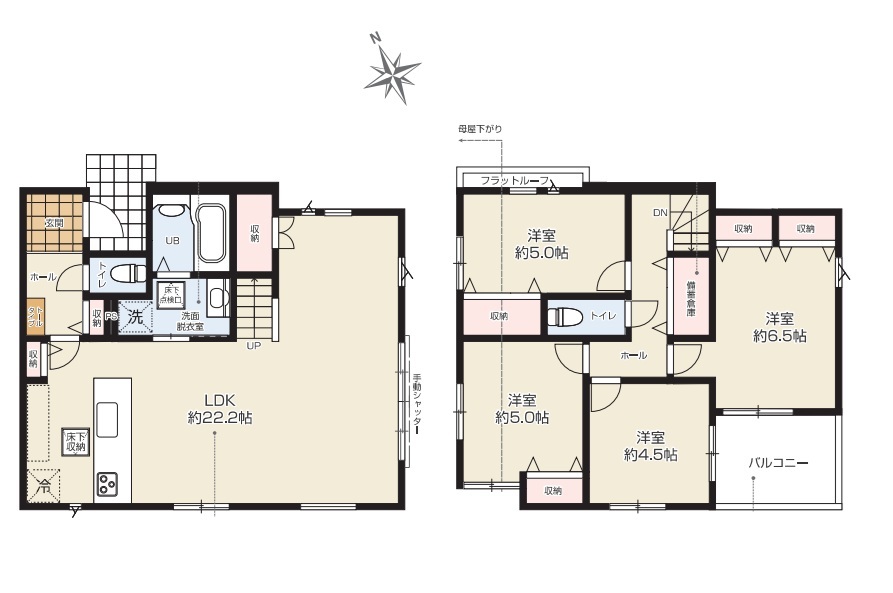
間取り図
区画図
広々1坪タイプのゆったり浴室ユニット。防カビ・抗菌素材なのもうれしい。
完成済み、実物をじっくりチェックできます。
ゆとりの広さを確保したバルコニー。お布団を干すのも、この広さならラクラク。
マイカースペースを1台分確保。現地で車幅と共にご確認ください。
お出かけ前の身だしなみに一歩差がつく三面鏡。
新築戸建てなら今や標準装備は当たり前。気持ちいいウォシュレット機能。
この扉を開けると、新築の木の匂いが待ってます。
木目のシンプルなデザインが家の雰囲気にマッチした玄関収納。
キッチン横には、収納スペースがございます。ストックしている調味料等の保管場所にも適しています。
ウェブや資料からでは得られないヒントがたくさん見つかる完成物件です。
新築の玄関扉。きっと今のお家より重厚感が違います。
玄関の様子
収納
料理をしながらでも、ご家族との会話を楽しめる対面キッチン。
吊戸棚をなくした対面キッチン、隣の部屋にいる方の様子もここからよく見えます。
ご家族みんながゆったりくつろげる広々リビング。
家族が自然に集りそうな広さが魅力のLDK。
家族団らんの時間も増えそうな、くつろぎのLDK。
リビングは家具の配置も思いのまま。自由度が高い設計です。
担当スタッフより

- 原 結依奈
- ご見学にあわせて無料の外部FP相談をご利用頂けます。マイホーム購入だけでなく、老後の資金計画・お子様の教育資金等のライフシュミレーションを考慮した上で、無理のない返済計画をご提案いたします。
物件詳細情報
物件No.31021962707
| 所在地 | 埼玉県越谷市宮本町4丁目 | ||
|---|---|---|---|
| 交通 | 東武伊勢崎線「越谷」駅徒歩18分 東武伊勢崎線「新越谷」駅徒歩25分 武蔵野線「南越谷」駅徒歩25分 |
||
| 間取 | 4LDK (LDK22.2帖、洋室6.5帖、和室5帖、洋室5帖、洋室4.5帖) | ||
| 土地面積 | 100.19m² 実測 | ||
| 建物面積 | 101.8m² 実測 (車庫部分1.65平米含む) | ||
| 販売戸数 | 1戸 | 総戸数 | 全1戸 |
| 構造・規模 | 木造 2階建て | 築年・入居 | 2025年9月下旬 |
| バルコニー | 南向き | 建物現況 | 完成済 |
| 建築確認番号 | 第25UDI1W建01541号 | 駐車スペース | 1台(カースペース) |
| 引渡時期 | 即引渡可 | 国土法届出 | 不要 |
| 地目 | 宅地 | 用途地域 | 第一種低層住居専用地域 |
| 建ぺい率 | 60% | 容積率 | 100% |
| 都市計画 | 市街化区域 | 権利種類 | 所有権 |
| 接道 | 北東側4M公道に接道 | 小学校区 | 越谷市立出羽小学校(650m) |
| 中学校区 | 越谷市立西中学校(1700m) | 取引態様 | 媒介 |
| 設備 | 公営水道、本下水、都市ガス | ||
| 備考・制限等 | 22条区域、越谷市まちの整備に関する条例・越谷市景観条例 | ||
こだわり項目
- ※価格は物件の代金総額を表示しており、消費税が課税される場合は税込み価格です。(1,000円未満は切り上げ。)
税率は引き渡し時期により異なりますので、各物件の詳細につきましてはお問い合わせください。 - ※敷地権利が借地権のものは価格に権利金を含みます。
- ※制作中に内容が変更される場合もありますので、あらかじめご了承ください。
- ※購入の前には物件内容や契約条件についてご自身で十分な確認をしていただくようにお願いいたします。
- ※完成予想図はいずれも外構、植栽、外観等実際のものとは多少異なることがあります。
- ※CG合成の画像の場合、実際とは多少異なる場合があります。
周辺地図
周辺施設一覧
- ショッピングセンター
- スーパー
- コンビニ
- ドラッグストア
- ホームセンター
- 飲食店
- その他店舗
- 商店街
- 大学
- 専門学校
- 高校・高専
- 中学校
- 小学校
- 保育園
- 幼稚園
- 公民館・児童館
- 病院
- 郵便局
- 役所
- 図書館
- 金融機関
- 警察・消防
- 趣味・娯楽施設
- 公園・運動施設
- 周辺の街並み
- 駅
- その他
お問い合せ先
- 株式会社エステート白馬 越谷店
- お電話でのお問い合わせは
0120-315-586「ホームページを見た」とお問い合わせください - 埼玉県越谷市大字袋山1361-16 1F
- 営業時間:9:00~18:00
- 定休日:年中無休
- 免許番号:国土交通大臣免許(6)第5817号
- HOME
- 一戸建てをエリアから探す
- 越谷市
- 宮本町
- 越谷市宮本町15期 全1棟













