- HOME
- 一戸建てをエリアから探す
- 上尾市
- 上平中央
- 上尾市上平中央3丁目
中古住宅
上尾市上平中央3丁目
情報更新日:2026/04/27 次回更新予定日:2026/05/11
価 格2,980万円
所在地埼玉県上尾市上平中央3丁目[周辺地図]
交 通高崎線「北上尾」駅徒歩20分





2017年築、4LDKのゆとりある住まい。上尾市立上平小まで約130m。子育てに適した環境で、新しい生活を始めませんか。
<エステート白馬 上尾駅前店を選ぶ5つのポイント>
1.JR高崎線「上尾駅」から徒歩1分
駅前の「イトーヨーカドー上尾駅前店」内に立地。
2.無料駐車場完備のお店
立体駐車場は全480台収容可。駐車場完備してます。
3.大型キッズスペース
当店自慢のキッズスペースをぜひご覧ください。店内におむつ替えコーナーもご用意してます。
4.年中無休・365日営業でお手伝い
営業時間:10時~20時まで。スピードある対応が自慢のお店です。
5.提携FPへの無料個別相談サービス
社外の中立的なファイナンシャルプランナーと無料相談。
ローン返済について、老後や学費等も含めたシミュレーションをご提案できます。
<エステート白馬 上尾駅前店を選ぶ5つのポイント>
1.JR高崎線「上尾駅」から徒歩1分
駅前の「イトーヨーカドー上尾駅前店」内に立地。
2.無料駐車場完備のお店
立体駐車場は全480台収容可。駐車場完備してます。
3.大型キッズスペース
当店自慢のキッズスペースをぜひご覧ください。店内におむつ替えコーナーもご用意してます。
4.年中無休・365日営業でお手伝い
営業時間:10時~20時まで。スピードある対応が自慢のお店です。
5.提携FPへの無料個別相談サービス
社外の中立的なファイナンシャルプランナーと無料相談。
ローン返済について、老後や学費等も含めたシミュレーションをご提案できます。
すべての画像
ご家族みんながゆったりくつろげる広々リビング。
たっぷりの陽光に包まれる明るい住まいが、ここにあります。
図面と現況が異なる場合は現況を優先させていただきます。
閑静な住宅地で、小さなお子様がいるご家族にも安心。
たっぷりの陽光と、心地よい風が舞い込みます。
キッチンの性能が上がれば、いつものお料理も楽しくなりますね。
気持ちいいウォシュレット機能。
いつも忙しいご家庭に嬉しいインナーバルコニーの家。
ご家族みんながゆったりくつろげる広々リビング。
収納
たっぷりの陽光と、心地よい風が舞い込みます。
一日の疲れを癒す浴室は、広々1坪以上。
たっぷりの陽光と、心地よい風が舞い込みます。
たっぷりの収納を設けたシャワー付洗面台で快適な暮らし。
玄関をスッキリ整理。いつも気持ち良く使える玄関収納ボックス付き。
ご家族みんながゆったりくつろげる広々リビング。
ダイニングキッチン
駐車が苦手な方にも嬉しい、前面6m道路に面した住まい。
たっぷりの陽光と、心地よい風が舞い込みます。
ご家族の思い出も大切にしまっておけるたっぷり収納。
ご家族みんながゆったりくつろげる広々リビング。
庭
お子様にとっていいお昼寝空間になる和室は、ぜひリビングのお隣で。
現地外観写真
担当スタッフより

- 宍戸純
- 当店には宅地建物取引士やファイナンシャルプランナー、住宅ローンアドバイザーなど、専門資格を持つスタッフが多数在籍しております。お客様からの資料請求、お問い合わせをお待ちしております。
物件詳細情報
物件No.31022163524
| 所在地 | 埼玉県上尾市上平中央3丁目 | ||
|---|---|---|---|
| 交通 | 高崎線「北上尾」駅徒歩20分 湘南新宿ライン高海「北上尾」駅徒歩20分 高崎線「上尾」駅バス10分 バス停「上平支所前」停歩2分 |
||
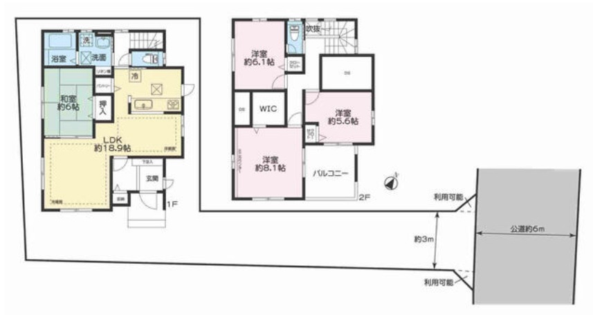
| 間取 | 4LDK | ||
| 土地面積 | 161.06m² 公簿 | ||
| 建物面積 | 107.63m² 公簿 | ||
| 構造・規模 | 木造 2階建て | 築年月 | 2017年8月築 |
| バルコニー | 南向き | 国土法届出 | 不要 |
| 地目 | 宅地 | 用途地域 | 第二種住居地域 |
| 建ぺい率 | 60% | 容積率 | 200% |
| 都市計画 | 市街化区域 | 駐車スペース | 2台以上 |
| 現況 | 空家 | 引渡時期 | 期日指定有(2026年4月上旬) |
| 権利種類 | 所有権 | 接道 | 北東側5.9M公道に3M接道 |
| 小学校区 | 上尾市立上平小学校(130m) | 中学校区 | 上尾市立上平中学校(640m) |
| 取引態様 | 媒介 | ||
| 設備 | 個別LPG 東京電力・公営水道・プロパンガス・本下水 |
||
こだわり項目
平坦地LDK15帖以上南向き床下収納全居室収納床暖房ガスコンロシステムキッチンカウンターキッチン3口以上コンロパントリー(食器・食品の収納庫)トイレ2ヶ所温水洗浄便座シャワー付洗面台追焚機能浴室1坪以上ウォークインクローゼットTVモニタ付インターホン小学校800m以内保育園・幼稚園800m以内コンビニ400m以内
- ※価格は物件の代金総額を表示しており、消費税が課税される場合は税込み価格です。(1,000円未満は切り上げ。)
税率は引き渡し時期により異なりますので、各物件の詳細につきましてはお問い合わせください。 - ※敷地権利が借地権のものは価格に権利金を含みます。
- ※制作中に内容が変更される場合もありますので、あらかじめご了承ください。
- ※購入の前には物件内容や契約条件についてご自身で十分な確認をしていただくようにお願いいたします。
- ※完成予想図はいずれも外構、植栽、外観等実際のものとは多少異なることがあります。
- ※CG合成の画像の場合、実際とは多少異なる場合があります。
周辺地図
周辺施設一覧
- ショッピングセンター
- スーパー
- コンビニ
- ドラッグストア
- ホームセンター
- 飲食店
- その他店舗
- 商店街
- 大学
- 専門学校
- 高校・高専
- 中学校
- 小学校
- 保育園
- 幼稚園
- 公民館・児童館
- 病院
- 郵便局
- 役所
- 図書館
- 金融機関
- 警察・消防
- 趣味・娯楽施設
- 公園・運動施設
- 周辺の街並み
- 駅
- その他
お問い合せ先
- 株式会社エステート白馬 上尾駅前店
- お電話でのお問い合わせは
0120-307-898「ホームページを見た」とお問い合わせください - 埼玉県上尾市谷津2-1-1 ショーサンプラザ(イトーヨーカ堂)5F
- 営業時間:9:00~20:00
- 定休日:年中無休
- 免許番号:国土交通大臣免許(6)第5817号
- HOME
- 一戸建てをエリアから探す
- 上尾市
- 上平中央
- 上尾市上平中央3丁目





























