- HOME
- 一戸建てをエリアから探す
- 所沢市
- 大字下富
- 所沢市下富全1棟 新築戸建
所沢市下富全1棟 新築戸建
情報更新日:2026/04/21 次回更新予定日:2026/05/05
価 格3,798万円(税込)
所在地埼玉県所沢市大字下富[周辺地図]
交 通西武新宿線「新所沢」駅バス18分 停歩2分






すべての画像
五感で感じる、現地でしかわからない事も沢山ございます。周辺環境なども一緒にご案内いたしますのでお気軽にお問合せください。
区画図
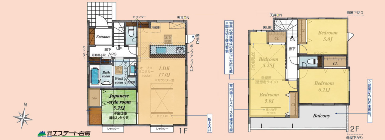
間取り図
6m幅員の道路に面しておりお車の運転が苦手な方でも安心して出入りいただけます。
一緒にお風呂に入っている子供達の声がリビングまで聞こえてきそうな広々とした1坪バス
お出かけ前の身だしなみに一歩差がつく三面鏡。ミラー裏にはたっぷり収納もございます。
時短に活躍する食器洗浄機や一杯の水も楽しめる浄水器があるシステムキッチン。
いつも家族の集まるリビングは広々とした17.0帖。通風・採光にも優れ、心安らぐ風と光がたえない空間。汎用性に富んだ居住スペースと、高揚感さえも与えてくれる住空間です。
夕食の時間。家族、友人、両親、親戚との会話がより料理を美味しくしてくれる。あっという間に時間が過ぎてしまう居心地の良さは、普段はほっとする空間としてここにあります。
今からここを誰のお部屋にしようか、そんな洋室。大きさは5.25帖です。
和室があるとやはりどこか心落ち着いてしまいます。客間としてもちょうど良い約5.25帖。
家族団欒のリビング。陽光差し込む食卓には家族の会話とスマイルが溢れます。いつまでもここで食卓を囲みたくなる、そう感じさせてくれるスペース。
リビングは家具の配置も思いのまま。自由度が高い設計です。
家族が一番集まる場所だから広々としつつも素敵な空間であって欲しい。皆がくつろぐリビングからキッチンまでが一つに繋がる空間。
収納豊富な間取りで家の中がスッキリ片付きそうです。
勝手口付き
ご家族様の成長に合わせて、仕切りをつけれる洋室です。南側5.0帖と5.25帖
当面は10.25帖でお子様の成長に伴い間仕切りを。
ご家族様の成長に合わせて、仕切りをつけれる洋室です。
ご家族様の成長に合わせて、仕切りをつけれる洋室です。
自分の時間を充実させ、心豊かな時間過ごすための大切な空間へ。
今からここを誰のお部屋にしようか、そんな洋室。大きさは5.25帖です。
今からここを誰のお部屋にしようか、そんな洋室。大きさは〇5.0です。
今からここを誰のお部屋にしようか、そんな洋室。大きさ5.0〇帖です。
今からここを誰のお部屋にしようか、そんな洋室。大きさは5.0帖です。
1.2階にそれぞれトレイがございます。朝の混雑時に分散して利用できるほか、ゲスト用としても使い分けることもできます。
明るく開放的な玄関、靴の脱ぎ履きもしやすく、収納も豊富でご家族皆様の靴をスッキリ収納できます。
今からここを誰のお部屋にしようか、そんな洋室。大きさは〇〇帖です5.0
バルコニー
陽ざしが差込む明るいバルコニー。奥行きのあるバルコニーはお洗濯時に助かります。
五感で感じる、現地でしかわからない事も沢山ございます。周辺環境なども一緒にご案内いたしますのでお気軽にお問合せください。
今からここを誰のお部屋にしようか、そんな洋室。大きさは5.0帖です。
担当スタッフより

- 金島宗治
- 整形地です。始発駅利用可能で通勤通学に便利です。ミチル幼稚園まで徒歩5分(約360m)です。雪見原西公園まで徒歩2分(110m)です。
物件詳細情報
物件No.31022298225
| 所在地 | 埼玉県所沢市大字下富 | ||
|---|---|---|---|
| 交通 | 西武新宿線「新所沢」駅バス18分 バス停「ショッピングセンター前」停歩2分 西武新宿線「新所沢」駅徒歩39分 西武新宿線「入曽」駅徒歩37分 |
||
| 間取 | 4LDK | ||
| 土地面積 | 188.45m² 公簿 | ||
| 建物面積 | 103.86m² 実測 (アクセントオーバーハング部分0.36平米含む) | ||
| 販売戸数 | 1戸 | 総戸数 | 全1戸 |
| 構造・規模 | 木造 2階建て | 築年・入居 | 2026年2月 |
| 建物現況 | 完成済 | 建築確認番号 | 第25UDI1W建06152号 |
| 駐車スペース | 2台 | 引渡時期 | 即引渡可 |
| 国土法届出 | 不要 | 地目 | 宅地 |
| 用途地域 | 無指定地域 | 建ぺい率 | 60% |
| 容積率 | 100% | 都市計画 | 市街化調整区域 |
| 建築許可事由 | 調整区域により建築許可要 | 権利種類 | 所有権 |
| 接道 | 東側6M公道に接道 | 小学校区 | 富岡小学校(2140m) |
| 中学校区 | 富岡中学校(2010m) | 取引態様 | 媒介 |
| 設備 | 公営水道、本下水、都市ガス | ||
| 省エネ性能表示 | エネルギー消費性能:★★★ 断熱性能:5段階 |
||
| その他制限事項 | 航空法 | ||
| 備考・制限等 | 航空法、建築協定(フラワーヒル住宅地)、フラワーヒル地区地区計画、 | ||
こだわり項目
- ※価格は物件の代金総額を表示しており、消費税が課税される場合は税込み価格です。(1,000円未満は切り上げ。)
税率は引き渡し時期により異なりますので、各物件の詳細につきましてはお問い合わせください。 - ※敷地権利が借地権のものは価格に権利金を含みます。
- ※制作中に内容が変更される場合もありますので、あらかじめご了承ください。
- ※購入の前には物件内容や契約条件についてご自身で十分な確認をしていただくようにお願いいたします。
- ※完成予想図はいずれも外構、植栽、外観等実際のものとは多少異なることがあります。
- ※CG合成の画像の場合、実際とは多少異なる場合があります。
周辺地図
周辺施設一覧
- ショッピングセンター
- スーパー
- コンビニ
- ドラッグストア
- ホームセンター
- 飲食店
- その他店舗
- 商店街
- 大学
- 専門学校
- 高校・高専
- 中学校
- 小学校
- 保育園
- 幼稚園
- 公民館・児童館
- 病院
- 郵便局
- 役所
- 図書館
- 金融機関
- 警察・消防
- 趣味・娯楽施設
- 公園・運動施設
- 周辺の街並み
- 駅
- その他
お問い合せ先
- 株式会社エステート白馬 所沢店
- お電話でのお問い合わせは
0120-417-898「ホームページを見た」とお問い合わせください - 埼玉県所沢市東住吉12-21 白馬ビルディング
- 営業時間:9:00~18:30
- 定休日:年中無休
- 免許番号:国土交通大臣免許(6)第5817号
- HOME
- 一戸建てをエリアから探す
- 所沢市
- 大字下富
- 所沢市下富全1棟 新築戸建






























