- HOME
- 一戸建てをエリアから探す
- 草加市
- 長栄
- 草加市長栄第2 全1棟
草加市長栄第2 全1棟
情報更新日:2026/04/20 次回更新予定日:2026/05/04
価 格3,880万円(税込)
所在地埼玉県草加市長栄1丁目[周辺地図]
交 通東武伊勢崎線「新田」駅バス11分 停歩13分





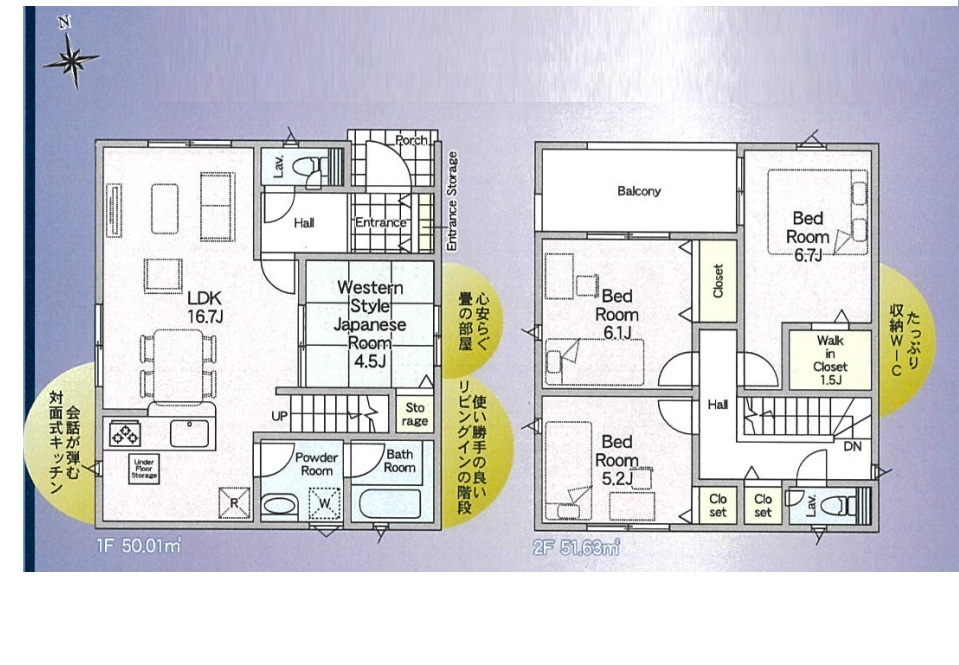
ご家族が集まるLDKは16.7帖のゆとりある広さを確保。階段をリビング内に配置した「リビングイン階段」を採用しており、外出時や帰宅時に自然と顔を合わせられる、家族の絆を育む設計が魅力です。
収納面では、衣類や季節の荷物をまとめて管理できるウォークインクローゼット(WIC)を完備。お部屋を広くスッキリと保つことができます。
駐車スペースは2台分を確保(車種によります)しており、お車をお持ちのご家庭にも対応しています。
- すべて(50)
- 外観・パース(15)
- 内観(29)
- 間取・区画(2)
- その他(0)
- 動画
すべての画像
清々しい空気感と、爽やかな木調の広がりを感じる空間
機能的で洗練された空間が、心地よい暮らしを彩ります。
足場が外れて、スッキリした外観が見えてきました。
間取り
区画図
広々とした空間に、心地よい風が吹き抜けるような開放感。
柔らかな光が広がる、心地よい空間。
心地よい広がりを感じる、清らかな空間。
清潔感あふれる白で統一された、心地よい空間。
白を基調とした清潔感あふれる空間
清潔感あふれる空間で、心安らぐバスタイムを。
清潔感あふれる空間に、機能的な収納が心地よく配置されています。
窓からの光が心地よい、穏やかな空間
壁一面に広がる光が、心地よい空間を演出します。
窓の外に広がる空と穏やかな街並みが、心地よい静けさを感じさせる空間
澄んだ空気感と、広がりを感じる開放的な空間。
柔らかな光が満ちる、穏やかな空間
広々とした空間が、心に安らぎを与えてくれます。
静かで落ち着いた印象を与える、洗練された住まいの入り口。
当分譲地はこちらの一棟のみの現場となります。ご覧になれますので、お気軽にお問い合わせください。
駐車場は2台まで駐車可能。マイカーの車幅もお確かめください。
住民の方が主に利用する交通量少なめの道路に面してます。
道路回転広場
新築の玄関扉。きっと今のお家より重厚感が違います。
整然とした空間に、たっぷりの収納力と清潔感が広がる玄関。
整然とした収納空間が、心地よい暮らしを支えます。
広々とした空間が、穏やかな日々を彩ります
まっさらな空間に、心地よい広がりが広がる。
窓からの光が心地よい、開放感あふれる空間
壁一面が整然とした、すっきりとした空間。
広がる空を映し出す、開放感あふれるテラス空間。
清々しい白と木目の調和が、心地よい空間を演出します。
広々とした空間に、あなたの暮らしを彩る光が満ちています。
洗練された白と畳の心地よさが調和する、穏やかな空間。
心地よい広がりを感じさせる、整然とした空間。
澄み渡るような空間が、心地よい広がりを感じさせます。
清らかな空間に、心地よい光が満ちる住まい。
すっきりとした空間に、整然とした収納スペースが広がります。
清潔感あふれる空間で、心地よいひとときを。
閑静な住宅地で、小さなお子様がいるご家族にも安心。
担当スタッフより

- 原 結依奈
- 東武スカイツリーライン「新田」駅から徒歩20分。落ち着いた住環境に位置する新築戸建てです。
ご家族が集まるLDKは16.7帖のゆとりある広さを確保。階段をリビング内に配置した「リビングイン階段」を採用しており、外出時や帰宅時に自然と顔を合わせられる、家族の絆を育む設計が魅力です。
収納面では、衣類や季節の荷物をまとめて管理できるウォークインクローゼット(WIC)を完備。お部屋を広くスッキリと保つことができます。
駐車スペースは2台分を確保(車種によります)しており、お車をお持ちのご家庭にも対応しています。
物件詳細情報
物件No.31022387118
| 所在地 | 埼玉県草加市長栄1丁目 | ||
|---|---|---|---|
| 交通 | 東武伊勢崎線「新田」駅バス11分 バス停「角屋橋」停歩13分 東武伊勢崎線「新田」駅徒歩20分 東武伊勢崎線「蒲生」駅徒歩28分 |
||
| 間取 | 4LDK (LDK16.7帖、和室4.5帖、洋室6.7帖、洋室6.1帖、洋室5.2帖) | ||
| 土地面積 | 119.91m² 実測 | ||
| 建物面積 | 94.35m² 実測 (バルコニー7.29平米除く) | ||
| 販売戸数 | 1戸 | 総戸数 | 全1戸 |
| 構造・規模 | 木造 2階建て | 築年・入居 | 2026年2月中旬 |
| バルコニー | 北向き | 建物現況 | 完成済 |
| 建築確認番号 | 第KBI-SGM25-10-4365号 | 駐車スペース | 2台(カースペース:並列) |
| 引渡時期 | 即引渡可 | 国土法届出 | 不要 |
| 地目 | 宅地 | 用途地域 | 第一種中高層住居専用地域 |
| 建ぺい率 | 60% | 容積率 | 160% |
| 都市計画 | 市街化区域 | 権利種類 | 所有権 |
| 接道 | 北側4M公道に5.6M接道 | 小学校区 | 草加市立長栄小学校(190m) |
| 中学校区 | 草加市立新田中学校(350m) | 取引態様 | 媒介 |
| 設備 | 公営水道、本下水、都市ガス | ||
| その他制限事項 | 宅地造成工事規制区域 | ||
| 備考・制限等 | 宅地造成工事規制区域,容積率:前面道路幅員制限 法第22条区域 建物面積に別途ルーフバルコニー約7.29平米有り 駐車場2台(車種による) | ||
こだわり項目
- ※価格は物件の代金総額を表示しており、消費税が課税される場合は税込み価格です。(1,000円未満は切り上げ。)
税率は引き渡し時期により異なりますので、各物件の詳細につきましてはお問い合わせください。 - ※敷地権利が借地権のものは価格に権利金を含みます。
- ※制作中に内容が変更される場合もありますので、あらかじめご了承ください。
- ※購入の前には物件内容や契約条件についてご自身で十分な確認をしていただくようにお願いいたします。
- ※完成予想図はいずれも外構、植栽、外観等実際のものとは多少異なることがあります。
- ※CG合成の画像の場合、実際とは多少異なる場合があります。
周辺地図
周辺施設一覧
- ショッピングセンター
- スーパー
- コンビニ
- ドラッグストア
- ホームセンター
- 飲食店
- その他店舗
- 商店街
- 大学
- 専門学校
- 高校・高専
- 中学校
- 小学校
- 保育園
- 幼稚園
- 公民館・児童館
- 病院
- 郵便局
- 役所
- 図書館
- 金融機関
- 警察・消防
- 趣味・娯楽施設
- 公園・運動施設
- 周辺の街並み
- 駅
- その他
お問い合せ先
- 株式会社エステート白馬 越谷店
- お電話でのお問い合わせは
0120-315-586「ホームページを見た」とお問い合わせください - 埼玉県越谷市大字袋山1361-16 1F
- 営業時間:9:00~18:00
- 定休日:年中無休
- 免許番号:国土交通大臣免許(6)第5817号
- HOME
- 一戸建てをエリアから探す
- 草加市
- 長栄
- 草加市長栄第2 全1棟



























