- HOME
- 中古マンションをエリアから探す
- 渋谷区
- 代々木
- 参宮橋ペアシティ
中古マンション

参宮橋ペアシティ
情報更新日:2026/04/15 次回更新予定日:2026/04/29
価 格1億1,990万円(税込)
所在地東京都渋谷区代々木4丁目[周辺地図]
交 通小田急小田原線「参宮橋」駅徒歩7分





2025年11月室内フルリノベーション実施住戸、ミッドセンチュリーの温もりを感じる室内、食洗器や浴室乾燥機など設備も充実してます。
担当スタッフより

- 古川雄弥
- 渋谷区代々木に佇む、88平米超のゆとりある3LDK。駅徒歩7分でアクセス良好。落ち着いた住環境と利便性を両立した、家族の笑顔が集まる空間。
物件詳細情報
物件No.31022523453
| 所在地 | 東京都渋谷区代々木4丁目 | ||
|---|---|---|---|
| 交通 | 小田急小田原線「参宮橋」駅徒歩7分 京王新線「初台」駅徒歩9分 山手線「代々木」駅徒歩14分 |
||
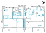
| 間取 | 3LDK (洋室7.5帖、洋室6.1帖、洋室5.2帖、LDK17.6帖) | ||
| 専有面積 | 88.02m² (壁芯) | ||
| バルコニー面積 | 8.7m² 北西向き | ||
| 販売戸数 | 1戸 | 総戸数 | 全30戸 |
| 構造・規模 | 鉄骨鉄筋コンクリート造 8階建て 地下1階 6階部分 |
築年・入居 | 1974年8月築 |
| 現況 | 空室 | 引渡時期 | 即引渡可 |
| 権利種類 | 所有権 | 管理費 | 36,650円/月 |
| 修繕積立金 | 39,040円/月 | 管理形態 | 日勤 全部委託 |
| 管理会社 | (株)東急コミュニティー | 駐車場 | 敷地内にあり 料金:25,000円/月 |
| ペット | 可 | 給湯基本料 | 3,100円/月 |
| 冷暖房料 | 19,920円/月 | 小学校区 | 渋谷区立代々木山谷小学校(500m) |
| 中学校区 | 渋谷区立代々木中学校(1430m) | 取引態様 | 媒介 |
| リフォーム |
|
||
こだわり項目
LDK15帖以上ルーフバルコニー角部屋全居室収納出窓リノベーション食器洗浄機浄水器システムキッチンカウンターキッチン3口以上コンロ温水洗浄便座シャワー付洗面台浴室乾燥機オートバストランクルームオートロックエレベーター駐輪場全居室フローリング24時間ゴミ出し可小学校800m以内保育園・幼稚園800m以内スーパー400m以内コンビニ400m以内公園800m以内
- ※価格は物件の代金総額を表示しており、消費税が課税される場合は税込み価格です。(1,000円未満は切り上げ。)
税率は引き渡し時期により異なりますので、各物件の詳細につきましてはお問い合わせください。 - ※敷地権利が借地権のものは価格に権利金を含みます。
- ※制作中に内容が変更される場合もありますので、あらかじめご了承ください。
- ※購入の前には物件内容や契約条件についてご自身で十分な確認をしていただくようにお願いいたします。
- ※完成予想図はいずれも外構、植栽、外観等実際のものとは多少異なることがあります。
- ※CG合成の画像の場合、実際とは多少異なる場合があります。
周辺地図
周辺施設一覧
- ショッピングセンター
- スーパー
- コンビニ
- ドラッグストア
- ホームセンター
- 飲食店
- その他店舗
- 商店街
- 大学
- 専門学校
- 高校・高専
- 中学校
- 小学校
- 保育園
- 幼稚園
- 公民館・児童館
- 病院
- 郵便局
- 役所
- 図書館
- 金融機関
- 警察・消防
- 趣味・娯楽施設
- 公園・運動施設
- 周辺の街並み
- 駅
- その他
周辺施設ギャラリー
| 渋谷区立代々木山谷小学校(約500m) | 渋谷区立代々木中学校(約1,430m) | ||
| 小田急小田原線「参宮橋」駅(約610m)、京王新線「初台」駅(約650m)、山手線・総武線・都営大江戸線「代々木」駅(約1,160m) | |||
お問い合せ先
- 株式会社エステート白馬 中野店
- お電話でのお問い合わせは
0120-512-325「ホームページを見た」とお問い合わせください - 東京都中野区新井2-1-19 パックマートビル4F
- 営業時間:9:30~19:00
- 定休日:年中無休
- 免許番号:国土交通大臣免許(6)第5817号








