- HOME
- 一戸建てをエリアから探す
- 草加市
- 青柳
- 草加市青柳9期 全2棟 1号棟
新築一戸建て

草加市青柳9期 全2棟 1号棟
情報更新日:2026/04/20 次回更新予定日:2026/05/04
価 格4,698万円(税込)
所在地埼玉県草加市青柳8丁目[周辺地図]
交 通武蔵野線「越谷レイクタウン」駅徒歩27分





南側にゆとりある敷地を確保した1号棟は、明るい陽光がたっぷり差し込むリビング3面採光が魅力。約17帖のLDKは家族が自然と集まる心地よい空間で、対面キッチンからはお子様の様子も見守れます。全居室収納に加え、シューズインクローク付きで収納力も充実。家事動線にも配慮された水回り集中設計で、毎日の暮らしがスムーズに整う住まいです。
すべての画像
心地よい広がりを感じさせる、洗練された空間
洗練された空間に広がる、心地よい一体感。
モダンな佇まいと、温かみのある外壁が調和する住まい
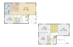
間取り
全体区画図
採光豊かな空間で、心地よい暮らしが始まる。
開放感あふれる広々とした空間が、心地よい暮らしを彩ります
奥行きを感じさせる広々とした空間が、心地よい安らぎを演出します。
清潔感あふれる空間に、温かみのある木目が心地よいアクセント。
洗練された空間で、一日の疲れを癒すひととき
心地よい空間が、毎日の暮らしを豊かに彩ります。
シンプルなインターホンが、安心感のある住まいを演出します。
明るい木目調の床が、穏やかな空間を演出します
心地よい広がりを感じる、すっきりとした空間
開放感のある空と緑に囲まれた、穏やかなひとときを過ごせる空間
穏やかな日差しが心地よい、広々とした開放感あふれる空間。
心地よい風が通り抜ける、穏やかな空間。
木漏れ日が心地よい、穏やかな時間が流れる空間。
洗練されたモダンな装いが、訪れる人を優しく迎えるエントランス。
洗練された壁材が印象的な、すっきりとした空間
柔らかな光に満ちた、心地よい空間が広がります。
穏やかな光が広がる、心地よい空間
青空の下、広がる開放的な空間で穏やかな時間を
開放的な空間が、暮らしにゆとりをもたらす
担当スタッフより

- 佐薙 大成
- 南側にゆとりある敷地は、明るい陽光がたっぷり差し込むリビング3面採光が魅力。約17帖のLDKは家族が自然と集まる心地よい空間で、対面キッチンからはお子様の様子も見守れます。全居室収納に加え、シューズインクローク付きで収納力も充実。家事動線にも配慮された水回り集中設計で、毎日の暮らしがスムーズに整う住まいです。
物件詳細情報
物件No.31022705998
| 所在地 | 埼玉県草加市青柳8丁目 | ||
|---|---|---|---|
| 交通 | 武蔵野線「越谷レイクタウン」駅徒歩27分 東武伊勢崎線「新田」駅徒歩41分 東武伊勢崎線「獨協大学前」駅徒歩43分 |
||
| 間取 | 4LDK (LDK17帖、洋室10.6帖、洋室7.8帖、洋室6帖、洋室5.2帖) | ||
| 土地面積 | 149.51m² 公簿 | ||
| 建物面積 | 104.47m² 実測 | ||
| 販売戸数 | 1戸 | 総戸数 | 全2戸 |
| 構造・規模 | 木造 2階建て | 築年・入居 | 2026年4月 |
| バルコニー | 南向き | 建物現況 | 完成済 |
| 建築確認番号 | 第25UDI1W建09061号 | 駐車スペース | 2台可(カースペース:並列) |
| 引渡時期 | 即引渡可 | 国土法届出 | 不要 |
| 地目 | 宅地 | 用途地域 | 第一種中高層住居専用地域 |
| 建ぺい率 | 60% | 容積率 | 200% |
| 都市計画 | 市街化区域 | 権利種類 | 所有権 |
| 接道 | 北東側5.1M公道に接道 | 小学校区 | 草加市立川柳小学校(500m) |
| 中学校区 | 草加市立青柳中学校(1100m) | 取引態様 | 媒介 |
| 設備 | 公営水道、本下水、オール電化 | ||
| その他制限事項 | 景観法、農地法届出要、敷地面積最低限度有 | ||
| 備考・制限等 | 草加市青柳9期 全2棟 1号棟 景観法、22条区域、草加市開発事業の手続き及び基準等に関する条例、最低敷地面積120平米、都市再生特別措置法、農地法 |
||
こだわり項目
整形地平坦地緑豊かな住宅地閑静な住宅地LDK15帖以上南向き全室2面採光床下収納全居室収納食器洗浄機浄水器IHクッキングヒーターシステムキッチンカウンターキッチン3口以上コンロトイレ2ヶ所浴室乾燥機浴室暖房追焚機能浴室1坪以上全居室フローリングウォークインクローゼットシューズインクローゼットTVモニタ付インターホン小学校800m以内保育園・幼稚園800m以内公園800m以内
- ※価格は物件の代金総額を表示しており、消費税が課税される場合は税込み価格です。(1,000円未満は切り上げ。)
税率は引き渡し時期により異なりますので、各物件の詳細につきましてはお問い合わせください。 - ※敷地権利が借地権のものは価格に権利金を含みます。
- ※制作中に内容が変更される場合もありますので、あらかじめご了承ください。
- ※購入の前には物件内容や契約条件についてご自身で十分な確認をしていただくようにお願いいたします。
- ※完成予想図はいずれも外構、植栽、外観等実際のものとは多少異なることがあります。
- ※CG合成の画像の場合、実際とは多少異なる場合があります。
周辺地図
周辺施設一覧
- ショッピングセンター
- スーパー
- コンビニ
- ドラッグストア
- ホームセンター
- 飲食店
- その他店舗
- 商店街
- 大学
- 専門学校
- 高校・高専
- 中学校
- 小学校
- 保育園
- 幼稚園
- 公民館・児童館
- 病院
- 郵便局
- 役所
- 図書館
- 金融機関
- 警察・消防
- 趣味・娯楽施設
- 公園・運動施設
- 周辺の街並み
- 駅
- その他
お問い合せ先
- 株式会社エステート白馬 越谷店
- お電話でのお問い合わせは
0120-315-586「ホームページを見た」とお問い合わせください - 埼玉県越谷市大字袋山1361-16 1F
- 営業時間:9:00~18:00
- 定休日:年中無休
- 免許番号:国土交通大臣免許(6)第5817号
- HOME
- 一戸建てをエリアから探す
- 草加市
- 青柳
- 草加市青柳9期 全2棟 1号棟






























