- HOME
- 一戸建てをエリアから探す
- さいたま市見沼区
- 大和田町
- 見沼区大和田町1丁目
見沼区大和田町1丁目
情報更新日:2026/04/24 次回更新予定日:2026/05/08
価 格4,290万円(税込)
所在地埼玉県さいたま市見沼区大和田町1丁目[周辺地図]
交 通東武野田線「大和田」駅徒歩2分





すべての画像
開放感と採光にこだわった、約16.5帖のLDK。
料理をしながらでも、ご家族との会話を楽しめる対面キッチン。
大和田駅徒歩2分。思い切ってマイカーを1台に減らすのもアリかも。
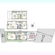
間取り
駐車場は2台まで駐車可能。マイカーの車幅もお確かめください。
玄関を開けたら大きなシューズボックス、使いやすい配置です。
家族団らんの時間も増えそうな、くつろぎのLDK。
キッチンの性能が上がれば、いつものお料理も楽しくなりますね。
三面鏡を採用した洗面化粧台。鏡の裏にも収納スペースがあります。
浴室は湿気がたまりやすく、換気扇だけでは心配。。。窓をあければお風呂がカラっと乾きます。
新しくお住まいになる方のことを考えて、水回り設備も新品に交換しました。
今からここを誰のお部屋にしようか、そんな洋室です。
大きめのベッドを置いてもまだゆとりが持てる、約13.5帖のお部屋。
フルリフォームですから、壁紙やフローリングもすべてきれいに張り替え済み。
リフォームした各部屋は落ち着いた雰囲気に仕上がっています。
全居室が6帖以上の広さ。
バルコニーからはたっぷりと太陽の光が舞い込みます。
売主様ご退居済み。お気兼ねなくご見学いただけます。ごゆっくりどうぞ。
各居室には収納がついています。
ゆとりの広さを確保した3階のバルコニー。お布団を干すのも、この広さならラクラク。水道もついてます。
道路向かいにはドラッグストアやスーパーがあります。通勤通学も文句なしです。
落ち着いたデザインの玄関です。
階段には手すりがついています
開放的なこの空間がお客様をお出迎えします。
南側に窓を配置、明るいリビング空間です。
3つの熱源で、お料理も捗りそうなガスコンロ。
1階と2階の2ヶ所に洗面所があります。
こちらはS(サービスルーム)表記のお部屋。通常のお部屋としても、収納部屋としても使えます。
子供部屋には丁度良い洋室。
3階部分のお部屋の日当たりは、ご覧の通り明るいです。
大容量の収納スペースで、住空間もスッキリ広々。
大きな窓から明るい日差しが差し込みます
担当スタッフより

- 長谷部 崇
- ~人気のリモート見学・リモート相談サービス~
・小さいお子様や家事で外出できない、天気が悪く外出したくない時
・LINEやZOOMなど無料のアプリですぐにご利用いただけます
・リモート見学はスタッフがご興味ある物件の現地から映像をお届けします
・写真では伝わりにくい「空気感」や違うアングルからみたかったリビングの「見え方」などもしっかり確認できます
・リモート相談は第三者による住宅ローンや家計相談を専門のファイナンシャルプランナーと1対1で
・バーチャル背景でプライバシーも安心
・忙しいパートナーに変わって予め確認も
・別々の場所から家族みんなで参加もできます
・お気軽にご相談下さい
~営業時間~
9:30~18:30
こちらのお時間でしたらお電話でのお問合せがスムーズです
お気軽にお問合せください
物件詳細情報
物件No.31022770021
| 所在地 | 埼玉県さいたま市見沼区大和田町1丁目 | ||
|---|---|---|---|
| 交通 | 東武野田線「大和田」駅徒歩2分 宇都宮線「土呂」駅徒歩25分 湘南新宿ライン宇須「土呂」駅徒歩25分 |
||
| 間取 | 5SLDK (LDK16.5帖、洋室13.5帖、洋室6帖、洋室8帖、洋室8帖、洋室6.5帖、S3帖) | ||
| 土地面積 | 111.41m² 公簿 | ||
| 建物面積 | 162.3m² 公簿 | ||
| 構造・規模 | 鉄骨造 3階建て | 築年月 | 1991年4月築 |
| バルコニー | 南西向き | 国土法届出 | 不要 |
| 地目 | 宅地 | 用途地域 | 第一種住居地域 |
| 建ぺい率 | 60% | 容積率 | 200% |
| 都市計画 | 市街化区域 | 駐車スペース | あり |
| 現況 | 空家 | 引渡時期 | 相談 |
| 権利種類 | 所有権 | 接道 | 北東側9.8M公道に接道 |
| 小学校区 | さいたま市立大砂土東小学校(1280m) | 中学校区 | さいたま市大宮八幡中学校(1280m) |
| 取引態様 | 媒介 | ||
| リフォーム |
|
||
| 設備 | 公営水道、本下水、個別LPG | ||
| 備考・制限等 | 景観法 宅地造成及び特定盛土等規制法 | ||
こだわり項目
- ※価格は物件の代金総額を表示しており、消費税が課税される場合は税込み価格です。(1,000円未満は切り上げ。)
税率は引き渡し時期により異なりますので、各物件の詳細につきましてはお問い合わせください。 - ※敷地権利が借地権のものは価格に権利金を含みます。
- ※制作中に内容が変更される場合もありますので、あらかじめご了承ください。
- ※購入の前には物件内容や契約条件についてご自身で十分な確認をしていただくようにお願いいたします。
- ※完成予想図はいずれも外構、植栽、外観等実際のものとは多少異なることがあります。
- ※CG合成の画像の場合、実際とは多少異なる場合があります。
周辺地図
周辺施設一覧
- ショッピングセンター
- スーパー
- コンビニ
- ドラッグストア
- ホームセンター
- 飲食店
- その他店舗
- 商店街
- 大学
- 専門学校
- 高校・高専
- 中学校
- 小学校
- 保育園
- 幼稚園
- 公民館・児童館
- 病院
- 郵便局
- 役所
- 図書館
- 金融機関
- 警察・消防
- 趣味・娯楽施設
- 公園・運動施設
- 周辺の街並み
- 駅
- その他
お問い合せ先
- 株式会社エステート白馬 東大宮店
- お電話でのお問い合わせは
0120-953-325「ホームページを見た」とお問い合わせください - 埼玉県さいたま市見沼区東大宮5-31-9 NYビル1F
- 営業時間:9:00~20:00
- 定休日:年中無休
- 免許番号:国土交通大臣免許(6)第5817号


























