- HOME
- 中古マンションをエリアから探す
- 草加市
- 北谷
- 草加松原ハイツB棟
中古マンション

草加松原ハイツB棟
情報更新日:2026/04/24 次回更新予定日:2026/05/07
価 格2,290万円(税込)
所在地埼玉県草加市北谷1丁目[周辺地図]
交 通東武伊勢崎線「獨協大学前」駅徒歩17分





ゆとりある広さの間取りと、角部屋ならではの明るい室内空間が魅力のマンションです。
すべての画像
東南角部屋で日当たり良好、明るく開放的な室内空間で過ごせます。
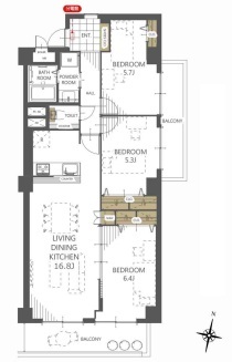
間取り
現地外観写真
収納たっぷりのシステムキッチン
16.8帖のLDK
広めのリビングでのびのび過ごせます。
大き目のダイニングテーブルも設置可能です。
ディスプレイ用の家具を設置していますので、生活のイメージもしやすくなっています。
洗面台も新規交換済です。
新規交換済のシステムバス
玄関
玄関収納の様子
ご利用される洗濯機が入るかどうかもお調べいたしますので、お気軽にご相談ください。
6.4帖洋室
上部に収納棚も設置してあります。
TVモニター付きインターフォン
東側バルコニーからの眺め
5.7帖洋室
5.7帖洋室
広々とした空の下、整然とした街並みが広がる邸宅。
広々としたエントランスが、心地よい空間へと誘います
南向きに開口部を設けた設計の家、明るさ重視のプランです。
澄み渡る青空の下、穏やかな日々がはじまる場所。
広々とした空と、整然と並ぶ車が印象的な、落ち着きのある景観。
担当スタッフより

- 小堺 樹生
- 洗練されたデザインと、暮らしやすさを追求した設計が調和する、住まう方の感性に寄り添う一邸です。
室内の中心となるLDKは、明るさと開放感を大切にした空間設計。
ナチュラルな木目フローリングとやわらかな色調が、日常を穏やかで上質な時間へと導きます。
ダイニングとキッチンが美しくつながるレイアウトにより、家族やゲストとの会話が自然に生まれる、心地よいひとときを演出します。写真では伝わりきらない空間の質感と心地よさを、ぜひ現地でご体感ください。
物件詳細情報
物件No.31022770495
| 所在地 | 埼玉県草加市北谷1丁目 | ||
|---|---|---|---|
| 交通 | 東武伊勢崎線「獨協大学前」駅徒歩17分 東武伊勢崎線「新田」駅徒歩30分 東武伊勢崎線「草加」駅徒歩30分 |
||
| 間取 | 3LDK (LDK16.8帖、洋室6.4帖、洋室5.7帖、洋室5.3帖) | ||
| 専有面積 | 78.15m² (壁芯) | ||
| バルコニー面積 | 13.1m² 南向き | ||
| 販売戸数 | 1戸 | 総戸数 | 全234戸 |
| 構造・規模 | 鉄骨鉄筋コンクリート造 10階建て 9階部分 |
築年・入居 | 1976年2月築 |
| 施工会社 | (株)長谷川工務店 | 現況 | 空室 |
| 引渡時期 | 即引渡可 | 権利種類 | 所有権 |
| 管理費 | 5,910円/月 | 修繕積立金 | 18,207円/月 |
| 管理形態 | 日勤 全部委託 | 管理会社 | 日本ハウズイング(株) |
| 駐車場 | 敷地内にあり 料金:7,000 ~ 10,000円/月 | ペット | 可 |
| 自治会費 | 400円/月 | 小学校区 | 草加市立松原小学校(600m) |
| 中学校区 | 草加市立栄中学校(900m) | 取引態様 | 媒介 |
| リフォーム |
|
||
| 設備 | 公営水道、本下水、都市ガス | ||
| 備考・制限等 | ※駐車場空き状況は、管理会社へ要確認 ※ペット飼育:可(細則有) | ||
こだわり項目
LDK15帖以上南向き角部屋リフォーム済み全居室収納2面以上バルコニーリノベーションガスコンロシステムキッチンカウンターキッチン3口以上コンロ室内洗濯機置き場TVモニタ付インターホンエレベーター小学校800m以内コンビニ400m以内通風良好
- ※価格は物件の代金総額を表示しており、消費税が課税される場合は税込み価格です。(1,000円未満は切り上げ。)
税率は引き渡し時期により異なりますので、各物件の詳細につきましてはお問い合わせください。 - ※敷地権利が借地権のものは価格に権利金を含みます。
- ※制作中に内容が変更される場合もありますので、あらかじめご了承ください。
- ※購入の前には物件内容や契約条件についてご自身で十分な確認をしていただくようにお願いいたします。
- ※完成予想図はいずれも外構、植栽、外観等実際のものとは多少異なることがあります。
- ※CG合成の画像の場合、実際とは多少異なる場合があります。
周辺地図
周辺施設一覧
- ショッピングセンター
- スーパー
- コンビニ
- ドラッグストア
- ホームセンター
- 飲食店
- その他店舗
- 商店街
- 大学
- 専門学校
- 高校・高専
- 中学校
- 小学校
- 保育園
- 幼稚園
- 公民館・児童館
- 病院
- 郵便局
- 役所
- 図書館
- 金融機関
- 警察・消防
- 趣味・娯楽施設
- 公園・運動施設
- 周辺の街並み
- 駅
- その他
お問い合せ先
- 株式会社エステート白馬 越谷店
- お電話でのお問い合わせは
0120-315-586「ホームページを見た」とお問い合わせください - 埼玉県越谷市大字袋山1361-16 1F
- 営業時間:9:00~18:00
- 定休日:年中無休
- 免許番号:国土交通大臣免許(6)第5817号



























