- HOME
- 一戸建てをエリアから探す
- 入間市
- 東藤沢
- 入間市東藤沢6丁目 新築戸建
入間市東藤沢6丁目 新築戸建
情報更新日:2026/04/05 次回更新予定日:2026/04/19
価 格3,880万円(税込)
所在地埼玉県入間市東藤沢6丁目[周辺地図]
交 通西武池袋線「狭山ヶ丘」駅徒歩10分






・LDK約19.6帖の広さ、家族の時間をゆったり過ごせる住まい
・ルーフバルコニーで広がるプライベート空間
こころとカラダに、うれしい暮らし。
◆◇ エステート白馬 所沢店 ◇◆
当日のご見学も随時承っております。
すべての画像
完成物件だから、引っ越したあとの配置や動線も分かりやすい。
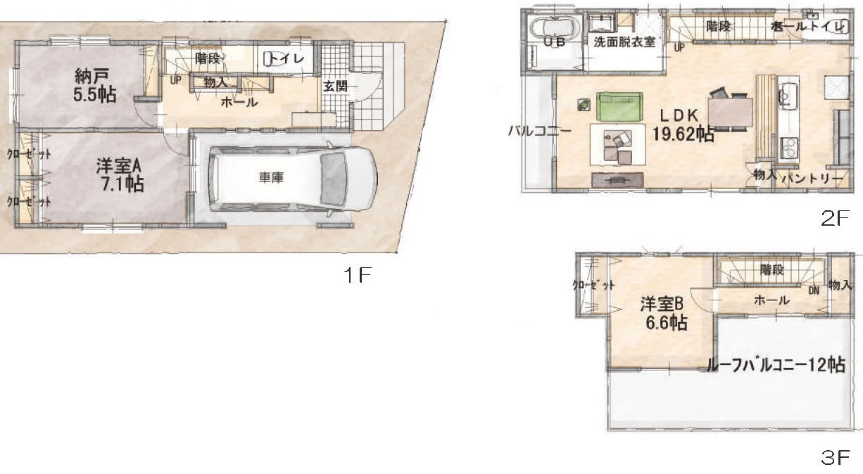
間取り図
区画図
リビングにいる家族の顔が見渡せるカウンターキッチン。お料理もより一層おいしく、楽しく。食器棚を背面に設置しても十分な広さを確保しています。
夕食の時間。家族、友人、両親、親戚との会話がより料理を美味しくしてくれる。あっという間に時間が過ぎてしまう居心地の良さは、普段はほっとする空間としてここにあります。
家族団欒のリビング。陽光差し込む食卓には家族の会話とスマイルが溢れます。いつまでもここで食卓を囲みたくなる、そう感じさせてくれるスペース。
大きな開口部から明るい光が差し込むリビング。日中の室内の明るさがこの部屋の魅力です。
いつも家族の集まるリビングは広々とした19.62帖。通風・採光にも優れ、心安らぐ風と光がたえない空間。汎用性に富んだ居住スペースと、高揚感さえも与えてくれる住空間です。
家族の集うリビングには色々な方向から光が差し込む設計に。家族のコミュニケーションが弾むスポットだから明るい雰囲気であってほしい。
窓から眺める風景は一日の疲れを癒すヒーリングを奏でる、心地の良い時間を演出してくれます。室内も重要ですが、周りの環境もマイホーム選びの大事なポイント
温かな木目調と洗練されたデザインが調和する空間
柔らかな素材感と、窓からの穏やかな光が調和する、くつろぎのひととき
戸建てが立ち並ぶ静かな住宅街。四季折々の移り変わりを感じながら自然と楽しみ、暮らす、そんな毎日を日々の中で感じられる住環境
落ち着いた色味の浴室で1日の疲れをゆっくりと癒してください。
お出かけ前の身だしなみに一歩差がつく三面鏡。ミラー裏にはたっぷり収納もございます。
整理整頓しやすい収納スペースが、暮らしを豊かにします
タンクレスのスッキリトイレ
静けさに包まれた、穏やかな居住空間
収納豊富な間取りで家の中がスッキリ片付きそうです。
ゆとりの6.6帖ある寝室、陽光が入りやすく朝の目覚めも気持ち良く起こしてくれます。
収納スペースが豊富なためお部屋も綺麗に片付きます。
アクセントクロスを使用したオシャレな洋室。窓からそそぐ陽の光が眩しいベッドルームは、朝の目覚めが心地良く迎えられそうです。
シンプルなデザインが、あなたらしい暮らしを彩ります
ルーフバルコニーは12帖の広さです
人工大理石を使用したシステムキッチン。永く傷つきにくく、お手入れもしやすい高機能性です。
大容量のパントリーがございますので、非常食や食品のストックも沢山置けます。
リビングは家具の配置も思いのまま。自由度が高い設計です。
心安らぐ、温もりに満ちた暮らしのステージ
家族の集うリビングには色々な方向から光が差し込む設計に。家族のコミュニケーションが弾むスポットだから明るい雰囲気であってほしい。
温かな灯りが、住まう人の心を優しく照らす
明るく開放的な玄関、靴の脱ぎ履きもしやすく、収納も豊富でご家族皆様の靴をスッキリ収納できます。
玄関土間収納
担当スタッフより

- 西村歩
- ご見学にあわせて、無料の外部FP相談をご利用頂けます。マイホーム購入だけでなく、老後の資金計画・お子様の教育資金等のライフシュミレーションを考慮した上で、無理のない返済計画をご提案させていただきます。
物件詳細情報
物件No.31022887141
| 所在地 | 埼玉県入間市東藤沢6丁目 | ||
|---|---|---|---|
| 交通 | 西武池袋線「狭山ヶ丘」駅徒歩10分 西武池袋線「武蔵藤沢」駅徒歩12分 西武池袋線「小手指」駅徒歩41分 |
||
| 間取 | 2SLDK + Sは納戸 (LDK19.62帖、洋室7.1帖、洋室6.6帖、S5.5帖) | ||
| 土地面積 | 82m² 公簿 | ||
| 建物面積 | 116.86m² 公簿 (ビルトイン車庫部分含) | ||
| 販売戸数 | 1戸 | 総戸数 | 全1戸 |
| 構造・規模 | 木造 3階建て | 築年・入居 | 2025年12月 |
| 建物現況 | 完成済 | 建築確認番号 | SJK-KX255503090号 |
| 駐車スペース | あり(カースペース) | 引渡時期 | 即引渡可 |
| 国土法届出 | 不要 | 地目 | 宅地 |
| 用途地域 | 第一種中高層住居専用地域 | 建ぺい率 | 60% |
| 容積率 | 160% | 都市計画 | 市街化区域 |
| 権利種類 | 所有権 | 接道 | 北東側4M公道に接道 |
| 小学校区 | 藤沢東小学校(240m) | 中学校区 | 上藤沢中学校(1850m) |
| 取引態様 | 媒介 | ||
| 設備 | 公営水道、本下水、都市ガス | ||
| その他制限事項 | 景観法 | ||
| 備考・制限等 | 景観法 | ||
こだわり項目
- ※価格は物件の代金総額を表示しており、消費税が課税される場合は税込み価格です。(1,000円未満は切り上げ。)
税率は引き渡し時期により異なりますので、各物件の詳細につきましてはお問い合わせください。 - ※敷地権利が借地権のものは価格に権利金を含みます。
- ※制作中に内容が変更される場合もありますので、あらかじめご了承ください。
- ※購入の前には物件内容や契約条件についてご自身で十分な確認をしていただくようにお願いいたします。
- ※完成予想図はいずれも外構、植栽、外観等実際のものとは多少異なることがあります。
- ※CG合成の画像の場合、実際とは多少異なる場合があります。
周辺地図
周辺施設一覧
- ショッピングセンター
- スーパー
- コンビニ
- ドラッグストア
- ホームセンター
- 飲食店
- その他店舗
- 商店街
- 大学
- 専門学校
- 高校・高専
- 中学校
- 小学校
- 保育園
- 幼稚園
- 公民館・児童館
- 病院
- 郵便局
- 役所
- 図書館
- 金融機関
- 警察・消防
- 趣味・娯楽施設
- 公園・運動施設
- 周辺の街並み
- 駅
- その他
お問い合せ先
- 株式会社エステート白馬 所沢店
- お電話でのお問い合わせは
0120-417-898「ホームページを見た」とお問い合わせください - 埼玉県所沢市東住吉12-21 白馬ビルディング
- 営業時間:9:00~18:30
- 定休日:年中無休
- 免許番号:国土交通大臣免許(6)第5817号
- HOME
- 一戸建てをエリアから探す
- 入間市
- 東藤沢
- 入間市東藤沢6丁目 新築戸建

































