- HOME
- 一戸建てをエリアから探す
- 新宿区
- 喜久井町
- 新宿区喜久井町 新築戸建
新築一戸建て
新宿区喜久井町 新築戸建
情報更新日:2026/04/17 次回更新予定日:2026/05/01
価 格7,000万円(税込)
所在地東京都新宿区喜久井町[周辺地図]
交 通東京メトロ東西線「早稲田」駅徒歩7分





2025年10月築の新築未入居物件、食洗器や浴室乾燥機など設備も充実。都心へのアクセスも良好、周辺は生活施設の整った住環境です。
担当スタッフより

- 有賀健生
- 開放感のある角地の家、2025年10月築の未入居物件、お気軽にご内覧頂けます。
物件詳細情報
物件No.31023015543
| 所在地 | 東京都新宿区喜久井町 | ||
|---|---|---|---|
| 交通 | 東京メトロ東西線「早稲田」駅徒歩7分 都営大江戸線「牛込柳町」駅徒歩9分 都営大江戸線「若松河田」駅徒歩11分 |
||
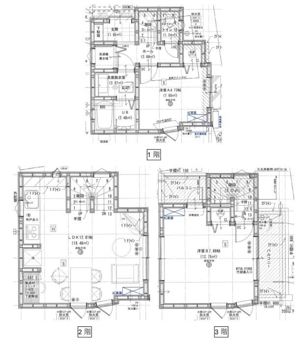
| 間取 | 2LDK | ||
| 土地面積 | 53.65m² 公簿 (私道20.82m²別に有、セットバック12.34m²) | ||
| 建物面積 | 58.92m² 公簿 | ||
| 販売戸数 | 1戸 | 総戸数 | 全1戸 |
| 構造・規模 | 木造 3階建て | 築年・入居 | 2025年10月 |
| 建物現況 | 完成済 | 建築確認番号 | 第24UDI1T建03614号 |
| 引渡時期 | 相談 | 国土法届出 | 不要 |
| 地目 | 宅地 | 用途地域 | 第一種中高層住居専用地域 |
| 建ぺい率 | 60% | 容積率 | 300% |
| 都市計画 | 市街化区域 | 権利種類 | 所有権 |
| 接道 | 北東側4M私道に接道 北西側3.2M私道に接道 |
小学校区 | 新宿区立早稲田小学校(160m) |
| 中学校区 | 新宿区立牛込第二中学校(150m) | 取引態様 | 媒介 |
| 設備 | 公営水道、本下水 | ||
こだわり項目
角地食器洗浄機ガスコンロシステムキッチン3口以上コンロ温水洗浄便座シャワー付洗面台浴室乾燥機浴室暖房浴室に窓オートバスバリアフリー仕様TVモニタ付インターホンスーパー400m以内コンビニ400m以内公園800m以内通風良好
- ※価格は物件の代金総額を表示しており、消費税が課税される場合は税込み価格です。(1,000円未満は切り上げ。)
税率は引き渡し時期により異なりますので、各物件の詳細につきましてはお問い合わせください。 - ※敷地権利が借地権のものは価格に権利金を含みます。
- ※制作中に内容が変更される場合もありますので、あらかじめご了承ください。
- ※購入の前には物件内容や契約条件についてご自身で十分な確認をしていただくようにお願いいたします。
- ※完成予想図はいずれも外構、植栽、外観等実際のものとは多少異なることがあります。
- ※CG合成の画像の場合、実際とは多少異なる場合があります。
周辺地図
周辺施設一覧
- ショッピングセンター
- スーパー
- コンビニ
- ドラッグストア
- ホームセンター
- 飲食店
- その他店舗
- 商店街
- 大学
- 専門学校
- 高校・高専
- 中学校
- 小学校
- 保育園
- 幼稚園
- 公民館・児童館
- 病院
- 郵便局
- 役所
- 図書館
- 金融機関
- 警察・消防
- 趣味・娯楽施設
- 公園・運動施設
- 周辺の街並み
- 駅
- その他
周辺施設ギャラリー
| 新宿区立早稲田小学校(約160m) | 新宿区立牛込第二中学校(約150m) | ||
| 東京メトロ東西線「早稲田」駅(約240m)、都営大江戸線「若松河田」駅(約990m)、都営大江戸線「牛込柳町」駅(約590m) | |||
お問い合せ先
- 株式会社エステート白馬 中野店
- お電話でのお問い合わせは
0120-512-325「ホームページを見た」とお問い合わせください - 東京都中野区新井2-1-19 パックマートビル4F
- 営業時間:9:30~19:00
- 定休日:年中無休
- 免許番号:国土交通大臣免許(6)第5817号
- HOME
- 一戸建てをエリアから探す
- 新宿区
- 喜久井町
- 新宿区喜久井町 新築戸建















