- HOME
- 一戸建てをエリアから探す
- 越谷市
- 神明町
- 越谷市神明町2期 全1棟
新築一戸建て
越谷市神明町2期 全1棟
情報更新日:2026/04/06 次回更新予定日:2026/04/20
価 格4,999万円(税込)
所在地埼玉県越谷市神明町2丁目[周辺地図]
交 通東武伊勢崎線「北越谷」駅徒歩15分





・北越谷駅徒歩15分、通勤通学に便利な落ち着いた住環境
・南西道路×駐車2台可で、陽当たりと使い勝手をしっかり確保
・4LDK+パントリー+SIC、家事動線と収納力が光る間取り
・ZEH水準の省エネ住宅で、将来まで家計にやさしい住まい
・南西道路×駐車2台可で、陽当たりと使い勝手をしっかり確保
・4LDK+パントリー+SIC、家事動線と収納力が光る間取り
・ZEH水準の省エネ住宅で、将来まで家計にやさしい住まい
- すべて(18)
- 外観・パース(16)
- 内観(0)
- 間取・区画(2)
- その他(0)
- 動画
すべての画像
間取り
区画図
青空の下、新しい始まりを予感させる整地された敷地
静かな住宅街に広がる、穏やかな日常の風景。
新しい街並みが静かに広がる、建築中の確かな空間。
澄み渡る空の下、新しい暮らしが始まる予感
雪解けの静けさが、コンクリートの壁に静かな陰影を落とす。
澄み切った青空の下、静かな街並みに佇む、洗練された住まい。
担当スタッフより

- 佐薙 大成
- ・北越谷駅徒歩15分、通勤通学に便利な落ち着いた住環境
・南西道路×駐車2台可で、陽当たりと使い勝手をしっかり確保
・4LDK+パントリー+SIC、家事動線と収納力が光る間取り
・ZEH水準の省エネ住宅で、将来まで家計にやさしい住まい
物件詳細情報
物件No.31023026156
| 所在地 | 埼玉県越谷市神明町2丁目 | ||
|---|---|---|---|
| 交通 | 東武伊勢崎線「北越谷」駅徒歩15分 東武伊勢崎線「越谷」駅徒歩33分 東武伊勢崎線「大袋」駅徒歩42分 |
||
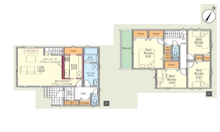
| 間取 | 4LDK (LDK18.9帖、洋室8帖、洋室5.2帖、洋室5.2帖、洋室5帖) | ||
| 土地面積 | 115.09m² 公簿 | ||
| 建物面積 | 109.98m² 実測 | ||
| 販売戸数 | 1戸 | 総戸数 | 全1戸 |
| 構造・規模 | 木造 2階建て | 築年・入居 | 2026年5月 |
| バルコニー | 南西向き | 建物現況 | 建築中 |
| 建築確認番号 | 第25UDI1W建111393号 | 駐車スペース | 2台可(カースペース) |
| 引渡時期 | 相談 | 国土法届出 | 不要 |
| 地目 | 宅地 | 用途地域 | 第一種住居地域/第一種低層住居専用地域 |
| 建ぺい率 | 60%/60% | 容積率 | 160%/100% |
| 都市計画 | 市街化区域 | 権利種類 | 所有権 |
| 接道 | 南西側4M公道に接道 | 小学校区 | 越谷市立荻島小学校(800m) |
| 中学校区 | 越谷市立西中学校(650m) | 取引態様 | 媒介 |
| 設備 | 私設水道、本下水、都市ガス | ||
| 省エネ性能表示 | エネルギー消費性能:★★★ 断熱性能:5段階 |
||
| その他制限事項 | 宅地造成工事規制区域、日影制限有 | ||
| 備考・制限等 | 法第22条区域、下水処理区域、宅地造成等工事規制区域、日影規制4h-2.5h 4m・4h-2.5h 1.5m 高さ制限(10m) | ||
こだわり項目
LDK15帖以上省エネ・エコ住宅全室2面採光床下収納全居室収納食器洗浄機浄水器カウンターキッチンパントリー(食器・食品の収納庫)温水洗浄便座シャワー付洗面台浴室乾燥機浴室1坪以上浴室に窓リビング階段シューズインクローゼットTVモニタ付インターホン24時間換気システム小学校800m以内陽当り良好フラット35Sに対応
- ※価格は物件の代金総額を表示しており、消費税が課税される場合は税込み価格です。(1,000円未満は切り上げ。)
税率は引き渡し時期により異なりますので、各物件の詳細につきましてはお問い合わせください。 - ※敷地権利が借地権のものは価格に権利金を含みます。
- ※制作中に内容が変更される場合もありますので、あらかじめご了承ください。
- ※購入の前には物件内容や契約条件についてご自身で十分な確認をしていただくようにお願いいたします。
- ※完成予想図はいずれも外構、植栽、外観等実際のものとは多少異なることがあります。
- ※CG合成の画像の場合、実際とは多少異なる場合があります。
周辺地図
周辺施設一覧
- ショッピングセンター
- スーパー
- コンビニ
- ドラッグストア
- ホームセンター
- 飲食店
- その他店舗
- 商店街
- 大学
- 専門学校
- 高校・高専
- 中学校
- 小学校
- 保育園
- 幼稚園
- 公民館・児童館
- 病院
- 郵便局
- 役所
- 図書館
- 金融機関
- 警察・消防
- 趣味・娯楽施設
- 公園・運動施設
- 周辺の街並み
- 駅
- その他
お問い合せ先
- 株式会社エステート白馬 越谷店
- お電話でのお問い合わせは
0120-315-586「ホームページを見た」とお問い合わせください - 埼玉県越谷市大字袋山1361-16 1F
- 営業時間:9:00~18:00
- 定休日:年中無休
- 免許番号:国土交通大臣免許(6)第5817号
- HOME
- 一戸建てをエリアから探す
- 越谷市
- 神明町
- 越谷市神明町2期 全1棟














