- HOME
- 一戸建てをエリアから探す
- 中野区
- 上高田
- 中野区上高田5丁目 新築戸建 全2棟
新築一戸建て
中野区上高田5丁目 新築戸建 全2棟
情報更新日:2026/04/23 次回更新予定日:2026/05/07 取引条件有効期限:2026/05/07
所在地東京都中野区上高田5丁目[周辺地図]
交 通西武新宿線「新井薬師前」駅徒歩7分





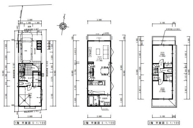
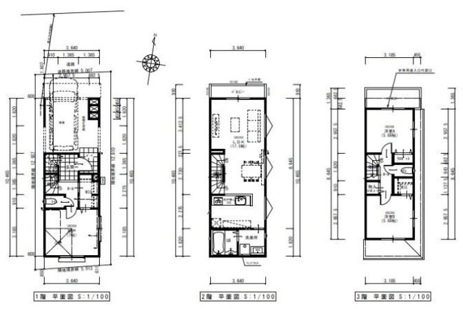
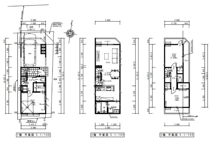
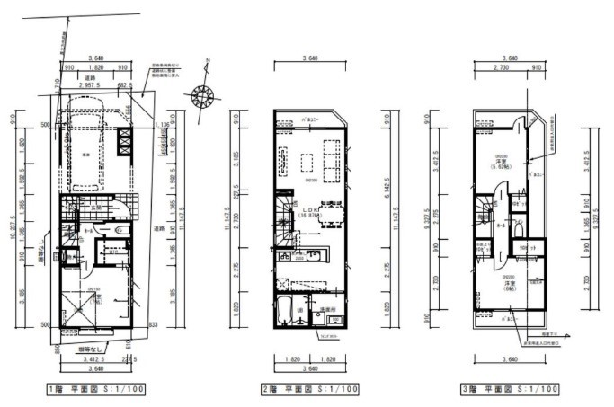
ビルトインガレージのある都市型三層住宅、カウンターキッチンのある開放的なレイアウト、周辺は生活施設の整った閑静な住宅地です。
担当スタッフより

- 村松俊介
- 保育園・小学校、公園も近く、子育てファミリーにもおすすめのロケーション。
各棟情報
物件詳細情報
物件No.31023061892
| 所在地 | 東京都中野区上高田5丁目 | ||
|---|---|---|---|
| 交通 | 西武新宿線「新井薬師前」駅徒歩7分 都営大江戸線「落合南長崎」駅徒歩18分 東京メトロ東西線「落合」駅徒歩22分 |
||
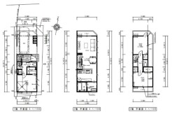
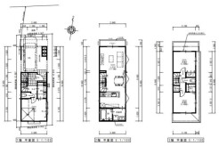
| 間取 | 3LDK~3LDK | ||
| 土地面積 | 64.4m² ~ 65.57m² 公簿 | ||
| 建物面積 | 105m² ~ 105.83m² 公簿 (車庫ポート等約17.24平米含む) | ||
| 販売戸数 | 2戸 | 総戸数 | 全2戸 |
| 構造・規模 | 木造 3階建て | 築年・入居 | 2026年3月 |
| バルコニー | 北向き | 建物現況 | 完成済 |
| 建築確認番号 | 第25UDI1T建02538号、他 | 駐車スペース | 1台(カーポート) |
| 引渡時期 | 即引渡可 | 国土法届出 | 不要 |
| 地目 | 宅地 | 用途地域 | 第一種低層住居専用地域 |
| 建ぺい率 | 60% | 容積率 | 150% |
| 権利種類 | 所有権 | 接道 | 北側4M私道に5M接道 |
| 小学校区 | 中野区立令和小学校(60m) | 中学校区 | 中野区立第五中学校(530m) |
| 取引態様 | 媒介 | ||
| 設備 | 公営水道、本下水、都市ガス | ||
こだわり項目
閑静な住宅地LDK15帖以上全居室収納複層ガラス食器洗浄機システムキッチンカウンターキッチン3口以上コンロトイレ2ヶ所温水洗浄便座シャワー付洗面台浴室乾燥機浴室に窓オートバスウォークインクローゼットシューズインクローゼットTVモニタ付インターホン保育園・幼稚園800m以内公園800m以内
- ※価格は物件の代金総額を表示しており、消費税が課税される場合は税込み価格です。(1,000円未満は切り上げ。)
税率は引き渡し時期により異なりますので、各物件の詳細につきましてはお問い合わせください。 - ※敷地権利が借地権のものは価格に権利金を含みます。
- ※制作中に内容が変更される場合もありますので、あらかじめご了承ください。
- ※購入の前には物件内容や契約条件についてご自身で十分な確認をしていただくようにお願いいたします。
- ※完成予想図はいずれも外構、植栽、外観等実際のものとは多少異なることがあります。
- ※CG合成の画像の場合、実際とは多少異なる場合があります。
周辺地図
周辺施設一覧
- ショッピングセンター
- スーパー
- コンビニ
- ドラッグストア
- ホームセンター
- 飲食店
- その他店舗
- 商店街
- 大学
- 専門学校
- 高校・高専
- 中学校
- 小学校
- 保育園
- 幼稚園
- 公民館・児童館
- 病院
- 郵便局
- 役所
- 図書館
- 金融機関
- 警察・消防
- 趣味・娯楽施設
- 公園・運動施設
- 周辺の街並み
- 駅
- その他
お問い合せ先
- 株式会社エステート白馬 中野店
- お電話でのお問い合わせは
0120-512-325「ホームページを見た」とお問い合わせください - 東京都中野区新井2-1-19 パックマートビル4F
- 営業時間:9:30~19:00
- 定休日:年中無休
- 免許番号:国土交通大臣免許(6)第5817号
- HOME
- 一戸建てをエリアから探す
- 中野区
- 上高田
- 中野区上高田5丁目 新築戸建 全2棟











