- HOME
- 一戸建てをエリアから探す
- 桶川市
- 末広
- 桶川市末広3丁目





当店は東大宮駅東口から徒歩3分。電車でもお車でもご来店しやすい店舗です。お気軽にお立ち寄り下さい。
担当スタッフより

- 黒田 貴士
- ~人気のリモート見学・リモート相談サービス~
・小さいお子様や家事で外出できない、天気が悪く外出したくない時
・LINEやZOOMなど無料のアプリですぐにご利用いただけます
・リモート見学はスタッフがご興味ある物件の現地から映像をお届けします
・写真では伝わりにくい「空気感」や違うアングルからみたかったリビングの「見え方」などもしっかり確認できます
・リモート相談は第三者による住宅ローンや家計相談を専門のファイナンシャルプランナーと1対1で
・バーチャル背景でプライバシーも安心
・忙しいパートナーに変わって予め確認も
・別々の場所から家族みんなで参加もできます
・お気軽にご相談下さい
~営業時間~
9:30~18:30
こちらのお時間でしたらお電話でのお問合せがスムーズです
お気軽にお問合せください
物件詳細情報
物件No.31023068797
| 所在地 | 埼玉県桶川市末広3丁目 | ||
|---|---|---|---|
| 交通 | 高崎線「桶川」駅徒歩22分 湘南新宿ライン高海「桶川」駅バス11分 バス停「末広町」停歩7分 ニューシャトル「内宿」駅徒歩44分 |
||
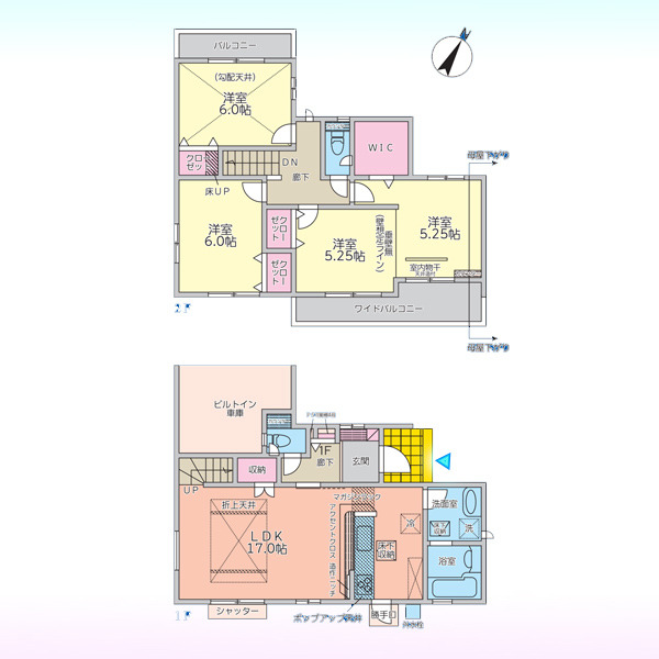
| 間取 | 4LDK (LDK17帖、洋室6帖、洋室6帖、洋室5.25帖、洋室5.25帖) | ||
| 土地面積 | 122.49m² 公簿 | ||
| 建物面積 | 109.72m² 公簿 | ||
| 構造・規模 | 木造 2階建て | 築年月 | 2021年7月築 |
| バルコニー | 南東向き | 国土法届出 | 不要 |
| 用途地域 | 第一種低層住居専用地域 | 建ぺい率 | 50% |
| 容積率 | 80% | 都市計画 | 市街化区域 |
| 駐車スペース | 2台可(車庫) | 現況 | 居住中 |
| 引渡時期 | 相談 | 権利種類 | 所有権 |
| 接道 | 北西側5M公道に接道 | 小学校区 | 桶川市立桶川東小学校(620m) |
| 中学校区 | 桶川市立桶川東中学校(490m) | 取引態様 | 媒介 |
| 設備 | 公営水道、本下水、都市ガス | ||
| 備考・制限等 | 建物面積に車庫面積12.00平米を含む | ||
こだわり項目
平坦地閑静な住宅地地盤調査済LDK15帖以上庭床下収納全居室収納ワイドバルコニー2面以上バルコニー複層ガラス食器洗浄機浄水器省エネ給湯器ガスコンロシステムキッチンカウンターキッチン3口以上コンロトイレ2ヶ所温水洗浄便座節水型トイレシャワー付洗面台浴室乾燥機浴室暖房追焚機能浴室1坪以上浴室に窓オートバス全居室フローリングリビング階段ウォークインクローゼットTVモニタ付インターホンビルトガレージ24時間換気システム小学校800m以内保育園・幼稚園800m以内コンビニ400m以内公園800m以内陽当り良好通風良好眺望良好
- ※価格は物件の代金総額を表示しており、消費税が課税される場合は税込み価格です。(1,000円未満は切り上げ。)
税率は引き渡し時期により異なりますので、各物件の詳細につきましてはお問い合わせください。 - ※敷地権利が借地権のものは価格に権利金を含みます。
- ※制作中に内容が変更される場合もありますので、あらかじめご了承ください。
- ※購入の前には物件内容や契約条件についてご自身で十分な確認をしていただくようにお願いいたします。
- ※完成予想図はいずれも外構、植栽、外観等実際のものとは多少異なることがあります。
- ※CG合成の画像の場合、実際とは多少異なる場合があります。
周辺地図
周辺施設一覧
- ショッピングセンター
- スーパー
- コンビニ
- ドラッグストア
- ホームセンター
- 飲食店
- その他店舗
- 商店街
- 大学
- 専門学校
- 高校・高専
- 中学校
- 小学校
- 保育園
- 幼稚園
- 公民館・児童館
- 病院
- 郵便局
- 役所
- 図書館
- 金融機関
- 警察・消防
- 趣味・娯楽施設
- 公園・運動施設
- 周辺の街並み
- 駅
- その他
お問い合せ先
- 株式会社エステート白馬 東大宮店
- お電話でのお問い合わせは
0120-953-325「ホームページを見た」とお問い合わせください - 埼玉県さいたま市見沼区東大宮5-31-9 NYビル1F
- 営業時間:9:00~20:00
- 定休日:年中無休
- 免許番号:国土交通大臣免許(6)第5817号











