- HOME
- 中古マンションをエリアから探す
- 板橋区
- 成増
- ライオンズヴィアーレ成増
中古マンション
ライオンズヴィアーレ成増
情報更新日:2026/04/15 次回更新予定日:2026/04/29
価 格5,980万円(税込)
所在地東京都板橋区成増3丁目[周辺地図]
交 通東武東上線「成増」駅徒歩12分





南西向き角部屋のリノベーション住戸、陽当たりの良いお部屋です。食洗器や浴室乾燥機など設備の充実。ペット飼育可、管理体制良好。
担当スタッフより

- 村山栞理
- 安心の新耐震基準マンション。落ち着いた住環境で、ゆとりのある暮らしを。ペットと暮らせるペット可マンション。
物件詳細情報
物件No.31023100660
| 所在地 | 東京都板橋区成増3丁目 | ||
|---|---|---|---|
| 交通 | 東武東上線「成増」駅徒歩12分 東京メトロ副都心線「地下鉄成増」駅徒歩13分 東武東上線「下赤塚」駅徒歩31分 |
||
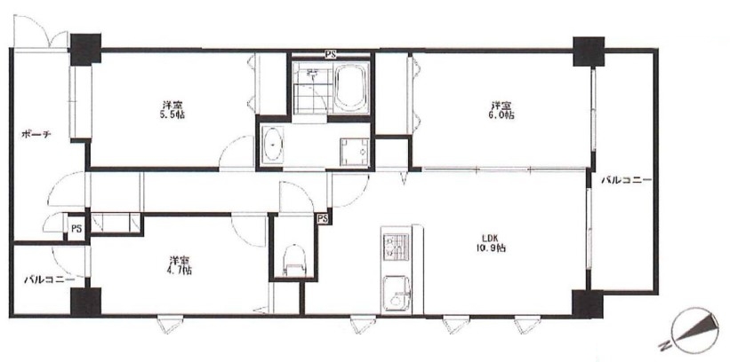
| 間取 | 3LDK (LDK10.9帖、洋室6.0帖、洋室5.5帖、洋室4.7帖) | ||
| 専有面積 | 60.8m² (壁芯) | ||
| バルコニー面積 | 11.1m² 南西向き | ||
| 販売戸数 | 1戸 | 総戸数 | 全39戸 |
| 構造・規模 | 鉄筋コンクリート造 7階建て 4階部分 |
築年・入居 | 1997年3月築 |
| 現況 | 空室 | 引渡時期 | 相談 |
| 権利種類 | 所有権 | 管理費 | 12,800円/月 |
| 修繕積立金 | 14,590円/月 | 管理形態 | 巡回 全部委託 |
| 管理会社 | 株式会社 大京アステージ | ペット | 可 |
| 小学校区 | 板橋区立成増ヶ丘小学校(810m) | 中学校区 | 板橋区立赤塚第二中学校(740m) |
| 取引態様 | 媒介 | ||
| リフォーム |
|
||
| 設備 | 公営水道、本下水、都市ガス | ||
こだわり項目
角部屋食器洗浄機浄水器システムキッチン温水洗浄便座シャワー付洗面台浴室乾燥機オートバス室内洗濯機置き場TVモニタ付インターホン24時間宅配ボックスエレベーター小学校800m以内保育園・幼稚園800m以内スーパー400m以内コンビニ400m以内公園800m以内
- ※価格は物件の代金総額を表示しており、消費税が課税される場合は税込み価格です。(1,000円未満は切り上げ。)
税率は引き渡し時期により異なりますので、各物件の詳細につきましてはお問い合わせください。 - ※敷地権利が借地権のものは価格に権利金を含みます。
- ※制作中に内容が変更される場合もありますので、あらかじめご了承ください。
- ※購入の前には物件内容や契約条件についてご自身で十分な確認をしていただくようにお願いいたします。
- ※完成予想図はいずれも外構、植栽、外観等実際のものとは多少異なることがあります。
- ※CG合成の画像の場合、実際とは多少異なる場合があります。
周辺地図
周辺施設一覧
- ショッピングセンター
- スーパー
- コンビニ
- ドラッグストア
- ホームセンター
- 飲食店
- その他店舗
- 商店街
- 大学
- 専門学校
- 高校・高専
- 中学校
- 小学校
- 保育園
- 幼稚園
- 公民館・児童館
- 病院
- 郵便局
- 役所
- 図書館
- 金融機関
- 警察・消防
- 趣味・娯楽施設
- 公園・運動施設
- 周辺の街並み
- 駅
- その他
お問い合せ先
- 株式会社エステート白馬 中野店
- お電話でのお問い合わせは
0120-512-325「ホームページを見た」とお問い合わせください - 東京都中野区新井2-1-19 パックマートビル4F
- 営業時間:9:30~19:00
- 定休日:年中無休
- 免許番号:国土交通大臣免許(6)第5817号
- HOME
- 中古マンションをエリアから探す
- 板橋区
- 成増
- ライオンズヴィアーレ成増















