- HOME
- 中古マンションをエリアから探す
- さいたま市大宮区
- 三橋
- 洋伸大宮マンション
洋伸大宮マンション
情報更新日:2026/04/10 次回更新予定日:2026/04/24
価 格2,099万円(税込)
所在地埼玉県さいたま市大宮区三橋1丁目[周辺地図]
交 通京浜東北・根岸線「大宮」駅バス14分 停歩4分





・予約は最短2分でOK、ネットからの見学予約が好評です。
・令和8年1月リノベ完了済み
・キッチン浴室洗面トイレ新規交換
・全室クロス張替と床材一新
・LDK13.10帖のゆとり空間
・南向きバルコニーの明るさ
・浴室乾燥機と追焚機能を搭載
・食洗機付き対面キッチン
・新耐震基準で安心感
Public Relations ――――
◇弊社は中古設備にも修理サービスを無料付保
◇無料駐車場完備のお店です
◇店内に大型キッズスペースあり
◇提携FPへの無料個別相談サービスが好評です
すべての画像
開放感と採光にこだわったLDK。
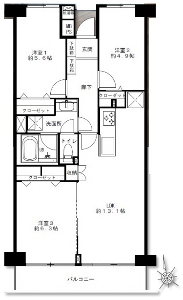
図面と現況が異なる場合は現況を優先させていただきます。
ご家族みんながゆったりくつろげる広々リビング。
家族団らんの時間も増えそうな、くつろぎのLDK。
リビングは家具の配置も思いのまま。自由度が高い設計です。
リビング空間にこだわりたい方に、見ていただきたい住宅です。
南側に大きな窓を配置、明るいリビングが出来ました。
開放的なこの空間がお客様をお出迎えします。
リビング空間とダイニング空間とか使い分けやすい間取り配置。対面式でキッチン立つ人の視界も良好です。
カウンターからはリビングが広く見渡せ、ご家族とのコミュニケーションも弾みます。
お風呂で一日の疲れが取れますように。
たっぷりの陽光に包まれる明るい住まいが、ここにあります。
お子様にとっていいお昼寝空間になるお部屋は、ぜひリビングのお隣で。
手に優しい、後片づけおまかせの食洗機。食後のだんらんを早く楽しんでください。
化粧台はやっぱり色が一番。シャワーヘッド付きの収納充実タイプです。
お手洗いこそシンプルな清潔感が重要、白いクロスに白いお手洗いを配置しました。
何かとものがあふれやすいリビングに、ちょっと一工夫。うれしい収納空間。
ドライヤーの風に包まれながら、今日一日の終わりを感じる。そんな、地味だけど決して無くてはならない、名脇役。
落ち着いた色味と整ったフォルムが街並みに美しく調和しています。
今からここを誰のお部屋にしようか、そんな洋室。
子供部屋には丁度良い洋室。
キッチンの性能が上がれば、いつものお料理も楽しくなりますね。
南側に面したワイドな幅のバルコニー、カラッと洗濯物が乾きそう。
閑静な住宅地で叶える、穏やかな新生活が待ってます。
担当スタッフより

- 柳田一輝
- ◎令和8年1月リノベーション完了の空室住戸。南向きLDKと充実設備で快適な新生活を始めたいご家族におすすめです。
物件詳細情報
物件No.31023124669
| 所在地 | 埼玉県さいたま市大宮区三橋1丁目 | ||
|---|---|---|---|
| 交通 | 京浜東北・根岸線「大宮」駅バス14分 バス停「三橋一丁目」停歩4分 埼京線「大宮」駅バス14分 バス停「三橋一丁目」停歩4分 高崎線「大宮」駅徒歩28分 |
||
| 間取 | 3LDK (LDK13.1帖) | ||
| 専有面積 | 65.33m² (壁芯) | ||
| バルコニー面積 | 8.33m² 南向き | ||
| 販売戸数 | 1戸 | 総戸数 | 全123戸 |
| 構造・規模 | その他 10階建て 3階部分 |
築年・入居 | 1983年6月築 |
| 施工会社 | (株)長谷川工務店 | 現況 | 空室 |
| 引渡時期 | 即引渡可 | 権利種類 | 所有権 |
| 管理費 | 8,500円/月 | 修繕積立金 | 21,490円/月 |
| 管理形態 | 日勤 全部委託 | 管理会社 | 日本ハウズイング(株) |
| 駐車場 | 敷地内にあり 料金:5,250円/月 | 駐輪場料金 | 1,200円/年 |
| バイク置場料金 | 2,400円〜2,600円/年 | ペット | 不可 |
| 小学校区 | さいたま市立三橋小学校(840m) | 中学校区 | さいたま市立三橋中学校(500m) |
| 取引態様 | 媒介 | ||
| リフォーム |
|
||
| 設備 | 都市ガス | ||
| 備考・制限等 | 駐車場・駐輪場・バイク置場空き状況要確認 事務所利用不可 住宅宿泊事業不可 ペット飼育不可 TV共聴設備:CATV方式(J:COM) 衛星放送設備:BS/CS(個別契約) インターネット設備:NTT-Bフレッツ/USEN/J:COM(個別契約) 宅配ボックス無 長期修繕計画有 管理組合運営協力金:月額2000円(外部区分所有者のみ) 司法書士売主指定 新耐震基準マンション | ||
こだわり項目
- ※価格は物件の代金総額を表示しており、消費税が課税される場合は税込み価格です。(1,000円未満は切り上げ。)
税率は引き渡し時期により異なりますので、各物件の詳細につきましてはお問い合わせください。 - ※敷地権利が借地権のものは価格に権利金を含みます。
- ※制作中に内容が変更される場合もありますので、あらかじめご了承ください。
- ※購入の前には物件内容や契約条件についてご自身で十分な確認をしていただくようにお願いいたします。
- ※完成予想図はいずれも外構、植栽、外観等実際のものとは多少異なることがあります。
- ※CG合成の画像の場合、実際とは多少異なる場合があります。
周辺地図
周辺施設一覧
- ショッピングセンター
- スーパー
- コンビニ
- ドラッグストア
- ホームセンター
- 飲食店
- その他店舗
- 商店街
- 大学
- 専門学校
- 高校・高専
- 中学校
- 小学校
- 保育園
- 幼稚園
- 公民館・児童館
- 病院
- 郵便局
- 役所
- 図書館
- 金融機関
- 警察・消防
- 趣味・娯楽施設
- 公園・運動施設
- 周辺の街並み
- 駅
- その他
お問い合せ先
- 株式会社エステート白馬 上尾駅前店
- お電話でのお問い合わせは
0120-307-898「ホームページを見た」とお問い合わせください - 埼玉県上尾市谷津2-1-1 ショーサンプラザ(イトーヨーカ堂)5F
- 営業時間:9:00~20:00
- 定休日:年中無休
- 免許番号:国土交通大臣免許(6)第5817号

































