- HOME
- 中古マンションをエリアから探す
- 荒川区
- 南千住
- けやき通り北九番館
中古マンション

けやき通り北九番館
情報更新日:2026/04/15 次回更新予定日:2026/04/29
価 格5,480万円(税込)
所在地東京都荒川区南千住8丁目[周辺地図]
交 通常磐線「南千住」駅徒歩15分

眺望の良い11階部分、陽当たりの良い南向き、室内リノベーション住戸。24時間セキュリティ、総戸数120戸、管理体制良好です。
担当スタッフより

- 水村光輝
- バルコニーからスカイツリーを望む、眺望の良いお部屋です。複数路線利用可能、通勤通学便利なロケーション。
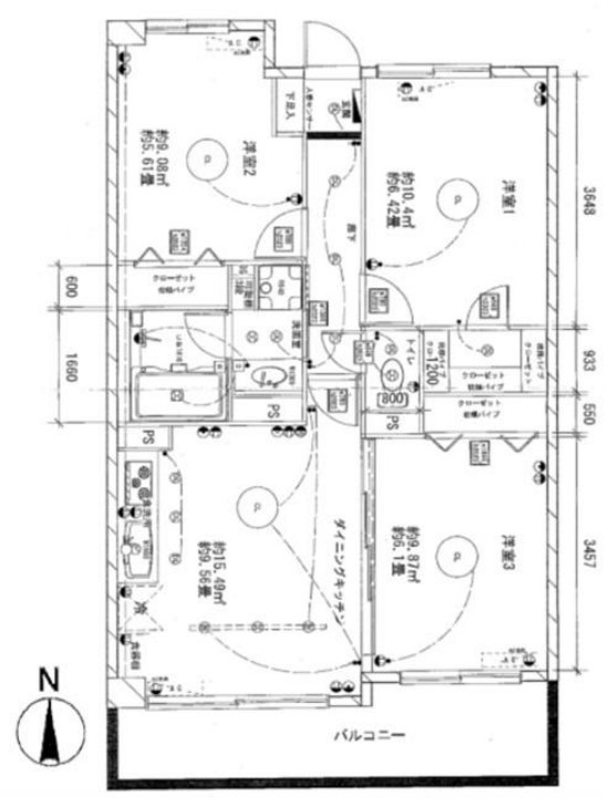
物件詳細情報
物件No.31023189177
| 所在地 | 東京都荒川区南千住8丁目 | ||
|---|---|---|---|
| 交通 | 常磐線「南千住」駅徒歩15分 東京メトロ日比谷線「南千住」駅徒歩15分 東武伊勢崎線「牛田」駅徒歩14分 |
||
| 間取 | 3DK | ||
| 専有面積 | 61.34m² (壁芯) | ||
| バルコニー面積 | 10.16m² 南向き | ||
| 販売戸数 | 1戸 | 総戸数 | 全120戸 |
| 構造・規模 | 鉄骨鉄筋コンクリート造 11階建て 10階部分 |
築年・入居 | 1992年9月築 |
| 現況 | 居住中 | 引渡時期 | 相談 |
| 権利種類 | 所有権 | 管理費 | 13,320円/月 |
| 修繕積立金 | 6,130円/月 | 管理形態 | 巡回 全部委託 |
| 管理会社 | 長谷工コミュニティ | ペット | 不可 |
| 組合費 | 370円/月 | 小学校区 | 荒川区立汐入東小学校(310m) |
| 中学校区 | 荒川区立第三中学校(100m) | 取引態様 | 媒介 |
| リフォーム |
|
||
| 設備 | 公営水道、本下水、都市ガス | ||
こだわり項目
全居室収納ウォークインクローゼットエレベーター小学校800m以内保育園・幼稚園800m以内スーパー400m以内コンビニ400m以内公園800m以内
- ※価格は物件の代金総額を表示しており、消費税が課税される場合は税込み価格です。(1,000円未満は切り上げ。)
税率は引き渡し時期により異なりますので、各物件の詳細につきましてはお問い合わせください。 - ※敷地権利が借地権のものは価格に権利金を含みます。
- ※制作中に内容が変更される場合もありますので、あらかじめご了承ください。
- ※購入の前には物件内容や契約条件についてご自身で十分な確認をしていただくようにお願いいたします。
- ※完成予想図はいずれも外構、植栽、外観等実際のものとは多少異なることがあります。
- ※CG合成の画像の場合、実際とは多少異なる場合があります。
周辺地図
周辺施設一覧
- ショッピングセンター
- スーパー
- コンビニ
- ドラッグストア
- ホームセンター
- 飲食店
- その他店舗
- 商店街
- 大学
- 専門学校
- 高校・高専
- 中学校
- 小学校
- 保育園
- 幼稚園
- 公民館・児童館
- 病院
- 郵便局
- 役所
- 図書館
- 金融機関
- 警察・消防
- 趣味・娯楽施設
- 公園・運動施設
- 周辺の街並み
- 駅
- その他
周辺施設ギャラリー
| 荒川区立汐入東小学校(約310m) | 荒川区立第三中学校(約100m) | ||
| JR常磐線・東京メトロ日比谷線・つくばエクスプレス「南千住」駅(約1,650m)、東京スカイツリーライン「牛田」駅(約1,040m) | |||
お問い合せ先
- 株式会社エステート白馬 中野店
- お電話でのお問い合わせは
0120-512-325「ホームページを見た」とお問い合わせください - 東京都中野区新井2-1-19 パックマートビル4F
- 営業時間:9:30~19:00
- 定休日:年中無休
- 免許番号:国土交通大臣免許(6)第5817号








