- HOME
- 中古マンションをエリアから探す
- さいたま市大宮区
- 三橋
- グリーンパーク大宮1号棟
グリーンパーク大宮1号棟
情報更新日:2026/05/30 次回更新予定日:2026/06/13
価 格2,580万円(税込)
所在地埼玉県さいたま市大宮区三橋1丁目[周辺地図]
交 通京浜東北・根岸線「大宮」駅バス15分 停歩5分





・予約は最短2分でOK、ネットからの見学予約が好評です。
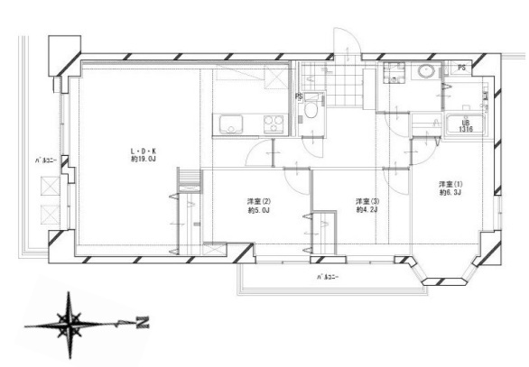
・LDKは19.0帖。家族が自然に集まるゆとりの広さ。
・南向きの大きな窓から、明るい陽光がリビングに届きます。
・7階部分につき眺望良好。開放感のある景色が楽しめます。
・総戸数177戸の大規模コミュニティ。管理体制も良好。
・24時間宅配ボックス完備。不在時の荷物受け取りも楽々。
・三橋中学校まで約550m。部活動で遅くなっても安心。
・大宮三橋一郵便局まで約440m。日々の用事もスムーズ。
・【リフォーム内容(令和8年2月完了)】
・浴室、キッチン、トイレ、洗面所、給湯器、配管交換。
・全室クロス張替、床フロアタイル貼、清掃等を実施済み。
Public Relations ――――
◇弊社は中古設備にも修理サービスを無料で付保します。
◇無料駐車場完備のお店です。
◇店内に大型キッズスペースあり。
◇提携FPへの無料個別相談サービスが好評です。
すべての画像
開放的なこの空間がお客様をお出迎えします。LDKは19帖。
図面と現況が異なる場合は現況を優先させていただきます。
キッチンの性能が上がれば、いつものお料理も楽しくなりますね。
食器洗乾燥機付き、忙しい生活をサポートします。
解放感あふれるリビングは、自然に光と風に恵まれます。
ユニットバスも新規交換。キレイなお風呂で疲れをリフレッシュ。
収納豊富な三面鏡付洗面化粧台。水回りのあれこれがキレイに収まりそうですね。
お掃除らくらく。便座脇の操作盤をなくした、リモコンタイプのお手洗い。
子供部屋には丁度良い洋室。
大事な日当たりは、大きな窓から。誰のお部屋にしましょう。
たっぷりの陽光と、心地よい風が舞い込みます。
こちらのマンションは、全177戸のコミュニティです。
お料理を効率的に、楽しく。あったらいいなをかなえてくれるシステムキッチン。
リビング空間とダイニング空間とか使い分けやすい間取り配置。
リビング空間にこだわりたい方に、見ていただきたい住宅です。
リビングは家具の配置も思いのまま。自由度が高い設計です。
南側に大きな窓を配置、明るいリビングが出来ました。
ご家族みんながゆったりくつろげる広々リビング。
家族が自然に集りそうな広さが魅力のLDK。
何かとものがあふれやすいリビングに、ちょっと一工夫。うれしい収納空間。
全居室収納スペース付きの物件です。
2026年2月、内装リフォーム済みでキレイです。
玄関を開けたらシューズボックス、使いやすい配置です。
玄関横に収納付き、雨具や三輪車を置いても余裕の広さ。
担当スタッフより

- 福田稔
- ◎ペット飼育可能。水回り含め一新されたリノベーション物件。24時間宅配ボックスや防犯カメラ等、設備も充実。西大宮病院まで約400mの安心感。
物件詳細情報
物件No.31023211009
| 所在地 | 埼玉県さいたま市大宮区三橋1丁目 | ||
|---|---|---|---|
| 交通 | 京浜東北・根岸線「大宮」駅バス15分 バス停「三橋一丁目」停歩5分 埼京線「大宮」駅バス15分 バス停「三橋一丁目」停歩5分 高崎線「大宮」駅徒歩29分 |
||
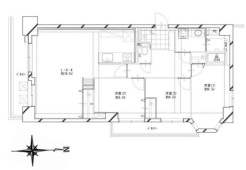
| 間取 | 3LDK (LDK19帖) | ||
| 専有面積 | 77.06m² (壁芯) | ||
| バルコニー面積 | 13.11m² 南向き | ||
| 販売戸数 | 1戸 | 総戸数 | 全177戸 |
| 構造・規模 | 鉄筋コンクリート造 10階建て 7階部分 |
築年・入居 | 1987年5月築 |
| 現況 | 空室 | 引渡時期 | 即引渡可 |
| 権利種類 | 所有権 | 管理費 | 9,900円/月 |
| 修繕積立金 | 19,220円/月 | 管理形態 | 日勤 全部委託 |
| 管理会社 | (株)長谷工コミュニティ | 駐車場 | 敷地内に空なし 料金:5,700 ~ 6,000円/月 |
| 駐輪場料金 | 100円/月 | バイク置場料金 | 300円/月 |
| ペット | 可 | 自治会費 | 300円/月 |
| 小学校区 | さいたま市立三橋小学校(890m) | 中学校区 | さいたま市立三橋中学校(550m) |
| 取引態様 | 媒介 | ||
| リフォーム |
|
||
| 備考・制限等 | 駐輪場・バイク置場・駐車場空き状況要確認 ペット飼育可能 | ||
こだわり項目
- ※価格は物件の代金総額を表示しており、消費税が課税される場合は税込み価格です。(1,000円未満は切り上げ。)
税率は引き渡し時期により異なりますので、各物件の詳細につきましてはお問い合わせください。 - ※敷地権利が借地権のものは価格に権利金を含みます。
- ※制作中に内容が変更される場合もありますので、あらかじめご了承ください。
- ※購入の前には物件内容や契約条件についてご自身で十分な確認をしていただくようにお願いいたします。
- ※完成予想図はいずれも外構、植栽、外観等実際のものとは多少異なることがあります。
- ※CG合成の画像の場合、実際とは多少異なる場合があります。
周辺地図
周辺施設一覧
- ショッピングセンター
- スーパー
- コンビニ
- ドラッグストア
- ホームセンター
- 飲食店
- その他店舗
- 商店街
- 大学
- 専門学校
- 高校・高専
- 中学校
- 小学校
- 保育園
- 幼稚園
- 公民館・児童館
- 病院
- 郵便局
- 役所
- 図書館
- 金融機関
- 警察・消防
- 趣味・娯楽施設
- 公園・運動施設
- 周辺の街並み
- 駅
- その他
お問い合せ先
- 株式会社エステート白馬 上尾駅前店
- お電話でのお問い合わせは
0120-307-898「ホームページを見た」とお問い合わせください - 埼玉県上尾市谷津2-1-1 ショーサンプラザ(イトーヨーカ堂)5F
- 営業時間:9:00~20:00
- 定休日:年中無休
- 免許番号:国土交通大臣免許(6)第5817号































