- HOME
- 土地をエリアから探す
- 越谷市
- 大字下間久里
- 越谷市下間久里24期1号地
土地
越谷市下間久里24期1号地
情報更新日:2026/04/05 次回更新予定日:2026/04/19
価 格2,699万円
所在地埼玉県越谷市大字下間久里[周辺地図]
交 通東武伊勢崎線「大袋」駅徒歩3分





東武伊勢崎線「大袋」駅から徒歩6分という駅近の利便性に加え、103.23m2のゆとりある敷地が魅力です。
南西角地のため日当たりと開放感は優れ、明るく風通しの良い理想の住まいを形にできます。
資産価値も高く、毎日の通勤通学から将来の暮らしまで、ゆとりと安心を約束する好条件の立地です。
ぜひ一度現地をご覧ください。いつでもご案内いたします。
南西角地のため日当たりと開放感は優れ、明るく風通しの良い理想の住まいを形にできます。
資産価値も高く、毎日の通勤通学から将来の暮らしまで、ゆとりと安心を約束する好条件の立地です。
ぜひ一度現地をご覧ください。いつでもご案内いたします。
担当スタッフより

- 佐藤 順子
- 東武伊勢崎線「大袋」駅から徒歩6分という駅近の利便性に加え、103.23m2のゆとりある敷地が魅力です。
南西角地のため日当たりと開放感は優れ、明るく風通しの良い理想の住まいを形にできます。
資産価値も高く、毎日の通勤通学から将来の暮らしまで、ゆとりと安心を約束する好条件の立地です。
ぜひ一度現地をご覧ください。いつでもご案内いたします。
物件詳細情報
物件No.31023355455
| 所在地 | 埼玉県越谷市大字下間久里 | ||
|---|---|---|---|
| 交通 | 東武伊勢崎線「大袋」駅徒歩3分 東武伊勢崎線「せんげん台」駅徒歩21分 東武伊勢崎線「北越谷」駅徒歩36分 |
||
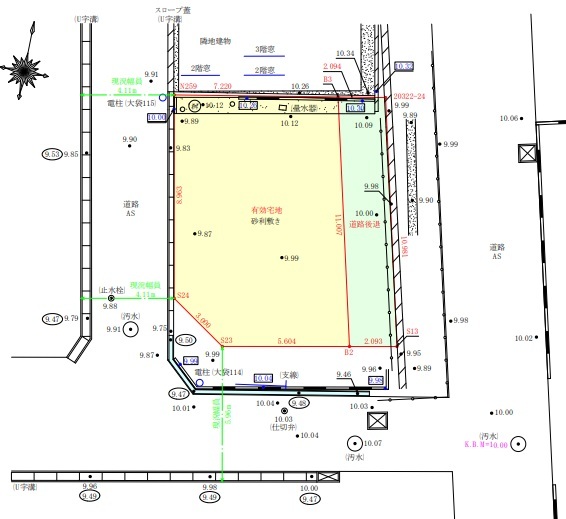
| 土地面積 | 80.24m² 実測 | ||
| 販売区画数 | 1区画 | 総区画数 | 全1区画 |
| 用途地域 | 第一種住居地域 | 建ぺい率 | 60% |
| 容積率 | 200% | 都市計画 | 市街化区域 |
| 国土法届出 | 不要 | 建築条件 | 建築条件なし |
| 地目 | 宅地 | 最適用途 | 住宅用地 |
| 現況 | 更地 | 引渡時期 | 相談 |
| 権利種類 | 所有権 | 接道 | 西側4.1M私道に接道 南側5.9M公道に接道 |
| 小学校区 | 越谷市立大袋北小学校(1380m) | 中学校区 | 越谷市立北中学校(688m) |
| 取引態様 | 媒介 | ||
| 設備 | 公営水道、本下水 | ||
こだわり項目
角地平坦地閑静な住宅地南側道路スーパー400m以内コンビニ400m以内
- ※価格は物件の代金総額を表示しており、消費税が課税される場合は税込み価格です。(1,000円未満は切り上げ。)
税率は引き渡し時期により異なりますので、各物件の詳細につきましてはお問い合わせください。 - ※敷地権利が借地権のものは価格に権利金を含みます。
- ※制作中に内容が変更される場合もありますので、あらかじめご了承ください。
- ※購入の前には物件内容や契約条件についてご自身で十分な確認をしていただくようにお願いいたします。
- ※完成予想図はいずれも外構、植栽、外観等実際のものとは多少異なることがあります。
- ※CG合成の画像の場合、実際とは多少異なる場合があります。
周辺地図
周辺施設一覧
- ショッピングセンター
- スーパー
- コンビニ
- ドラッグストア
- ホームセンター
- 飲食店
- その他店舗
- 商店街
- 大学
- 専門学校
- 高校・高専
- 中学校
- 小学校
- 保育園
- 幼稚園
- 公民館・児童館
- 病院
- 郵便局
- 役所
- 図書館
- 金融機関
- 警察・消防
- 趣味・娯楽施設
- 公園・運動施設
- 周辺の街並み
- 駅
- その他
お問い合せ先
- 株式会社エステート白馬 越谷店
- お電話でのお問い合わせは
0120-315-586「ホームページを見た」とお問い合わせください - 埼玉県越谷市大字袋山1361-16 1F
- 営業時間:9:00~18:00
- 定休日:年中無休
- 免許番号:国土交通大臣免許(6)第5817号














