- HOME
- 一戸建てをエリアから探す
- 春日部市
- 増富
- 春日部市増富6期 全1棟
新築一戸建て
春日部市増富6期 全1棟
情報更新日:2026/04/05 次回更新予定日:2026/04/19
価 格2,999万円(税込)
所在地埼玉県春日部市増富[周辺地図]
交 通東武野田線「豊春」駅徒歩19分





静かな住宅街、前面道路もゆったりの角地にある敷地です。
周囲には公園がいくつもあり、小さいお子様も、可愛いペットのワンちゃんも、嬉しい環境です。
さらに、お買い物も便利です。
是非一度、現地をご覧になって頂きたいです。
「エステート白馬が選ばれるポイント」
■提携FPへの無料個別相談サービス
社外の中立的なファイナンシャルプランナーと無料相談できます。
ローン返済計画・教育・老後の資金等も含めてシミュレーションをご提案。
■物件情報が豊富
越谷市を中心にたくさんの情報をご用意。
インターネット広告前の物件も多数取り揃えております。
■リフォーム、注文建築
越谷店はショールームとなっており、リフォーム、注文建築部門の相談スペースです。
一級建築士をはじめとした専門スタッフがおりますのでご見学と合わせて、リフォームや注文建築についてご相談可。
■年中無休(年末年始除く)で営業
営業時間 9:30~19:00 この時間はお電話でのお問合わせがスムーズです
■お子様連れでおこしください
キッズスペース、授乳室、オムツ替えベッドをご用意しております。
担当スタッフより

- 金本 千秋
- 静かな住宅街、前面道路もゆったりの角地にある敷地です。
周囲には公園がいくつもあり、小さいお子様も、可愛いペットのワンちゃんも、嬉しい環境です。
さらに、お買い物も便利です。
是非一度、現地をご覧になって頂きたいです。
7月には、素敵な一戸建ての完成です。
現在の土地の状態から、ご自身のマイホームが建ち上がっていく様を
ご覧になっていくのも楽しみなのではないでしょうか。
ご見学にあわせて無料の外部FP相談をご利用頂けます。マイホーム購入だけでなく、老後の資金計画・お子様の教育資金等のライフシュミレーションを考慮した上で、無理のない返済計画をご提案いたします。
物件詳細情報
物件No.31023394803
| 所在地 | 埼玉県春日部市増富 | ||
|---|---|---|---|
| 交通 | 東武野田線「豊春」駅徒歩19分 東武野田線「東岩槻」駅徒歩29分 東武野田線「八木崎」駅徒歩34分 |
||
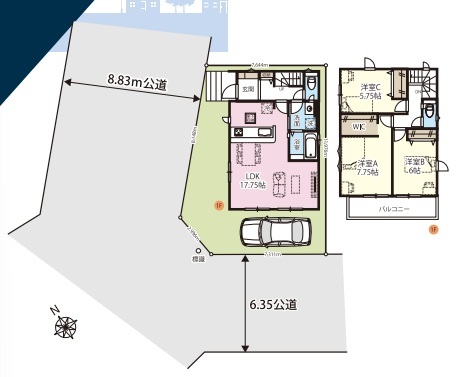
| 間取 | 3LDK (LDK17.75帖、洋室7.75帖、洋室6帖、洋室5.75帖) | ||
| 土地面積 | 101.25m² | ||
| 建物面積 | 90.88m² 実測 | ||
| 販売戸数 | 1戸 | 総戸数 | 全1戸 |
| 構造・規模 | 木造 2階建て | 築年・入居 | 2026年7月 |
| バルコニー | 南西向き | 建物現況 | 建築中 |
| 建築確認番号 | 第HPA-26-02286-1号 | 駐車スペース | 1台(カースペース) |
| 引渡時期 | 相談 | 国土法届出 | 不要 |
| 地目 | 宅地 | 用途地域 | 第一種中高層住居専用地域 |
| 建ぺい率 | 60% | 容積率 | 200% |
| 都市計画 | 市街化区域 | 権利種類 | 所有権 |
| 接道 | 北西側8.83M公道に接道 南西側6.35M公道に接道 |
小学校区 | 春日部市立立野小学校(1120m) |
| 中学校区 | 春日部市立大増中学校(1120m) | 取引態様 | 媒介 |
| 設備 | 公営水道、本下水、都市ガス | ||
| その他制限事項 | 隅切り有 | ||
こだわり項目
LDK15帖以上長期優良住宅床下収納複層ガラス設計住宅性能評価付建設住宅性能評価付(新築時)システムキッチンカウンターキッチントイレ2ヶ所温水洗浄便座浴室乾燥機浴室暖房浴室に窓ウォークインクローゼットTVモニタ付インターホンBS24時間換気システム
- ※価格は物件の代金総額を表示しており、消費税が課税される場合は税込み価格です。(1,000円未満は切り上げ。)
税率は引き渡し時期により異なりますので、各物件の詳細につきましてはお問い合わせください。 - ※敷地権利が借地権のものは価格に権利金を含みます。
- ※制作中に内容が変更される場合もありますので、あらかじめご了承ください。
- ※購入の前には物件内容や契約条件についてご自身で十分な確認をしていただくようにお願いいたします。
- ※完成予想図はいずれも外構、植栽、外観等実際のものとは多少異なることがあります。
- ※CG合成の画像の場合、実際とは多少異なる場合があります。
周辺地図
周辺施設一覧
- ショッピングセンター
- スーパー
- コンビニ
- ドラッグストア
- ホームセンター
- 飲食店
- その他店舗
- 商店街
- 大学
- 専門学校
- 高校・高専
- 中学校
- 小学校
- 保育園
- 幼稚園
- 公民館・児童館
- 病院
- 郵便局
- 役所
- 図書館
- 金融機関
- 警察・消防
- 趣味・娯楽施設
- 公園・運動施設
- 周辺の街並み
- 駅
- その他
お問い合せ先
- 株式会社エステート白馬 越谷店
- お電話でのお問い合わせは
0120-315-586「ホームページを見た」とお問い合わせください - 埼玉県越谷市大字袋山1361-16 1F
- 営業時間:9:00~18:00
- 定休日:年中無休
- 免許番号:国土交通大臣免許(6)第5817号
- HOME
- 一戸建てをエリアから探す
- 春日部市
- 増富
- 春日部市増富6期 全1棟













