- HOME
- 中古マンションをエリアから探す
- 草加市
- 松原
- ソライエシティ ザ・パーク
中古マンション
ソライエシティ ザ・パーク
情報更新日:2026/04/11 次回更新予定日:2026/04/23
価 格5,180万円
所在地埼玉県草加市松原3丁目[周辺地図]
交 通東武伊勢崎線「獨協大学前」駅徒歩10分





2階住戸の最大の利便性は、階段でもサッと外に出られる「機動力」です。
目の前の公園へ、まるでお気に入りのテラスへ出るかのような気軽さでアクセスできるのが魅力。
近隣には商業施設(TOBU icourt/トーブ イコート等)が充実し、駅徒歩10分と通勤通学の利便性に優れた立地です。
目の前の公園へ、まるでお気に入りのテラスへ出るかのような気軽さでアクセスできるのが魅力。
近隣には商業施設(TOBU icourt/トーブ イコート等)が充実し、駅徒歩10分と通勤通学の利便性に優れた立地です。
担当スタッフより

- 佐藤 順子
- 2階住戸の最大の利便性は、階段でもサッと外に出られる「機動力」です。
目の前の公園へ、まるでお気に入りのテラスへ出るかのような気軽さでアクセスできるのが魅力。
近隣には商業施設(TOBU icourt/トーブ イコート等)が充実し、駅徒歩10分と通勤通学の利便性に優れた立地です。
物件詳細情報
物件No.31023468615
| 所在地 | 埼玉県草加市松原3丁目 | ||
|---|---|---|---|
| 交通 | 東武伊勢崎線「獨協大学前」駅徒歩10分 東武伊勢崎線「新田」駅徒歩21分 東武伊勢崎線「草加」駅徒歩31分 |
||
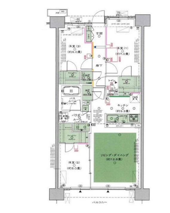
| 間取 | 3LDK (LDK15.9帖、洋室7帖、洋室5帖、洋室5帖) | ||
| 専有面積 | 75.3m² (壁芯) | ||
| バルコニー面積 | 12.2m² | ||
| 販売戸数 | 1戸 | 総戸数 | 全474戸 |
| 構造・規模 | 鉄筋コンクリート造 10階建て 2階部分 |
築年・入居 | 2020年12月築 |
| 施工会社 | 株式会社長谷工コーポレーション | 現況 | 空室 |
| 引渡時期 | 即引渡可 | 権利種類 | 所有権 |
| 管理費 | 11,685円/月 | 修繕積立金 | 5,550円/月 |
| 管理形態 | 日勤 全部委託 | 駐車場 | 敷地内に空なし 料金:6,500 ~ 11,000円/月 |
| ペット | 可 | 小学校区 | 草加市立松原小学校(400m) |
| 中学校区 | 草加市立栄中学校(600m) | 取引態様 | 媒介 |
| 設備 | 都市ガス | ||
こだわり項目
LDK15帖以上南向き全居室収納複層ガラス床暖房浄水器ガスコンロシステムキッチン3口以上コンロ温水洗浄便座浴室乾燥機浴室暖房追焚機能浴室1坪以上室内洗濯機置き場ウォークインクローゼットTVモニタ付インターホンオートロック24時間宅配ボックスエレベーター駐輪場バイク置場全居室フローリング24時間ゴミ出し可BSCSCATV24時間換気システム小学校800m以内保育園・幼稚園800m以内スーパー400m以内公園800m以内陽当り良好
- ※価格は物件の代金総額を表示しており、消費税が課税される場合は税込み価格です。(1,000円未満は切り上げ。)
税率は引き渡し時期により異なりますので、各物件の詳細につきましてはお問い合わせください。 - ※敷地権利が借地権のものは価格に権利金を含みます。
- ※制作中に内容が変更される場合もありますので、あらかじめご了承ください。
- ※購入の前には物件内容や契約条件についてご自身で十分な確認をしていただくようにお願いいたします。
- ※完成予想図はいずれも外構、植栽、外観等実際のものとは多少異なることがあります。
- ※CG合成の画像の場合、実際とは多少異なる場合があります。
周辺地図
周辺施設一覧
- ショッピングセンター
- スーパー
- コンビニ
- ドラッグストア
- ホームセンター
- 飲食店
- その他店舗
- 商店街
- 大学
- 専門学校
- 高校・高専
- 中学校
- 小学校
- 保育園
- 幼稚園
- 公民館・児童館
- 病院
- 郵便局
- 役所
- 図書館
- 金融機関
- 警察・消防
- 趣味・娯楽施設
- 公園・運動施設
- 周辺の街並み
- 駅
- その他
お問い合せ先
- 株式会社エステート白馬 越谷店
- お電話でのお問い合わせは
0120-315-586「ホームページを見た」とお問い合わせください - 埼玉県越谷市大字袋山1361-16 1F
- 営業時間:9:00~18:00
- 定休日:年中無休
- 免許番号:国土交通大臣免許(6)第5817号
- HOME
- 中古マンションをエリアから探す
- 草加市
- 松原
- ソライエシティ ザ・パーク










