- HOME
- 一戸建てをエリアから探す
- 豊島区
- 千早
- 豊島区千早4丁目 新築戸建
新築一戸建て

豊島区千早4丁目 新築戸建
情報更新日:2026/04/10 次回更新予定日:2026/04/24
価 格1億480万円(税込)
所在地東京都豊島区千早4丁目[周辺地図]
交 通東京メトロ有楽町線「千川」駅徒歩8分



太陽光発電搭載の東京ゼロエミ住宅、断熱等級6取得、ZEH水準の省エネ住宅。東南向きで陽当たりの良いレイアウト、食洗器や浴室乾燥機など設備も充実してます。
担当スタッフより

- 古川雄弥
- 公道に面した整形地、北東側も通路に面した角地のようなロケーション。周辺は生活施設の整った住環境です。
物件詳細情報
物件No.31023501654
| 所在地 | 東京都豊島区千早4丁目 | ||
|---|---|---|---|
| 交通 | 東京メトロ有楽町線「千川」駅徒歩8分 西武池袋線「東長崎」駅徒歩13分 都営大江戸線「新江古田」駅徒歩19分 |
||
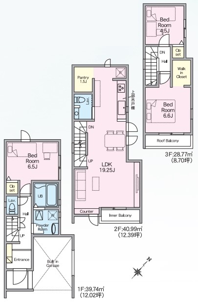
| 間取 | 2SLDK (LDK19.25帖、洋室6.6帖、洋室6.5帖、洋室4.5帖) | ||
| 土地面積 | 69.22m² 実測 (セットバック0.21m²) | ||
| 建物面積 | 109.5m² 実測 | ||
| 販売戸数 | 1戸 | 総戸数 | 全1戸 |
| 構造・規模 | 木造 3階建て | 築年・入居 | 2026年4月上旬 |
| バルコニー | 南東向き | 建物現況 | 建築中 |
| 建築確認番号 | 第25UDI1W建07406号 | 駐車スペース | 1台(カーポート) |
| 引渡時期 | 相談 | 国土法届出 | 不要 |
| 地目 | 宅地 | 用途地域 | 第一種中高層住居専用地域 |
| 建ぺい率 | 70% | 容積率 | 160% |
| 都市計画 | 市街化区域 | 権利種類 | 所有権 |
| 接道 | 南東側4M公道に6.2M接道 | 小学校区 | 豊島区立さくら小学校(500m) |
| 中学校区 | 豊島区立明豊中学校(190m) | 取引態様 | 媒介 |
| 設備 | 公営水道、本下水、都市ガス | ||
| 省エネ性能表示 | 再エネ設備:あり エネルギー消費性能:★★★★ 断熱性能:6段階 目安光熱費:約16.6万円/年 |
||
こだわり項目
整形地閑静な住宅地地盤調査済LDK15帖以上床下収納複層ガラス食器洗浄機浄水器システムキッチン3口以上コンロトイレ2ヶ所温水洗浄便座シャワー付洗面台浴室乾燥機浴室に窓オートバス全居室フローリングウォークインクローゼットバリアフリー仕様TVモニタ付インターホン24時間換気システム小学校800m以内スーパー400m以内コンビニ400m以内
- ※価格は物件の代金総額を表示しており、消費税が課税される場合は税込み価格です。(1,000円未満は切り上げ。)
税率は引き渡し時期により異なりますので、各物件の詳細につきましてはお問い合わせください。 - ※敷地権利が借地権のものは価格に権利金を含みます。
- ※制作中に内容が変更される場合もありますので、あらかじめご了承ください。
- ※購入の前には物件内容や契約条件についてご自身で十分な確認をしていただくようにお願いいたします。
- ※完成予想図はいずれも外構、植栽、外観等実際のものとは多少異なることがあります。
- ※CG合成の画像の場合、実際とは多少異なる場合があります。
周辺地図
周辺施設一覧
- ショッピングセンター
- スーパー
- コンビニ
- ドラッグストア
- ホームセンター
- 飲食店
- その他店舗
- 商店街
- 大学
- 専門学校
- 高校・高専
- 中学校
- 小学校
- 保育園
- 幼稚園
- 公民館・児童館
- 病院
- 郵便局
- 役所
- 図書館
- 金融機関
- 警察・消防
- 趣味・娯楽施設
- 公園・運動施設
- 周辺の街並み
- 駅
- その他
お問い合せ先
- 株式会社エステート白馬 中野店
- お電話でのお問い合わせは
0120-512-325「ホームページを見た」とお問い合わせください - 東京都中野区新井2-1-19 パックマートビル4F
- 営業時間:9:30~19:00
- 定休日:年中無休
- 免許番号:国土交通大臣免許(6)第5817号
- HOME
- 一戸建てをエリアから探す
- 豊島区
- 千早
- 豊島区千早4丁目 新築戸建







