- HOME
- 一戸建てをエリアから探す
- 志木市
- 中宗岡
- 志木市中宗岡20期全1棟 新築戸建
志木市中宗岡20期全1棟 新築戸建
情報更新日:2026/05/25 次回更新予定日:2026/06/08
価 格2,999万円(税込)
所在地埼玉県志木市中宗岡2丁目[周辺地図]
交 通東武東上線「志木」駅バス19分 停歩4分






・家族の顔が見えるリビングイン階段
・玄関がスッキリ片付くシューズクロークあります
すべての画像
カースペースは1台駐車できます。車庫の出し入れのしやすさなど、実際に現地にてご確認ください。
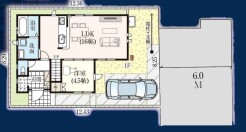
間取り図
区画図
扉を開放するとLDKと洋室を一体利用できる空間!扉を閉めると独立した空間としても活用できます。
家族が一番集まる場所だから広々としつつも素敵な空間であって欲しい。皆がくつろぐリビングからキッチンまでが一つに繋がる空間。
家族が一番集まる場所だから広々としつつも素敵な空間であって欲しい。皆がくつろぐリビングからキッチンまでが一つに繋がる空間。
家族や友人、両親、親戚とこれから沢山の時間を紡ぐのだろう。そこを彩るのは窓から見える青い空、心地よい緑。そんなイメージが膨らむリビングスペース。
2面採光を確保した明るい室内は、爽やかな風を感じる居心地の良い空間です。
2面採光を確保した明るい室内は、爽やかな風を感じる居心地の良い空間です。
家族の集うリビングには色々な方向から光が差し込む設計に。家族のコミュニケーションが弾むスポットだから明るい雰囲気であってほしい。
家族が一番集まる場所だから広々としつつも素敵な空間であって欲しい。皆がくつろぐリビングからキッチンまでが一つに繋がる空間。
どんな家具にでも相性が良い清潔感ある白色調のクロスを採用。主張しすぎない配色、耐久性にも優れた床材は日々のメンテナンスも楽に、快適に過ごして頂けるよう考えられています。
リビングにいる家族の顔が見渡せるカウンターキッチン。お料理もより一層おいしく、楽しく。食器棚を背面に設置しても十分な広さを確保しています。
家族団欒のリビング。陽光差し込む食卓には家族の会話とスマイルが溢れます。いつまでもここで食卓を囲みたくなる、そう感じさせてくれるスペース。
リビングにいる家族の顔が見渡せるカウンターキッチン。お料理もより一層おいしく、楽しく。食器棚を背面に設置しても十分な広さを確保しています。
夕食の時間。家族、友人、両親、親戚との会話がより料理を美味しくしてくれる。あっという間に時間が過ぎてしまう居心地の良さは、普段はほっとする空間としてここにあります。
花粉や雨の日、寒い冬の時期に嬉しい浴室乾燥機。換気機能で入浴時に湿気を換気しカビの防止にもなります。
使い勝手の良い洗面台、窓があることで換気もしやすく清潔感のある空間を保てます。
お出かけ前の身だしなみに一歩差がつく三面鏡。ミラー裏にはたっぷり収納もございます。
1.2階にそれぞれトレイがございます。朝の混雑時に分散して利用できるほか、ゲスト用としても使い分けることもできます。
約9.5帖の大型洋室
約5.25帖洋室
約9.5帖の大型洋室
約.255帖の洋室
約.255帖の洋室
どんな家具にでも相性が良い清潔感ある白色調のクロスを採用。主張しすぎない配色、耐久性にも優れた床材は日々のメンテナンスも楽に、快適に過ごして頂けるよう考えられています。
衣類の整理整頓に嬉しいクローゼット付きのお部屋。お子様のお部屋としても便利です。
ウォークインクローゼット
陽ざしが差込む明るいバルコニー。奥行きのあるバルコニーはお洗濯時に助かります。
明るく開放的な玄関、靴の脱ぎ履きもしやすく、収納も豊富でご家族皆様の靴をスッキリ収納できます。
気持ちよくご家族やゲストを送迎できるスタイリッシュでスッキリとした玄関です。
お客様をお迎えする玄関、お家の出入りもスムーズに行えます。
カースペースは1台駐車できます。車庫の出し入れのしやすさなど、実際に現地にてご確認ください。
当日ご案内可能です!物件だけでなく、周辺の環境や他にご希望の物件もまとめてご案内可能です。
戸建てが立ち並ぶ静かな住宅街。四季折々の移り変わりを感じながら自然と楽しみ、暮らす、そんな毎日を日々の中で感じられる住環境
省エネ性能ラベル
モニタ付きインターフォン
録画機能もあり、どのような人が何時に来訪されたのかが分かります。防犯上はもちろん、お届け物などの把握にも便利です。
浴室乾燥スイッチ
花粉や雨の日、寒い冬の時期に嬉しい浴室乾燥機。換気機能で入浴時に湿気を換気しカビの防止にもなります。
給湯スイッチ
給湯器の操作パネル
約6.0m私道 10m
担当スタッフより

- 大野康博
- 保育園や幼稚園や公園が600m以内と子育てしやすい住環境、ス―パーやコンビニやドラッグストアが800m以内にあり買い物便利です、お気軽にお問い合わせ下さい、
物件詳細情報
物件No.31023525480
| 所在地 | 埼玉県志木市中宗岡2丁目 | ||
|---|---|---|---|
| 交通 | 東武東上線「志木」駅バス19分 バス停「五反田」停歩4分 東武東上線「志木」駅徒歩40分 東武東上線「柳瀬川」駅徒歩46分 |
||
| 間取 | 3SLDK | ||
| 土地面積 | 102.58m² 公簿 (私道181m²別に有、私道持分比率:2878/36200) | ||
| 建物面積 | 97.3m² 実測 | ||
| 販売戸数 | 1戸 | 総戸数 | 全1戸 |
| 構造・規模 | 木造 2階建て | 築年・入居 | 2026年1月 |
| 建物現況 | 完成済 | 建築確認番号 | 第HPA-25-09619-1号 |
| 駐車スペース | 1台 | 引渡時期 | 即引渡可 |
| 国土法届出 | 不要 | 地目 | 宅地 |
| 用途地域 | 第一種中高層住居専用地域 | 建ぺい率 | 60% |
| 容積率 | 200% | 都市計画 | 市街化区域 |
| 権利種類 | 所有権 | 接道 | 東側6M公道に接道 |
| 小学校区 | 宗岡第二小学校(1360m) | 中学校区 | 宗岡中学校(1440m) |
| 取引態様 | 媒介 | ||
| 設備 | 公営水道、本下水、都市ガス | ||
| 省エネ性能表示 | エネルギー消費性能:★★★ 断熱性能:5段階 |
||
| 備考・制限等 | 別途私道持分28平米の内1766/5600あり、法22条区域、 | ||
こだわり項目
- ※価格は物件の代金総額を表示しており、消費税が課税される場合は税込み価格です。(1,000円未満は切り上げ。)
税率は引き渡し時期により異なりますので、各物件の詳細につきましてはお問い合わせください。 - ※敷地権利が借地権のものは価格に権利金を含みます。
- ※制作中に内容が変更される場合もありますので、あらかじめご了承ください。
- ※購入の前には物件内容や契約条件についてご自身で十分な確認をしていただくようにお願いいたします。
- ※完成予想図はいずれも外構、植栽、外観等実際のものとは多少異なることがあります。
- ※CG合成の画像の場合、実際とは多少異なる場合があります。
周辺地図
周辺施設一覧
- ショッピングセンター
- スーパー
- コンビニ
- ドラッグストア
- ホームセンター
- 飲食店
- その他店舗
- 商店街
- 大学
- 専門学校
- 高校・高専
- 中学校
- 小学校
- 保育園
- 幼稚園
- 公民館・児童館
- 病院
- 郵便局
- 役所
- 図書館
- 金融機関
- 警察・消防
- 趣味・娯楽施設
- 公園・運動施設
- 周辺の街並み
- 駅
- その他
お問い合せ先
- 株式会社エステート白馬 所沢店
- お電話でのお問い合わせは
0120-417-898「ホームページを見た」とお問い合わせください - 埼玉県所沢市東住吉12-21 白馬ビルディング
- 営業時間:9:00~18:30
- 定休日:年中無休
- 免許番号:国土交通大臣免許(6)第5817号
- HOME
- 一戸建てをエリアから探す
- 志木市
- 中宗岡
- 志木市中宗岡20期全1棟 新築戸建























