- HOME
- 一戸建てをエリアから探す
- さいたま市見沼区
- 大字大谷
- さいたま市見沼区大谷 1号棟 全4
新築一戸建て
さいたま市見沼区大谷 1号棟 全4
情報更新日:2026/04/14 次回更新予定日:2026/04/28
価 格4,598万円(税込)
所在地埼玉県さいたま市見沼区大字大谷[周辺地図]
交 通埼京線「大宮」駅バス29分 停歩3分


<エステート白馬が選ばれる5つのポイント>
1.提携FPへの無料個別相談サービス
社外の中立的なファイナンシャルプランナーと無料相談できます。
ローン返済だけでなく、教育・老後の資金等も含めてシミュレーションをご提案できます。
2.物件情報が豊富
さいたま市を中心にたくさんの情報をご用意しております。
インターネット広告前の未公開物件も多数取り揃えております。
3.HAKUBAグループでリフォーム、注文建築
一級建築士をはじめとした専門スタッフがおりますのでご見学と合わせて、リフォームや注文建築についてご相談頂けます。
4.年中無休(年末年始除く)で営業しております
営業時間 9:30~19:00 この時間はお電話でのお問合わせがスムーズです
5.お子様連れでおこしください
キッズスペース、チャイルドシートをご用意しております。
1.提携FPへの無料個別相談サービス
社外の中立的なファイナンシャルプランナーと無料相談できます。
ローン返済だけでなく、教育・老後の資金等も含めてシミュレーションをご提案できます。
2.物件情報が豊富
さいたま市を中心にたくさんの情報をご用意しております。
インターネット広告前の未公開物件も多数取り揃えております。
3.HAKUBAグループでリフォーム、注文建築
一級建築士をはじめとした専門スタッフがおりますのでご見学と合わせて、リフォームや注文建築についてご相談頂けます。
4.年中無休(年末年始除く)で営業しております
営業時間 9:30~19:00 この時間はお電話でのお問合わせがスムーズです
5.お子様連れでおこしください
キッズスペース、チャイルドシートをご用意しております。
担当スタッフより

- 吉岡進之輔
- ご見学にあわせて、無料の外部FP相談をご利用頂けます。マイホーム購入だけでなく、老後の資金計画・お子様の教育資金等のライフシュミレーションを考慮した上で、無理のない返済計画をご提案させていただきます。
物件詳細情報
物件No.31023549919
| 所在地 | 埼玉県さいたま市見沼区大字大谷 | ||
|---|---|---|---|
| 交通 | 埼京線「大宮」駅バス29分 バス停「向大谷」停歩3分 京浜東北・根岸線「北浦和」駅バス28分 バス停「向大谷」停歩3分 東武野田線「岩槻」駅バス29分 バス停「向大谷」停歩3分 |
||
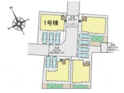
| 間取 | 4LDK (LDK17帖、和室5.25帖、洋室7.87帖、洋室6.75帖、洋室5.25帖) | ||
| 土地面積 | 152.02m² 実測 (私道128m²別に有、私道持分比率:1/4) | ||
| 建物面積 | 103.71m² 実測 | ||
| 販売戸数 | 1戸 | 総戸数 | 全4戸 |
| 構造・規模 | 木造 2階建て | 築年・入居 | 2026年5月上旬 |
| バルコニー | 南西向き | 建物現況 | 建築中 |
| 建築確認番号 | 第25UDI1W建11946号 | 駐車スペース | 3台(カースペース:並列) |
| 引渡時期 | 期日指定有(2026年6月上旬) | 国土法届出 | 不要 |
| 地目 | 宅地 | 用途地域 | 第一種低層住居専用地域 |
| 建ぺい率 | 50% | 容積率 | 100% |
| 都市計画 | 市街化区域 | 権利種類 | 所有権 |
| 接道 | 南東側5M私道に接道 南西側4.3M私道に接道 |
小学校区 | さいたま市立大谷小学校(740m) |
| 中学校区 | さいたま市立大谷中学校(1100m) | 取引態様 | 媒介 |
| 設備 | 公営水道、本下水、都市ガス | ||
| 備考・制限等 | ※私道持分あり(128平米各4分の1、118平米各48分の3) ※最低敷地135平米 ※受益者負担金が発生します(810円/平米) |
||
こだわり項目
閑静な住宅地LDK15帖以上耐震構造制震構造長期優良住宅床下収納全居室収納吹抜け設計住宅性能評価付建設住宅性能評価付(新築時)食器洗浄機システムキッチンカウンターキッチン3口以上コンロトイレ2ヶ所温水洗浄便座浴室乾燥機浴室1坪以上浴室に窓ウォークインクローゼットバリアフリー仕様TVモニタ付インターホン24時間換気システム小学校800m以内コンビニ400m以内
- ※価格は物件の代金総額を表示しており、消費税が課税される場合は税込み価格です。(1,000円未満は切り上げ。)
税率は引き渡し時期により異なりますので、各物件の詳細につきましてはお問い合わせください。 - ※敷地権利が借地権のものは価格に権利金を含みます。
- ※制作中に内容が変更される場合もありますので、あらかじめご了承ください。
- ※購入の前には物件内容や契約条件についてご自身で十分な確認をしていただくようにお願いいたします。
- ※完成予想図はいずれも外構、植栽、外観等実際のものとは多少異なることがあります。
- ※CG合成の画像の場合、実際とは多少異なる場合があります。
周辺地図
周辺施設一覧
- ショッピングセンター
- スーパー
- コンビニ
- ドラッグストア
- ホームセンター
- 飲食店
- その他店舗
- 商店街
- 大学
- 専門学校
- 高校・高専
- 中学校
- 小学校
- 保育園
- 幼稚園
- 公民館・児童館
- 病院
- 郵便局
- 役所
- 図書館
- 金融機関
- 警察・消防
- 趣味・娯楽施設
- 公園・運動施設
- 周辺の街並み
- 駅
- その他
お問い合せ先
- 株式会社エステート白馬 大宮サクラスクエアモール店
- お電話でのお問い合わせは
0120-911-898「ホームページを見た」とお問い合わせください - 埼玉県さいたま市大宮区桜木町2-902 大宮サクラスクエアモール
- 営業時間:9:30~18:30
- 定休日:年中無休
- 免許番号:国土交通大臣免許(6)第5817号
- HOME
- 一戸建てをエリアから探す
- さいたま市見沼区
- 大字大谷
- さいたま市見沼区大谷 1号棟 全4










