- HOME
- 中古マンションをエリアから探す
- 中野区
- 本町
- シティハイムコスモ
中古マンション

シティハイムコスモ
情報更新日:2026/04/23 次回更新予定日:2026/05/06
価 格5,980万円(税込)
所在地東京都中野区本町1丁目[周辺地図]
交 通東京メトロ丸ノ内線「中野坂上」駅徒歩2分





角部屋のフルリフォーム住戸、大規模修繕・耐震補強工事実施済み、耐震適合証明書あり。駅歩3分、通勤通学も便利なロケーション。
担当スタッフより

- 村山栞理
- 南向きバルコニーで陽当たり風通しの良いお部屋。大規模修繕実施済み、管理体制も良好です。
物件詳細情報
物件No.31023886616
| 所在地 | 東京都中野区本町1丁目 | ||
|---|---|---|---|
| 交通 | 東京メトロ丸ノ内線「中野坂上」駅徒歩2分 都営大江戸線「中野坂上」駅徒歩3分 都営大江戸線「西新宿五丁目」駅徒歩12分 |
||
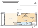
| 間取 | 2SLDK (LDK15.3帖、洋室5.6帖、洋室5.0帖、S1.5帖) | ||
| 専有面積 | 61.01m² (壁芯) | ||
| バルコニー面積 | 6.89m² 南向き | ||
| 販売戸数 | 1戸 | 総戸数 | 全33戸 |
| 構造・規模 | 鉄骨鉄筋コンクリート造 11階建て 6階部分 |
築年・入居 | 1974年11月築 |
| 現況 | 空室 | 引渡時期 | 即引渡可 |
| 権利種類 | 所有権 借地料2063円/月 ※一部地上権 |
管理費 | 19,420円/月 |
| 修繕積立金 | 15,378円/月 | 管理形態 | 日勤 全部委託 |
| 管理会社 | 日鉄興和不動産コミュニティ株式会社 | 駐車場 | あり 料金:25,000円/月 |
| 駐輪場料金 | 500円/月 | バイク置場料金 | 1,500円/月 |
| ペット | 不可 | 小学校区 | 中野区立中野第一小学校(840m) |
| 中学校区 | 中野区立第二中学校(1450m) | 取引態様 | 媒介 |
| リフォーム |
|
||
| 設備 | 公営水道、本下水、都市ガス | ||
こだわり項目
LDK15帖以上南向き角部屋リフォーム済み全居室収納2面以上バルコニー食器洗浄機浄水器ガスコンロシステムキッチン3口以上コンロ温水洗浄便座シャワー付洗面台浴室乾燥機追焚機能室内洗濯機置き場洗濯機置き場ウォークインクローゼットTVモニタ付インターホンエレベーター駐輪場バイク置場保育園・幼稚園800m以内スーパー400m以内コンビニ400m以内公園800m以内通風良好
- ※価格は物件の代金総額を表示しており、消費税が課税される場合は税込み価格です。(1,000円未満は切り上げ。)
税率は引き渡し時期により異なりますので、各物件の詳細につきましてはお問い合わせください。 - ※敷地権利が借地権のものは価格に権利金を含みます。
- ※制作中に内容が変更される場合もありますので、あらかじめご了承ください。
- ※購入の前には物件内容や契約条件についてご自身で十分な確認をしていただくようにお願いいたします。
- ※完成予想図はいずれも外構、植栽、外観等実際のものとは多少異なることがあります。
- ※CG合成の画像の場合、実際とは多少異なる場合があります。
周辺地図
周辺施設一覧
- ショッピングセンター
- スーパー
- コンビニ
- ドラッグストア
- ホームセンター
- 飲食店
- その他店舗
- 商店街
- 大学
- 専門学校
- 高校・高専
- 中学校
- 小学校
- 保育園
- 幼稚園
- 公民館・児童館
- 病院
- 郵便局
- 役所
- 図書館
- 金融機関
- 警察・消防
- 趣味・娯楽施設
- 公園・運動施設
- 周辺の街並み
- 駅
- その他
お問い合せ先
- 株式会社エステート白馬 中野店
- お電話でのお問い合わせは
0120-512-325「ホームページを見た」とお問い合わせください - 東京都中野区新井2-1-19 パックマートビル4F
- 営業時間:9:30~19:00
- 定休日:年中無休
- 免許番号:国土交通大臣免許(6)第5817号










