長谷川 佳行のプロフィール
次長長谷川 佳行ハセガワ ヨシユキ
| 所属 | 住宅流通部国分寺店 次長 |
|---|---|
| 経験年数 | 15年選手 |
| 得意エリア | 東京都下(なかでも小金井・国分寺・府中は自信あり)・23区(城東・城南・城西エリア)・神奈川県(川崎市・横浜市一部)・埼玉県南 |
| 保有資格 | 宅地建物取引士 登録番号(東京)第263201号 住宅ローンアドバイザー 登録番号ZL-131218129 マンションリノベーションアドバザー MR360025号 損保一般試験(基礎/火災単位) 救命技能認定証(T1901123454) |
| 趣味・特技 | 趣味:スポーツ観戦、栄養管理、筋トレ、第二子と遊ぶ(R6の6月生まれ)、ご希望に応じたお家探し、旅行(国内外問わず!!国内は車移動がメイン) 特技:掃除、洗濯物をたたむ、ご条件に沿ったお家の提案 |
| 表彰歴 | 平成26年度優秀社員賞獲得 平成27年度優秀社員賞獲得 平成29年度優秀社員賞獲得 平成30年度優秀社員賞獲得 |
『情報社会を生き抜く、 お客様に寄りそうエージェントとして、 全てのご要望にお応え出来るよう・・・』 ネットでも不動産情報が多く閲覧できるようになり、色々な情報が溢れる現代社会・・・ しかしながら、実際には情報を掲載できる物件は限られ、 大手の情報サイトの物件に限っては莫大な広告費用を掛かるため費用対効果のある物件しか掲載できません。 ですから本来の流通されている不動産市場とは異なり、 ネットでは広告費用の掛かった情報がメインになっている事をご留意ください。 本来は価格の下がった物件や人気エリアの物件等は広告を掛けなくても売れてしまう事が多いため、 情報を取り扱うエージェントとして情報をいち早く取り入れて、 正確にお客様にご提供する事が私の役目です。 周辺コミュニティや学校情報など、 予め気になる事もお気軽にお申し付け下さい。 また、 住宅ローン等についても日々新しい審査基準なども更新されております。 気になる長期のお支払シミュレーションなども迅速に対応をお取りしていますし、 社外のFPを招いた相談会も実施し、 事前の不安も解消頂けるよう社をあげて取り組んております。 チーム一丸、 より良いお家に出会い新生活のスタートラインにお立ち頂けるよう、 誠心誠意全力で走りぬきます!! ※写真は息子2人と近所のホームセンタ―へお買物にでかけた一コマ。 気が付けば長男の背丈も同じくらいに・・・ ご家族構成・お子様のご成長に併せたお家探しやリフォーム・注文住宅のプラン造り、全力でご提案させて頂きます(^^)
販売価格/4,698万円

- 不動産をとり扱うエージェントとして、不動産の物件紹介はもちろんのこと、ご購入に関したローンや税金のご説明など、どこよりも細かくどこよりもお客様ファーストに重きを考え、よりより不動産のご購入をお手伝い致します。 どんな些細な事でも気になる事はまずは確認、お気軽にお電話、お問合せお待ちしております。
| 所在地 | 稲城市大丸 |
|---|---|
| 交通 | 京王相模原線「稲城」駅徒歩9分 |
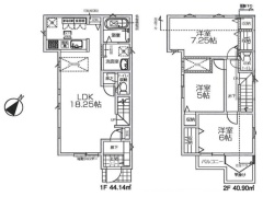
| 専有面積 | 71.82m² (壁芯) |
| 間取 | 3LDK |
- 中央線『国分寺』×京王線『府中』。 歴史が色濃く残る街並みに季節四季折々の催し物も多い府中に立地。 都心へのアクセスは2路線を利用できる利便が整う住環境。 周辺には公園や公民館が多くお子様と一緒に遊べる環境が整う住環境の天神町アドレス。 2階住戸とは感じないベランダ側の抜け感や陽当りは、まずは現地のご確認を。 ご入居にあたるリノベーション、弊社はリノベセクションを保有しておりますので、ご見学時にご希望をご確認頂ければ即日概算見積りのご提示が可能です。 当日のご見学はもちろん、ご希望日時のご指定のお問合せなどお気軽にお申し付け下さい。
- ヒルズ府中天神町ヴェールアリーナ【中古マンション】
- 所在地/府中市天神町1丁目
- 交通/京王線「府中」駅徒歩14分
- 専有面積/79.26m² (壁芯) 間取/3LDK
- 販売価格/4,980万円






