吉岡輝久のプロフィール
店長吉岡輝久ヨシオカテルヒサ
| 所属 | 住宅流通部、上尾駅前店、店長 |
|---|---|
| 経験年数 | 30年 |
| 得意エリア | 上尾市、さいたま市、桶川市など幅広く! |
| 保有資格 | 宅地建物取引士(東京)第166663号、不動産賃貸経営管理士など |
| 趣味 | 釣り、美味しいお店探し |
| 出身地 | 千葉県 |
こんにちは店長の吉岡輝久と申します。 宜しくお願い致します。 私の思う不動産とは人と人を結ぶいわゆる結婚にそっくりだと思います。 人も同じ人間がいないのと一緒で不動産も同じ物件は存在しません。 人生において不動産の取引を何度もされる一般の方が少ないように結婚もそう何度もしない(笑)事ですよね。 ですから契約(結婚)する事は慎重かつ迅速に行わなければなりません。 そうはいっても相手(売主さん)があることですからこちらの思うようにいかない事も多々あります。 ご縁がないと欲しくても(結婚したくても)買えない事もあります。 ここで唯一の違いがあると思います。それは結婚は仲介(お手伝いや説得)する事はなかなか難しいですが不動産は我々がお手伝いやアドバイスをする事でご理解頂ける事があるという事です。 住めば都(みやこ)という言葉が古くからあるようにその不動産との出会いそれに関わる人との出会いを大切にしたい・・・そういった思いで仕事をさせていただいております。
販売価格/4,990万円

- 当店には宅地建物取引士やファイナンシャルプランナー、住宅ローンアドバイザーなど、専門資格を持つスタッフが多数在籍しております。お客様からの資料請求、お問い合わせをお待ちしております。
| 所在地 | さいたま市中央区下落合5丁目 |
|---|---|
| 交通 | 埼京線「与野本町」駅徒歩9分 |
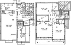
| 土地面積 | 66.93m² |
| 建物面積 | 89.11m² |
| 間取 | 2LDK |



