- HOME
- 土地をエリアから探す
- さいたま市中央区
- 大戸
- さいたま市中央区大戸3丁目
土地
さいたま市中央区大戸3丁目
情報更新日:2026/04/15 次回更新予定日:2026/04/27 取引条件有効期限:2026/04/27
所在地埼玉県さいたま市中央区大戸3丁目[周辺地図]
交 通埼京線「南与野」駅徒歩14分





<エステート白馬 上尾駅前店を選ぶ5つのポイント>
1.JR高崎線「上尾駅」から徒歩1分
駅前の「イトーヨーカドー上尾駅前店」内に立地。
2.無料駐車場完備のお店
立体駐車場は全480台収容可。駐車場完備してます。
3.大型キッズスペース
当店自慢のキッズスペースをぜひご覧ください。店内におむつ替えコーナーもご用意してます。
4.年中無休・365日営業でお手伝い
営業時間:10時~20時まで。スピードある対応が自慢のお店です。
5.提携FPへの無料個別相談サービス
社外の中立的なファイナンシャルプランナーと無料相談。
ローン返済について、老後や学費等も含めたシミュレーションをご提案できます。
1.JR高崎線「上尾駅」から徒歩1分
駅前の「イトーヨーカドー上尾駅前店」内に立地。
2.無料駐車場完備のお店
立体駐車場は全480台収容可。駐車場完備してます。
3.大型キッズスペース
当店自慢のキッズスペースをぜひご覧ください。店内におむつ替えコーナーもご用意してます。
4.年中無休・365日営業でお手伝い
営業時間:10時~20時まで。スピードある対応が自慢のお店です。
5.提携FPへの無料個別相談サービス
社外の中立的なファイナンシャルプランナーと無料相談。
ローン返済について、老後や学費等も含めたシミュレーションをご提案できます。
担当スタッフより

- 武田郷子
- 当店には宅地建物取引士やファイナンシャルプランナー、住宅ローンアドバイザーなど、専門資格を持つスタッフが多数在籍しております。お客様からの資料請求、お問い合わせをお待ちしております。
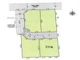
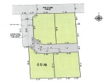
各棟情報
物件詳細情報
物件No.20000444618
| 所在地 | 埼玉県さいたま市中央区大戸3丁目 | ||
|---|---|---|---|
| 交通 | 埼京線「南与野」駅徒歩14分 京浜東北・根岸線「北浦和」駅徒歩17分 |
||
| 土地面積 | 100m² ~ 101m² 実測 (私道30m²~30m²別に有) | ||
| 販売区画数 | 3区画 | 総区画数 | 全4区画 |
| 用途地域 | 第一種低層住居専用地域 | 建ぺい率 | 60% |
| 容積率 | 100% | 都市計画 | 市街化区域 |
| 国土法届出 | 不要 | 建築条件 | 建築条件なし |
| 地目 | 雑種地 | 最適用途 | 住宅用地 |
| 現況 | 更地 | 引渡時期 | 相談 |
| 引渡条件 | 現況渡し | 権利種類 | 所有権 |
| 接道 | 北側4.05M公道に接道 西側4M私道に接道 |
小学校区 | さいたま市立与野南小学校(500m) |
| 中学校区 | さいたま市立与野南中学校(560m) | 取引態様 | 媒介 |
| 設備 | 公営水道、本下水、都市ガス 公共下水、低層住居専用地域、複数路線利用可 |
||
| その他制限事項 | 文化財保護法、景観法 | ||
| 備考・制限等 | 高さ制限(10m) 景観法 文化財保護法 位置指定道路部分通行掘削承認書取得済 協定部分持分:42平米×1/4有 | ||
こだわり項目
小学校800m以内保育園・幼稚園800m以内
- ※価格は物件の代金総額を表示しており、消費税が課税される場合は税込み価格です。(1,000円未満は切り上げ。)
税率は引き渡し時期により異なりますので、各物件の詳細につきましてはお問い合わせください。 - ※敷地権利が借地権のものは価格に権利金を含みます。
- ※制作中に内容が変更される場合もありますので、あらかじめご了承ください。
- ※購入の前には物件内容や契約条件についてご自身で十分な確認をしていただくようにお願いいたします。
- ※完成予想図はいずれも外構、植栽、外観等実際のものとは多少異なることがあります。
- ※CG合成の画像の場合、実際とは多少異なる場合があります。
周辺地図
周辺施設一覧
- ショッピングセンター
- スーパー
- コンビニ
- ドラッグストア
- ホームセンター
- 飲食店
- その他店舗
- 商店街
- 大学
- 専門学校
- 高校・高専
- 中学校
- 小学校
- 保育園
- 幼稚園
- 公民館・児童館
- 病院
- 郵便局
- 役所
- 図書館
- 金融機関
- 警察・消防
- 趣味・娯楽施設
- 公園・運動施設
- 周辺の街並み
- 駅
- その他
お問い合せ先
- 株式会社エステート白馬 上尾駅前店
- お電話でのお問い合わせは
0120-307-898「ホームページを見た」とお問い合わせください - 埼玉県上尾市谷津2-1-1 ショーサンプラザ(イトーヨーカ堂)5F
- 営業時間:9:00~20:00
- 定休日:年中無休
- 免許番号:国土交通大臣免許(6)第5817号






