- HOME
- 土地をエリアから探す
- さいたま市中央区
- 大戸
- さいたま市中央区大戸3丁目 1号地 全4
土地
さいたま市中央区大戸3丁目 1号地 全4
情報更新日:2026/04/13 次回更新予定日:2026/04/27
価 格5,090万円
所在地埼玉県さいたま市中央区大戸3丁目[周辺地図]
交 通埼京線「南与野」駅徒歩13分





<エステート白馬が選ばれる5つのポイント>
1.提携FPへの無料個別相談サービス
社外の中立的なファイナンシャルプランナーと無料相談できます。
ローン返済だけでなく、教育・老後の資金等も含めてシミュレーションをご提案できます。
2.物件情報が豊富
さいたま市を中心にたくさんの情報をご用意しております。
インターネット広告前の未公開物件も多数取り揃えております。
3.HAKUBAグループでリフォーム、注文建築
一級建築士をはじめとした専門スタッフがおりますのでご見学と合わせて、リフォームや注文建築についてご相談頂けます。
4.年中無休(年末年始除く)で営業しております
営業時間 9:30~19:00 この時間はお電話でのお問合わせがスムーズです
5.お子様連れでおこしください
キッズスペース、チャイルドシートをご用意しております。
1.提携FPへの無料個別相談サービス
社外の中立的なファイナンシャルプランナーと無料相談できます。
ローン返済だけでなく、教育・老後の資金等も含めてシミュレーションをご提案できます。
2.物件情報が豊富
さいたま市を中心にたくさんの情報をご用意しております。
インターネット広告前の未公開物件も多数取り揃えております。
3.HAKUBAグループでリフォーム、注文建築
一級建築士をはじめとした専門スタッフがおりますのでご見学と合わせて、リフォームや注文建築についてご相談頂けます。
4.年中無休(年末年始除く)で営業しております
営業時間 9:30~19:00 この時間はお電話でのお問合わせがスムーズです
5.お子様連れでおこしください
キッズスペース、チャイルドシートをご用意しております。
担当スタッフより

- 太田誠
- ご見学にあわせて、無料の外部FP相談をご利用頂けます。マイホーム購入だけでなく、老後の資金計画・お子様の教育資金等のライフシュミレーションを考慮した上で、無理のない返済計画をご提案させていただきます。
物件詳細情報
物件No.31023215438
| 所在地 | 埼玉県さいたま市中央区大戸3丁目 | ||
|---|---|---|---|
| 交通 | 埼京線「南与野」駅徒歩13分 京浜東北・根岸線「北浦和」駅徒歩17分 高崎線「浦和」駅徒歩29分 |
||
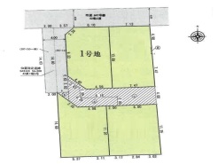
| 土地面積 | 101m² 公簿 (私道30m²別に有、私道持分比率:1/4) | ||
| 販売区画数 | 1区画 | 総区画数 | 全4区画 |
| 用途地域 | 第一種低層住居専用地域 | 建ぺい率 | 60% |
| 容積率 | 100% | 都市計画 | 市街化区域 |
| 国土法届出 | 不要 | 建築条件 | 建築条件なし |
| 地目 | 宅地 | 最適用途 | 住宅用地 |
| 現況 | 更地 | 引渡時期 | 相談 |
| 権利種類 | 所有権 | 接道 | 北側4M公道に6.1M接道 西側4M私道に9.33M接道 |
| 小学校区 | さいたま市立与野南小学校(470m) | 中学校区 | さいたま市立与野南中学校(430m) |
| 取引態様 | 媒介 | ||
| 設備 | 公営水道、本下水、都市ガス | ||
| その他制限事項 | 文化財保護法、景観法 | ||
| 備考・制限等 | ※協定面積42平米(持分1/4)あり ※位置指定道路の一部(30平米)持分1/4あり、他一部は土地所有者より通行掘削承諾書を取得済み ※高さ制限10メートル、景観法、文化財保護法 |
||
こだわり項目
小学校800m以内保育園・幼稚園800m以内コンビニ400m以内
- ※価格は物件の代金総額を表示しており、消費税が課税される場合は税込み価格です。(1,000円未満は切り上げ。)
税率は引き渡し時期により異なりますので、各物件の詳細につきましてはお問い合わせください。 - ※敷地権利が借地権のものは価格に権利金を含みます。
- ※制作中に内容が変更される場合もありますので、あらかじめご了承ください。
- ※購入の前には物件内容や契約条件についてご自身で十分な確認をしていただくようにお願いいたします。
- ※完成予想図はいずれも外構、植栽、外観等実際のものとは多少異なることがあります。
- ※CG合成の画像の場合、実際とは多少異なる場合があります。
周辺地図
周辺施設一覧
- ショッピングセンター
- スーパー
- コンビニ
- ドラッグストア
- ホームセンター
- 飲食店
- その他店舗
- 商店街
- 大学
- 専門学校
- 高校・高専
- 中学校
- 小学校
- 保育園
- 幼稚園
- 公民館・児童館
- 病院
- 郵便局
- 役所
- 図書館
- 金融機関
- 警察・消防
- 趣味・娯楽施設
- 公園・運動施設
- 周辺の街並み
- 駅
- その他
お問い合せ先
- 株式会社エステート白馬 大宮サクラスクエアモール店
- お電話でのお問い合わせは
0120-911-898「ホームページを見た」とお問い合わせください - 埼玉県さいたま市大宮区桜木町2-902 大宮サクラスクエアモール
- 営業時間:9:30~18:30
- 定休日:年中無休
- 免許番号:国土交通大臣免許(6)第5817号














