- HOME
- 一戸建てをエリアから探す
- 小平市
- 大沼町
- 小平市大沼町6丁目 新築戸建 3号棟
小平市大沼町6丁目 新築戸建 3号棟
情報更新日:2026/04/18 次回更新予定日:2026/04/24
価 格5,390万円(税込)
所在地東京都小平市大沼町6丁目[周辺地図]
交 通西武新宿線「花小金井」駅徒歩21分





HAKUBAグループでは、土地や住まいの売買から設計、建築、
医療、介護そして保険や金融、税金対策、資産形成まで
さまざまなスペシャリストが集い、連携してサービス提供をしております。
専門知識や経験をかけあわせることで、お客様ひとりひとりにあった健康的な暮らしをお届けし、
人生が「プラス」の方向に進んでいくお手伝いをさせて頂きます。
すべての画像
本画像はCGで作成しており、実際に現地に家具は置かれておりません。また、価格に家具は含まれておりません。
建物が完成しましたので室内のご見学予約スタート。当日のご見学予約も大歓迎です。お気軽にご連絡ください。他にもインターネットに掲載していない情報も沢山ありますので、比較で併せてご見学ができます。
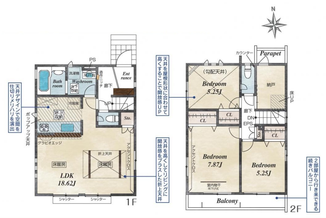
間取り
本画像はCGで作成しており、実際に現地に家具は置かれておりません。また、価格に家具は含まれておりません。
お料理をしながらリビングの家族やゲストとの会話が楽しめるカウンタータイプのキッチン。毎日のお料理を楽しく快適に。
一日の疲れを癒してくれるゆったりとしたバスルームです。
三面鏡に洗面台。 コンセントに照明機能、多機能性を備えた設備です。
窓からの眺望です。実際に現地で眺望もご確認ください。
本画像はCGで作成しており、実際に現地に家具は置かれておりません。また、価格に家具は含まれておりません。
この街を選ぶ理由や想像している生活のイメージを担当者と共有してもらえると嬉しいです。 今後の暮らしがどのようなものになるか、その想像が現実になるためのステップを一緒に考えましょう。
全体区画図
家族が一番集まる場所だから広々としつつも素敵な空間であって欲しい。みんながくつろぐリビングからキッチンまでが一つの空間のように繋がる間取り。
家族の集まるリビングは気持ちの良い自然光が差し込む団欒空間。室内のご見学予約も随時、受付中ですのでお気軽にお問合せください。
実際に室内をご見学頂くと生活のイメージが広がると思います。家具を置いたイメージや窓からの景色など。周辺で販売に出している物件も一緒にまとめてご見学頂き、比較する事もできます。お気軽に担当スタッフまでお申しつけください。
カウンターキッチンならではの開放的な見通し、全体が見渡せることでご家族の団欒スペースもより明るく笑顔が溢れる空間となります。
毎日の家事をサポートしてくれる食洗器も標準に装備。ちょっと嬉しい設備です
使いやすいタイプの洗面化粧台のあるランドリースペース
1Fトイレ
2Fトイレ
洋室はモダンなデザインと機能性を備え、快適な生活空間に。明るい窓から差し込む自然光が広々とした空間をさらに明るく開放的に感じさせます。
スマートなデザインと賢い収納が生活を快適にします。広々とした雰囲気を演出する工夫が施され、生活空間の魅力を引き出します。
実際に室内をご見学頂くと生活のイメージが広がると思います。家具を置いたイメージや窓からの景色など。周辺で販売に出している物件も一緒にまとめてご見学頂き、比較する事もできます。お気軽に担当スタッフまでお申しつけください。
周辺のエリアで他にも沢山売りに出ている物件があります。インターネット掲載前の情報などもありますのでお気軽にお問合せください。まとめてご見学できます。
各お部屋に収納が設置されています。
色々な用途に使えるフリースペースのある邸宅。仕事の書斎や趣味の空間や子供のワークスペース、季節物の収納など色々な用途に利用できそうな予感。
実際に室内をご見学頂くと生活のイメージが広がると思います。家具を置いたイメージや窓からの景色など。周辺で販売に出している物件も一緒にまとめてご見学頂き、比較する事もできます。お気軽に担当スタッフまでお申しつけください。
季節の変化や天気の良い日には、バルコニーでの時間が心地よく、気分をリフレッシュさせることができます。
建物が完成しましたので室内のご見学予約スタート。当日のご見学予約も大歓迎です。お気軽にご連絡ください。他にもインターネットに掲載していない情報も沢山ありますので、比較で併せてご見学ができます。
玄関は家の第一印象を左右する重要な場所。ほどよい広さとスタイリッシュな色遣いが印象的です。
周辺のエリアで他にも沢山売りに出ている物件があります。インターネット掲載前の情報などもありますのでお気軽にお問合せください。まとめてご見学できます。
現地のご見学予約もスタートしました。周辺で売りに出ている物件も沢山御座います。まとめてご見学ができますのでお気軽にお申しつけください。
安心して暮らすことのできる住宅街。 住宅地の道路は一般に交通量が少なく車などの騒音が少ないため、住民にとって静かな生活環境が提供されます。
担当スタッフより

- 原 毅
- 現地のご見学予約スタートしました。当日のご見学予約も大歓迎です。モデルハウスのご見学も可能です。他にもインターネットに掲載していない情報も沢山ありますので、まとめてご見学可能です。また、年中無休(年末年始を除く)で営業しております。火曜日水曜日も営業しておりますのでお気軽にお問合せください。
物件詳細情報
物件No.20000445246
| 所在地 | 東京都小平市大沼町6丁目 | ||
|---|---|---|---|
| 交通 | 西武新宿線「花小金井」駅徒歩21分 西武新宿線「小平」駅徒歩21分 西武拝島線「小平」駅徒歩21分 |
||
| 間取 | 3SLDK | ||
| 土地面積 | 114.76m² 実測 | ||
| 建物面積 | 91.5m² 実測 | ||
| 販売戸数 | 1戸 | 総戸数 | 全6戸 |
| 構造・規模 | 木造 2階建て | 築年・入居 | 2026年4月中旬 |
| バルコニー | 南向き | 建物現況 | 建築中 |
| 建築確認番号 | 第R07SHC122734号 | 駐車スペース | 2台可(カースペース) |
| 引渡時期 | 期日指定有(2026年5月下旬) | 国土法届出 | 不要 |
| 地目 | 畑 | 用途地域 | 第一種低層住居専用地域 |
| 建ぺい率 | 40% | 容積率 | 80% |
| 都市計画 | 市街化区域 | 権利種類 | 所有権 |
| 接道 | 北側6M公道に接道 | 取引態様 | 媒介 |
| 設備 | 公営水道、本下水、都市ガス | ||
| その他制限事項 | 景観法 | ||
| 備考・制限等 | 第一種高度地区、建築基準法22条指定区域 | ||
こだわり項目
- ※価格は物件の代金総額を表示しており、消費税が課税される場合は税込み価格です。(1,000円未満は切り上げ。)
税率は引き渡し時期により異なりますので、各物件の詳細につきましてはお問い合わせください。 - ※敷地権利が借地権のものは価格に権利金を含みます。
- ※制作中に内容が変更される場合もありますので、あらかじめご了承ください。
- ※購入の前には物件内容や契約条件についてご自身で十分な確認をしていただくようにお願いいたします。
- ※完成予想図はいずれも外構、植栽、外観等実際のものとは多少異なることがあります。
- ※CG合成の画像の場合、実際とは多少異なる場合があります。
周辺地図
周辺施設一覧
- ショッピングセンター
- スーパー
- コンビニ
- ドラッグストア
- ホームセンター
- 飲食店
- その他店舗
- 商店街
- 大学
- 専門学校
- 高校・高専
- 中学校
- 小学校
- 保育園
- 幼稚園
- 公民館・児童館
- 病院
- 郵便局
- 役所
- 図書館
- 金融機関
- 警察・消防
- 趣味・娯楽施設
- 公園・運動施設
- 周辺の街並み
- 駅
- その他
お問い合せ先
- 株式会社エステート白馬 国分寺店
- お電話でのお問い合わせは
0120-846-898「ホームページを見た」とお問い合わせください - 東京都国分寺市本町4-19-10 ビッググラッド国分寺1F
- 営業時間:9:30~18:30
- 定休日:年中無休
- 免許番号:国土交通大臣免許(6)第5817号
- HOME
- 一戸建てをエリアから探す
- 小平市
- 大沼町
- 小平市大沼町6丁目 新築戸建 3号棟







