- HOME
- 一戸建てをエリアから探す
- 越谷市
- 大字弥十郎
- 越谷市弥十郎 売戸建
中古住宅

越谷市弥十郎 売戸建
情報更新日:2026/04/16 次回更新予定日:2026/04/30
価 格3,280万円
所在地埼玉県越谷市大字弥十郎[周辺地図]
交 通東武伊勢崎線「大袋」駅徒歩25分





【おすすめポイント】
・南西・南東の角地で日当たり・通風良好
・積水ハイム施工の注文住宅で安心の品質
・全居室6帖以上のゆとりある間取り設計
・豊富な収納スペースで生活空間がすっきり
・2020年リフォーム済み(キッチン・トイレ交換、クロス・フローリング張替)
・3階建・延べ136.98㎡の広々空間
・駐車場・床下収納ありで機能性も◎
・南道路に面し明るいリビング
・眺望良好で開放感あり
・生活利便施設が徒歩圏内
「エステート白馬が選ばれる5つのポイント」
1.提携FPへの無料個別相談サービス
社外の中立的なファイナンシャルプランナーと無料相談できます。
ローン返済計画・教育・老後の資金等も含めてシミュレーションをご提案。
2.物件情報が豊富
越谷市を中心にたくさんの情報をご用意。
インターネット広告前の物件も多数取り揃えております。
3.リフォーム、注文建築
越谷店はショールームとなっており、リフォーム、注文建築部門の相談スペースです。
一級建築士をはじめとした専門スタッフがおりますのでご見学と合わせて、リフォームや注文建築についてご相談可。
4.年中無休(年末年始除く)で営業
営業時間 9:30~19:00 この時間はお電話でのお問合わせがスムーズです
5.お子様連れでおこしください
キッズスペース、授乳室、オムツ替えベッドをご用意しております。
・南西・南東の角地で日当たり・通風良好
・積水ハイム施工の注文住宅で安心の品質
・全居室6帖以上のゆとりある間取り設計
・豊富な収納スペースで生活空間がすっきり
・2020年リフォーム済み(キッチン・トイレ交換、クロス・フローリング張替)
・3階建・延べ136.98㎡の広々空間
・駐車場・床下収納ありで機能性も◎
・南道路に面し明るいリビング
・眺望良好で開放感あり
・生活利便施設が徒歩圏内
「エステート白馬が選ばれる5つのポイント」
1.提携FPへの無料個別相談サービス
社外の中立的なファイナンシャルプランナーと無料相談できます。
ローン返済計画・教育・老後の資金等も含めてシミュレーションをご提案。
2.物件情報が豊富
越谷市を中心にたくさんの情報をご用意。
インターネット広告前の物件も多数取り揃えております。
3.リフォーム、注文建築
越谷店はショールームとなっており、リフォーム、注文建築部門の相談スペースです。
一級建築士をはじめとした専門スタッフがおりますのでご見学と合わせて、リフォームや注文建築についてご相談可。
4.年中無休(年末年始除く)で営業
営業時間 9:30~19:00 この時間はお電話でのお問合わせがスムーズです
5.お子様連れでおこしください
キッズスペース、授乳室、オムツ替えベッドをご用意しております。
- すべて(12)
- 外観・パース(11)
- 内観(0)
- 間取・区画(1)
- その他(0)
- 動画
担当スタッフより

- 坂口 卓生
- 積水ハイム施工の注文住宅で、南西・南東角地で、開放感のある立地でございます。
幹線道路も近く、周辺にはスーパーや飲食店など充実しております。
前面道路は広く、駐車が苦手な方でもスムーズに駐車できます。また、前面道路は広いですが車どおりは少なく、小さお子様がいらっしゃるお客様でも安心してお過ごしいただけます。
室内は、リフォーム履歴もあり、写真では伝わりにくい部分も是非現地でお確かめくださいませ。
いつでも現地をご案内いたします。お気軽にお問い合わせくださいませ。
住まい探しは、資金計画から。ファイナンシャルプランナーより、無理のない資金計画をご提案致します。
物件詳細情報
物件No.31018775329
| 所在地 | 埼玉県越谷市大字弥十郎 | ||
|---|---|---|---|
| 交通 | 東武伊勢崎線「大袋」駅徒歩25分 東武伊勢崎線「北越谷」駅バス12分 バス停「弥十郎入口」停歩3分 東武伊勢崎線「北越谷」駅徒歩32分 |
||
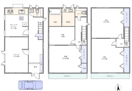
| 間取 | 4LDK (DK11.7帖、L14帖、洋室13.5帖、洋室12.4帖、洋室12.2帖、洋室6帖) | ||
| 土地面積 | 93.34m² 公簿 | ||
| 建物面積 | 136.98m² 公簿 | ||
| 構造・規模 | 軽量鉄骨造 3階建て | 築年月 | 1996年11月築 |
| バルコニー | 南向き | 国土法届出 | 不要 |
| 地目 | 宅地 | 用途地域 | 第一種中高層住居専用地域 |
| 建ぺい率 | 70% | 容積率 | 200% |
| 都市計画 | 市街化区域 | 駐車スペース | 1台(カースペース) |
| 現況 | 居住中 | 引渡時期 | 相談 |
| 権利種類 | 所有権 | 接道 | 南東側6M公道に8.2M接道 南西側4M公道に4M接道 |
| 小学校区 | 越谷市立弥栄小学校(1450m) | 中学校区 | 越谷市立新栄中学校(824m) |
| 取引態様 | 媒介 | ||
| リフォーム |
|
||
| 設備 | 公営水道、本下水 | ||
| その他制限事項 | 隅切り有 | ||
こだわり項目
角地平坦地LDK15帖以上床下収納2面以上バルコニー食器洗浄機トイレ2ヶ所温水洗浄便座シャワー付洗面台浴室乾燥機追焚機能浴室に窓スーパー400m以内コンビニ400m以内陽当り良好通風良好
- ※価格は物件の代金総額を表示しており、消費税が課税される場合は税込み価格です。(1,000円未満は切り上げ。)
税率は引き渡し時期により異なりますので、各物件の詳細につきましてはお問い合わせください。 - ※敷地権利が借地権のものは価格に権利金を含みます。
- ※制作中に内容が変更される場合もありますので、あらかじめご了承ください。
- ※購入の前には物件内容や契約条件についてご自身で十分な確認をしていただくようにお願いいたします。
- ※完成予想図はいずれも外構、植栽、外観等実際のものとは多少異なることがあります。
- ※CG合成の画像の場合、実際とは多少異なる場合があります。
周辺地図
周辺施設一覧
- ショッピングセンター
- スーパー
- コンビニ
- ドラッグストア
- ホームセンター
- 飲食店
- その他店舗
- 商店街
- 大学
- 専門学校
- 高校・高専
- 中学校
- 小学校
- 保育園
- 幼稚園
- 公民館・児童館
- 病院
- 郵便局
- 役所
- 図書館
- 金融機関
- 警察・消防
- 趣味・娯楽施設
- 公園・運動施設
- 周辺の街並み
- 駅
- その他
お問い合せ先
- 株式会社エステート白馬 越谷店
- お電話でのお問い合わせは
0120-315-586「ホームページを見た」とお問い合わせください - 埼玉県越谷市大字袋山1361-16 1F
- 営業時間:9:00~18:00
- 定休日:年中無休
- 免許番号:国土交通大臣免許(6)第5817号
- HOME
- 一戸建てをエリアから探す
- 越谷市
- 大字弥十郎
- 越谷市弥十郎 売戸建












