- HOME
- 中古マンションをエリアから探す
- 越谷市
- 赤山町
- 越谷ファミリータウンD棟
越谷ファミリータウンD棟
情報更新日:2026/04/09 次回更新予定日:2026/04/23
価 格2,980万円(税込)
所在地埼玉県越谷市赤山町4丁目[周辺地図]
交 通東武伊勢崎線「新越谷」駅徒歩12分





グレー基調のモダンな北欧風内装で、室内は新築のように生まれ変わっております。
クローゼットや収納棚がたっぷりで、4.4帖の洋室にはエアコン1台設置済み、初期費用が少し節約できるのもうれしいポイント。
駅徒歩圏内ながら子育て世帯にも嬉しい周辺環境が整い、春は敷地内の桜が存分に楽しめますよ。
即入居可能な快適空間で、新しい生活を始めませんか?いつでも現地をご案内いたします。
すべての画像
新越谷駅徒歩12分、225戸のビッグコミュニティ
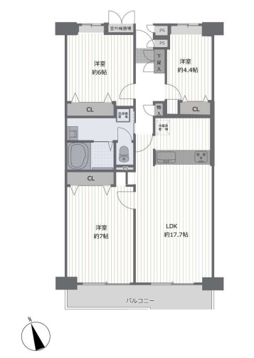
間取り
開放感と採光にこだわった、17.7帖のLDK。
朝から日差しいっぱい、 早起きしたくなるLDK。
家族団らんの時間も増えそうな、くつろぎのLDK。
家族が自然に集りそうな広さが魅力のLDK。
快適な新生活を迎えられそうな、新品のキッチンです。
毎日使うおトイレだから、リフォーム済みは嬉しい限り。
ユニットバスも新規交換。キレイなお風呂で疲れをリフレッシュ。
洗面化粧台もしっかりリフォーム済みです。
バルコニーからはたっぷりと太陽の光が舞い込みます。
洋室は子供部屋にもちょうどいいサイズ感、4.4帖。
ナチュラルウッドの色合いが、室内にあたたかな雰囲気を運びます。
玄関ドアポストも新しくなりました。
南向きバルコニーでお洗濯ものはいつもカラッと乾きます。
ご家族みんながゆったりくつろげる広々リビング。
子供部屋にも嬉しい全居室収納スペース。
部屋ごとに設けた収納は、住みやすさへのこだわり。
全居室収納スペース付きの物件です。棚付きなのも便利ですね。
さっと物がしまえる共用部分の収納、新生活で大活躍するでしょう。
トイレにもしっかり収納スペースがあります。
収納力と機能性に優れた、お手入れラクラク洗面化粧台。
玄関がいつも片づく大容量シューズボックス。
玄関
脱衣所内にトイレを配置した、ゆとりの空間です。
ランドリーコーナーも棚付きで使いやすそうです。
1坪広さを設けた浴室でゆったりバスタイム。
キッチンの性能が上がれば、いつものお料理も楽しくなりますね。
料理をしながらでも、ご家族との会話を楽しめる対面キッチン。
収納スライドをぐっと開けばお鍋や調味料をどんどんしまえる大収納。キッチンはいつもキレイ。
緑豊かな植栽に囲まれたエントランス。
すっきりと管理されたロビー。
エレベーター2基
郵便受け
平面駐車場は出し入れスムーズ。
駐輪場
広大な敷地内のテニスコートでリフレッシュ。
駅徒歩圏内ながら閑静な住宅地で、穏やかな新生活が待ってます。
6階バルコニーからの眺め。
バルコニーは南道路に面し、陽当たり良好な物件です。
担当スタッフより

- 佐藤 順子
- 人気の「越谷ファミリータウンD棟」の6階部分に、フルリノベーション済みの3LDKが登場しました。
グレー基調のモダンな北欧風内装で、室内は新築のように生まれ変わっております。
クローゼットや収納棚がたっぷりで、4.4帖の洋室にはエアコン1台設置済み、初期費用が少し節約できるのもうれしいポイント。
駅徒歩圏内ながら子育て世帯にも嬉しい周辺環境が整い、春は敷地内の桜が存分に楽しめますよ。
即入居可能な快適空間で、新しい生活を始めませんか?いつでも現地をご案内いたします。
物件詳細情報
物件No.31023441088
| 所在地 | 埼玉県越谷市赤山町4丁目 | ||
|---|---|---|---|
| 交通 | 東武伊勢崎線「新越谷」駅徒歩12分 武蔵野線「南越谷」駅徒歩13分 東武伊勢崎線「越谷」駅徒歩17分 |
||
| 間取 | 3LDK (LDK17.7帖、洋室7帖、洋室6帖、洋室4.4帖) | ||
| 専有面積 | 82.19m² (壁芯) | ||
| バルコニー面積 | 7.11m² 南西向き | ||
| 販売戸数 | 1戸 | 総戸数 | 全225戸 |
| 構造・規模 | 鉄骨鉄筋コンクリート造 8階建て 6階部分 |
築年・入居 | 1983年9月築 |
| 施工会社 | 株式会社間組 | 現況 | 空室 |
| 引渡時期 | 即引渡可 | 権利種類 | 所有権 |
| 管理費 | 11,670円/月 | 修繕積立金 | 13,410円/月 |
| 管理形態 | 日勤 全部委託 | 管理会社 | 三井不動産レジデンシャルサービス株式会社 |
| 駐車場 | 敷地内に空なし 料金:9,000円/月 | 駐輪場料金 | 300円/月 |
| バイク置場料金 | 1,000円/月 | ペット | 可 |
| 小学校区 | 越谷市立南越谷小学校(533m) | 中学校区 | 越谷市立富士中学校(458m) |
| 取引態様 | 媒介 | ||
| リフォーム |
|
||
| 設備 | 公営水道、本下水、都市ガス | ||
| 備考・制限等 | トランクルーム面積/2.68平米 トランクルーム使用料/300円(月額) | ||
こだわり項目
- ※価格は物件の代金総額を表示しており、消費税が課税される場合は税込み価格です。(1,000円未満は切り上げ。)
税率は引き渡し時期により異なりますので、各物件の詳細につきましてはお問い合わせください。 - ※敷地権利が借地権のものは価格に権利金を含みます。
- ※制作中に内容が変更される場合もありますので、あらかじめご了承ください。
- ※購入の前には物件内容や契約条件についてご自身で十分な確認をしていただくようにお願いいたします。
- ※完成予想図はいずれも外構、植栽、外観等実際のものとは多少異なることがあります。
- ※CG合成の画像の場合、実際とは多少異なる場合があります。
周辺地図
周辺施設一覧
- ショッピングセンター
- スーパー
- コンビニ
- ドラッグストア
- ホームセンター
- 飲食店
- その他店舗
- 商店街
- 大学
- 専門学校
- 高校・高専
- 中学校
- 小学校
- 保育園
- 幼稚園
- 公民館・児童館
- 病院
- 郵便局
- 役所
- 図書館
- 金融機関
- 警察・消防
- 趣味・娯楽施設
- 公園・運動施設
- 周辺の街並み
- 駅
- その他
お問い合せ先
- 株式会社エステート白馬 越谷店
- お電話でのお問い合わせは
0120-315-586「ホームページを見た」とお問い合わせください - 埼玉県越谷市大字袋山1361-16 1F
- 営業時間:9:00~18:00
- 定休日:年中無休
- 免許番号:国土交通大臣免許(6)第5817号
- HOME
- 中古マンションをエリアから探す
- 越谷市
- 赤山町
- 越谷ファミリータウンD棟


































