- HOME
- 中古マンションをエリアから探す
- 上尾市
- 西宮下
- サーパス上尾第2
中古マンション
サーパス上尾第2
情報更新日:2026/04/14 次回更新予定日:2026/04/27
価 格2,780万円(税込)
所在地埼玉県上尾市西宮下3丁目[周辺地図]
交 通湘南新宿ライン高海「上尾」駅徒歩17分





-----ESTATE HAKUBA-----
・4階部分東南向きのお部屋で日当り良好
・新規内装リノベーション物件です
・生活施設も充実、住環境良好な立地です。
<エステート白馬 上尾駅前店を選ぶ5つのポイント>
1.JR高崎線「上尾駅」から徒歩1分
駅前の「イトーヨーカドー上尾駅前店」内に立地。
2.無料駐車場完備のお店
立体駐車場は全480台収容可。駐車場完備してます。
3.大型キッズスペース
当店自慢のキッズスペースをぜひご覧ください。店内におむつ替えコーナーもご用意してます。
4.年中無休・365日営業でお手伝い
営業時間:10時~20時まで。スピードある対応が自慢のお店です。
5.提携FPへの無料個別相談サービス
社外の中立的なファイナンシャルプランナーと無料相談。
ローン返済について、老後や学費等も含めたシミュレーションをご提案できます。
・4階部分東南向きのお部屋で日当り良好
・新規内装リノベーション物件です
・生活施設も充実、住環境良好な立地です。
<エステート白馬 上尾駅前店を選ぶ5つのポイント>
1.JR高崎線「上尾駅」から徒歩1分
駅前の「イトーヨーカドー上尾駅前店」内に立地。
2.無料駐車場完備のお店
立体駐車場は全480台収容可。駐車場完備してます。
3.大型キッズスペース
当店自慢のキッズスペースをぜひご覧ください。店内におむつ替えコーナーもご用意してます。
4.年中無休・365日営業でお手伝い
営業時間:10時~20時まで。スピードある対応が自慢のお店です。
5.提携FPへの無料個別相談サービス
社外の中立的なファイナンシャルプランナーと無料相談。
ローン返済について、老後や学費等も含めたシミュレーションをご提案できます。
すべての画像
南向きのLDK、 日当たりにこだわった住宅がここに。
たっぷりの陽光と、心地よい風が舞い込みます。
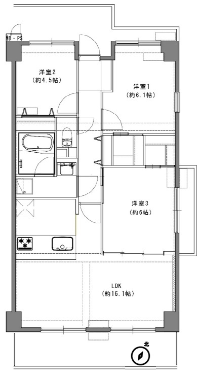
図面と現況が異なる場合は現況を優先させていただきます。
キッチンの性能が上がれば、いつものお料理も楽しくなりますね。
家族が自然に集りそうな広さが魅力のLDK。
現地外観写真
気持ちいいウォシュレット機能。
たっぷりの収納スペースで快適に暮らせそう。
空気もこもらず、いつもクリーンな浴室乾燥機付。
たっぷりの収納を設けたシャワー付洗面台で快適な暮らし。
玄関がいつも片づく大容量シューズボックス。
たっぷりの収納スペースで快適に暮らせそう。
その他内観
南側に大きな窓を配置、明るいリビングが出来ました。
こちらの洋室は誰にも使いやすいサイズ感、6帖です。
たっぷりの陽光に包まれる明るい住まいが、ここにあります。
洋室
脱衣場
南向きバルコニーでお洗濯ものはいつもカラッと乾きます。
リビングで遊ぶお子様を見守りながらお料理ができる、対面キッチン。
ご家族みんながゆったりくつろげる広々リビング。
ご家族みんながゆったりくつろげる広々リビング。
TVモニター付インターホンでセキュリティ面にも配慮。
ご家族みんながゆったりくつろげる広々リビング。
担当スタッフより

- 宍戸純
- お客様の不動産取引に安心材料をプラスするために生まれた「白馬のプラスUPサポート」。付帯品修理サービスはお客様から大変好評いただいております。お問い合わせ、資料請求をお待ちしております。
物件詳細情報
物件No.31023597063
| 所在地 | 埼玉県上尾市西宮下3丁目 | ||
|---|---|---|---|
| 交通 | 湘南新宿ライン高海「上尾」駅徒歩17分 高崎線「上尾」駅徒歩17分 高崎線「宮原」駅徒歩38分 |
||
| 間取 | 3LDK (LDK16.1帖) | ||
| 専有面積 | 73.79m² (壁芯) | ||
| バルコニー面積 | 12.9m² 南向き | ||
| 販売戸数 | 1戸 | 総戸数 | 全34戸 |
| 構造・規模 | 鉄筋コンクリート造 6階建て 4階部分 |
築年・入居 | 1994年2月築 |
| 現況 | 空室 | 引渡時期 | 即引渡可 |
| 権利種類 | 所有権 | 管理費 | 15,942円/月 |
| 修繕積立金 | 14,000円/月 | 管理形態 | 日勤 全部委託 |
| 管理会社 | 東京互光(株) | 駐輪場料金 | 300円/月 |
| ペット | 相談 | 受取町会費 | 400円/月 |
| 小学校区 | 上尾市立鴨川小学校(780m) | 中学校区 | 上尾市立南中学校(1060m) |
| 取引態様 | 媒介 | ||
| リフォーム |
|
||
| 備考・制限等 | 駐車場空き状況要確認 駐車場/平置6000円 機械式下段6000円 上段5000円 バイク置場無 ペット飼育不可 オートロック無 長期修繕計画有 司法書士売主指定 | ||
こだわり項目
LDK15帖以上南向き角部屋リフォーム済み全居室収納2面以上バルコニーリノベーション食器洗浄機浄水器ガスコンロシステムキッチンカウンターキッチン3口以上コンロ温水洗浄便座シャワー付洗面台浴室乾燥機追焚機能バリアフリー仕様TVモニタ付インターホンエレベーター駐輪場平面駐車場小学校800m以内コンビニ400m以内
- ※価格は物件の代金総額を表示しており、消費税が課税される場合は税込み価格です。(1,000円未満は切り上げ。)
税率は引き渡し時期により異なりますので、各物件の詳細につきましてはお問い合わせください。 - ※敷地権利が借地権のものは価格に権利金を含みます。
- ※制作中に内容が変更される場合もありますので、あらかじめご了承ください。
- ※購入の前には物件内容や契約条件についてご自身で十分な確認をしていただくようにお願いいたします。
- ※完成予想図はいずれも外構、植栽、外観等実際のものとは多少異なることがあります。
- ※CG合成の画像の場合、実際とは多少異なる場合があります。
周辺地図
周辺施設一覧
- ショッピングセンター
- スーパー
- コンビニ
- ドラッグストア
- ホームセンター
- 飲食店
- その他店舗
- 商店街
- 大学
- 専門学校
- 高校・高専
- 中学校
- 小学校
- 保育園
- 幼稚園
- 公民館・児童館
- 病院
- 郵便局
- 役所
- 図書館
- 金融機関
- 警察・消防
- 趣味・娯楽施設
- 公園・運動施設
- 周辺の街並み
- 駅
- その他
お問い合せ先
- 株式会社エステート白馬 上尾駅前店
- お電話でのお問い合わせは
0120-307-898「ホームページを見た」とお問い合わせください - 埼玉県上尾市谷津2-1-1 ショーサンプラザ(イトーヨーカ堂)5F
- 営業時間:9:00~20:00
- 定休日:年中無休
- 免許番号:国土交通大臣免許(6)第5817号

































